[36坪 4LDK] 南向き吹抜が親子をつなぐ、2WAY玄関のある家の間取り
全国の建築家から間取りが集まるmadree(マドリー)で集まった36坪、4LDKの間取りです。外とつながるLDKやアウトドアリビングが特徴の注文住宅の間取りです。
南向き吹抜が親子をつなぐ、2WAY玄関のある家はこのような方におすすめです
・3児計画中の子育て夫婦
・家族別々に食事をとることが多い為、手早く配膳したい。
・ウッドデッキでプールをしたり、日向ぼっこをして子どもと過ごす時間を楽しみたい
・2階を子どもリビングにして、1階を見れるようにしたい
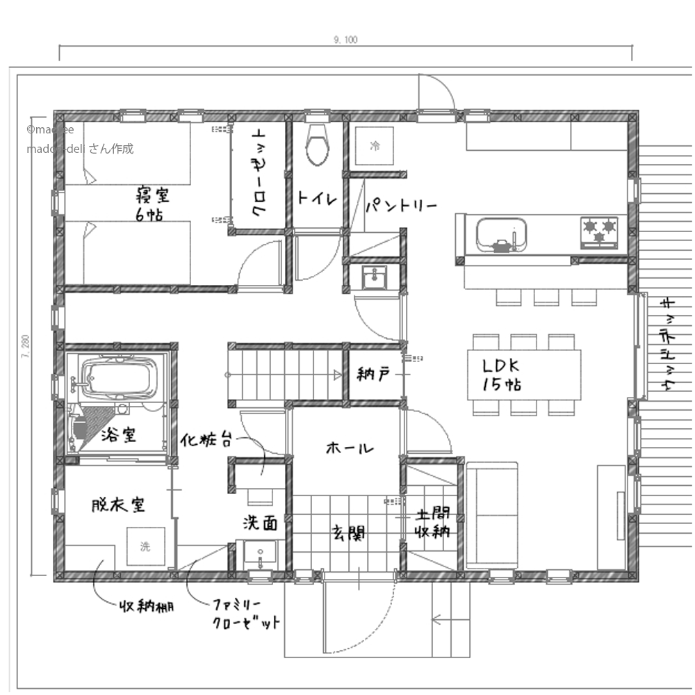
南向き吹抜が親子をつなぐ、2WAY玄関のある家の間取りアイデア
全国対応になりました
| 広さ | |
|---|---|
| 階数 | |
| 部屋数 | |
| 家族人数 | |
| 土地特徴 | |
| 特徴 | |
| 担当建築家・デザイナー |
建築家・デザイナー
からのコメント
【全体のコンセプト】
接道長さが2mでしたので、小型車を縦列駐車し建物を西側に計画することで日光を取り入れる計画としました。
1階: LDKは南側に計画し、太陽光を充分に取り入れる配置としています。動線計画はホール・LDK・トイレまでをパブリック空間としていますが、建具位置を変更することで、より明確にゾーン分けができると思います。来客は少ないとのことでしたので、必要最低限の位置に建具を設置しています。
2階:吹抜やリビングを南側に計画し、1階と同じように太陽光をたくさん取り入れる計画としています。リビング家具の配置によって更に収納家具を設置できると思います。1階に設置出来なかった収納スペースを補っていただければと思います。
36坪 4LDK関連の間取り
マドリー開発の『住宅営業支援ツール』
madreeデータバンク
マドリーの人気間取り4,800プランを接客・提案に活用できる営業支援ツール
- 競合他社と差がつく、スピード提案
- トレンド間取りで、集客・受注数UP
- 建築家のアイデアを参考に、質の高い提案ができる









