[35坪 4LDK] 北側窓と光庭から安定した光取り込む、視線気にせず開放的に過ごせる家の間取り
全国の建築家から間取りが集まるmadree(マドリー)で集まった35坪、4LDKの間取りです。外とつながるLDKやアウトドアリビングが特徴の注文住宅の間取りです。
北側窓と光庭から安定した光取り込む、視線気にせず開放的に過ごせる家はこのような方におすすめです
・もうすぐ第一子が誕生する30代共働き夫婦、数年後にあと1人子ども希望
・趣味:バイク、ドラム、家庭菜園、ダイビング
・夫婦ともに在宅勤務があるので、それぞれのワークスペースを確保したい。
・北側の桜並木を生かして、プライベートお花見を楽しみたい。
全国対応になりました
建築家・デザイナー
からのコメント
【全体のコンセプト】
・緑道や南の恵まれた環境を有効に取込みつつ、光庭でプライバシーを確保し開放感のある、家族皆が快適かつ楽しい家となるように考えました。
【各所のポイント】
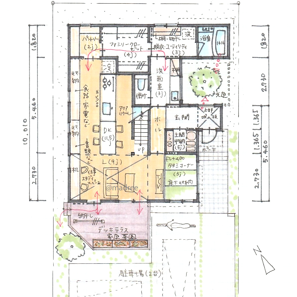
◼︎配置・外構
・敷地北側に2階レベルの歩道橋があること、西側隣地のベランダが東向きにあることから、玄関は東向きとし、北側1階には水廻りを配置、光庭に向けて浴室や洗面、玄関の開口をとりました。
・南側デッキテラスは晴れた日の物干し、家庭菜園、BBQや子どもの遊び場としてリビングからの出入りができ、一部階段としてゴミ出しなど勝手口としての利用や子どもの外遊びの出入りにと考えています。
・デッキ西角に植栽をすることで、外部からの視線や西日の遮断にもなるかと思います。
◼︎1階
・キッチンとダイニングは北側に水廻りと南側のリビングをつなぐように細長く配置しました。ペニンシュラ型のキッチンとダイニングテーブルは一体的に家族で作業したり、会話したりしながらの調理ができます。(正面壁にはアクアリウムを設置。)
・キッチン背面の西側壁面には、パントリー及び造り付けの収納棚(作業台)に続けてリビングには机を設け、ワークスペースとしました。
・リビングは南向きの開口を設け、吹抜とリビング階段で2階の様子がうかがえます。
・タタミコーナーは小上がりで床下収納とし、普段は子どもの遊び場やお昼寝の場所として利用できます。
・玄関上部の吹抜と、光庭から安定した光が差し込み、明るくシンボルツリーも眺められます。
・土間収納にはシュークロークとゴルフバッグ等アウトドア用品を収納できます。
・玄関からは洗面所への動線とリビングへの動線があり、帰宅時は玄関→洗面→ファミクロ→パントリー(キッチン)と行けるよう家事動線に配慮し、来客時は洗面と脱衣と仕切ることができます。
・浴室は光庭側に玄関と高さをずらした位置に開口を設けることで、解放感を感じられるようにしました。
・脱衣スペースは室内干し対応とし、下着タオルの収納を設けています。洗面室、ファミクロ、そしてキッチンへと引き戸で自由に行き来が出来、家事のしやすさを考慮しました。
・洗面室にもタオルや化粧品、掃除用具などの収納棚を設けています。上部の窓から自然光が差し込みます。
◼︎2階
・書斎はテラスにつながる北側に4.5畳+収納1.5畳の計6畳を確保しました。北側の光は安定して確保でき、開口部高さを高めにすれば、歩道橋からの視線は気にならないかと思います。光庭にも接するテラスは休憩場所として、又桜の時期には花見が楽しめます。
・寝室は明るく朝日の入る南側に配置しました。シングルベッド2台とリネン等の収納を設けました。
・将来の子ども部屋は4.5畳で2室、最低限ですが机とベッド、サイズにより収納棚を置ける広さです。1室はリビングとのつながりがあります。個室は当面オープンにしておき、将来必要になった時に仕切りを設けてもよいかもしれません。
35坪 4LDK関連の間取り
マドリー開発の『住宅営業支援ツール』
madreeデータバンク
マドリーの人気間取り4,800プランを接客・提案に活用できる営業支援ツール
- 競合他社と差がつく、スピード提案
- トレンド間取りで、集客・受注数UP
- 建築家のアイデアを参考に、質の高い提案ができる









