[36坪 5LDK] 各々好きな空間にいながらも家族つながる、遊び心と実用性を兼ね揃えた家の間取り
全国の建築家から間取りが集まるmadree(マドリー)で集まった36坪、5LDKの間取りです。外とつながるLDKやアウトドアリビングが特徴の注文住宅の間取りです。
各々好きな空間にいながらも家族つながる、遊び心と実用性を兼ね揃えた家はこのような方におすすめです
・アラフォー夫婦、娘(5歳)、息子(2歳)
・趣味:子ども中心に家でゆっくり過ごすこと
・リビングのおもちゃ散らかり防止のため、子ども達が自由に遊べるセカンドリビングを設けたい。
・生活感を隠したいので、適所に収納を多く確保したい。
全国対応になりました
| 広さ | |
|---|---|
| 土地特徴 | |
| 階数 | |
| 部屋数 | |
| 家族人数 | |
| 特徴 |
|
| 担当建築家・デザイナー |
建築家・デザイナー
からのコメント
【各所のポイント】
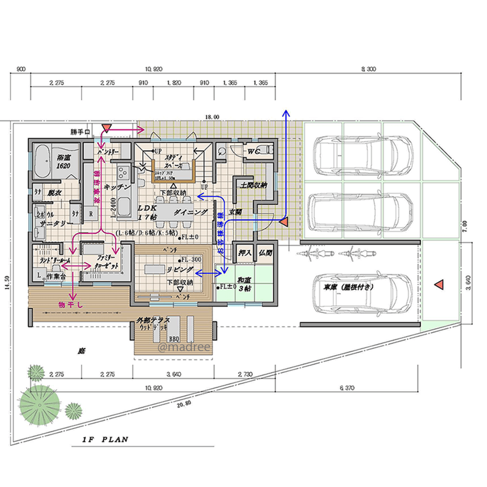
■建物配置
建物を北西寄せにして、南に庭、東に駐車場とし、各々広くとっています。 駐車場は緑化ブロックとしています。 屋根付き車庫を通って庭に搬入等行えるようにし、外部から見えにくく防犯も兼ねています。
■1階
・スタディスペースをスキップフロアにし、その上部は高天井空間にすることによって、 セカンドリビング⇔スタディスペース⇔ダイニング⇔リビングに一体感を持たせています。
・和室は玄関際とし、お客様が家内を徘徊することなしに部屋に入ることができます。
・キッチンからの家事動線を短くし、パントリー、洗濯、ファミリークロゼットをまとめました。物干しから衣類等を直接ファミリークローゼットに収納できます。また、キッチンからはスタディスペースを見守る事ができます。
・リビングは床の高さを30cm下げ、ベンチ空間としています。ベンチ下は小物類を収納できます。またスタディスペースの床下も天井高さ1mほどの収納として利用可能です。
■2階
・主寝室のウォークインクローゼットは共同で使えるよう、廊下側からも利用できます。
・スタディスペースの上部の吹抜空間により、セカンドリビングの子ども達の声や存在を下階へ伝えることができます。
36坪 5LDK関連の間取り
マドリー開発の『住宅営業支援ツール』
madreeデータバンク
マドリーの人気間取り4,800プランを接客・提案に活用できる営業支援ツール
- 競合他社と差がつく、スピード提案
- トレンド間取りで、集客・受注数UP
- 建築家のアイデアを参考に、質の高い提案ができる









