[31坪 4LDK] 採光良いL型間取りで、家族がリビングに集まる平屋の間取り
全国の建築家から間取りが集まるmadree(マドリー)で集まった31坪、4LDKの間取りです。外とつながるLDKやリビング中心の動線が特徴の注文住宅の間取りです。
採光良いL型間取りで、家族がリビングに集まる平屋はこのような方におすすめです
・共働き、妊活中の3人家族
・趣味は旅行、BBQとアウトドア派
・帰宅後ご飯、お風呂、寝かしつけの流れがスムーズな動線
・リビングで家族で過ごす時間が長いのが理想
採光良いL型間取りで、家族がリビングに集まる平屋の間取りアイデア
全国対応になりました
| 広さ | |
|---|---|
| 階数 | |
| 部屋数 | |
| 家族人数 | |
| 土地特徴 | |
| 特徴 | |
| 担当建築家・デザイナー |
建築家・デザイナー
からのコメント
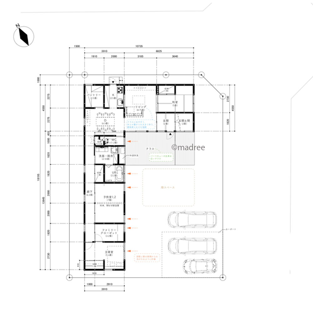
【全体コンセプト】
家に東と南側からの光を多く取り入れるためL型の家を提案します。 そして、中心にLDKを設置しました。 また、玄関から奥へ進むほどプライベートな空間へと計画しています。
【こだわりポイント】
・リビング:テラスとの一体感を作るため、大きな窓としました。
・キッチン:リビングの方を向き、ダイニングの方へ導線を設けたため、配膳が容易に出来ます。
・ 子供室:お子様が小さい時は間仕切壁を設けず広く部屋を使い、大きくなられたら、壁を設置し、個室を設けます。
・ファミリークローゼット:廊下と主寝室から入ることが可能です。
31坪 4LDK関連の間取り
マドリー開発の『住宅営業支援ツール』
madreeデータバンク
マドリーの人気間取り4,800プランを接客・提案に活用できる営業支援ツール
- 競合他社と差がつく、スピード提案
- トレンド間取りで、集客・受注数UP
- 建築家のアイデアを参考に、質の高い提案ができる









