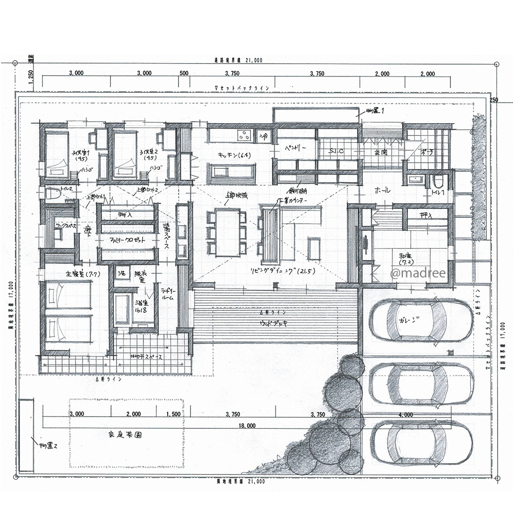
[45坪 4LDK] リビングを挟んで空間を分ける、快適な家族時間を愉しむ同居予定の平屋二世帯住宅の間取り
全国の建築家から間取りが集まるmadree(マドリー)で集まった45坪、4LDKの間取りです。外とつながるLDKやアウトドアリビングが特徴の注文住宅の間取りです。
リビングを挟んで空間を分ける、快適な家族時間を愉しむ同居予定の平屋二世帯住宅はこのような方におすすめです
・30代共働き夫婦、子ども2人(長女9歳、次女6歳)
・趣味:熱帯魚飼育、料理、フラワーアレンジメント
・将来的に親と同居する予定なので、程よい距離を保てる和室(客間)配置にしたい。
・子どもがハウスダストアレルギーなので、頻繁に布団類を干したい。
全国対応になりました
| 広さ | |
|---|---|
| 土地特徴 | |
| 階数 | |
| 部屋数 | |
| 家族人数 | |
| 特徴 |
|
| 担当建築家・デザイナー |
建築家・デザイナー
からのコメント
【全体コンセプト】
プライベートとパブリックの動線を分離しつつ、快適な家族時間をゆるやかに愉しめる空間を演出することをテーマにしています。
【こだわりのポイント】
■家族がくつろぎ、過ごす場所
・家族が自然と集まるリビングダイニングは、小屋裏空間を利用した吹抜になっているので、約21帖プラスαの広さを感じることができます。
・ダイニングで食事をしたり、作業カウンターで子どもが勉強したり、同じ空間にいながら、お互いの気配を感じて過ごせます。
・リビングの飾り棚には、趣味の水槽を置いたり、お雛さまや家族の写真などを飾ったりして、家族の想いを共有できる場所としました。
■動線
・玄関から入って、奥に行くにつれてプライベート性を高くし、来客があっても見られたくない場所は見られないようになっています。
・帰宅動線については、玄関からSIC~パントリーを通る裏動線に4人分のロッカーを設け、玄関やリビングまわりがスッキリするようにしています。
・回遊動線を積極的に活用し、キッチンは2人以上でも効率良く作業でき、プライベートゾーンの廊下はファミリークローゼットを利用してスムーズに身支度できます。
・キッチンからランドリールームへの距離も短くし、物干しは普段はランドリールームで干せばその場でたたんで、すぐにファミリークローゼットにしまうことができ、休日の天気のいい日には全体に屋根のかかっている物干しスペースにランドリールームから直接出て干すこともできます。
■開口計画
リビングダイニングの南側には柱を挟んで2枚で約5.5mの大きな窓を開ければ、室内と一体的に利用でき、ウッドデッキを介して、水平方向に広がりを感じることができます。
・ガレージの西側の壁は道路からの視線を、物干スペースの東側の壁は洗濯物をそれぞれリビングダイニングから見えないよう配慮しています。
・通風については近くに建物がない南北で抜けるようにしており、リビングダイニングの南側からキッチンの北側へ、和室の南側は玄関ホールの北側へ、ランドリールームの南側から洗面スペースを通って子供室2の北側へ、主寝室の南側から廊下を通って子供室1の北側へ、風が抜けていきます。
■収納計画
・下足箱とは別にシューズインクローク、食器棚とも別にパントリーを適切に計画し、リビングの飾り棚の横にも収納を設けて、家族が過ごす場所がすっきり片付くようにしています。
・ランドリールームのカウンター下に引き出しを設け、タオルや肌着などをしまうこともできます。
・子ども室にはロフトを設け、布団など大きなものは物入にまとめて収納することができ、ファミリークローゼットは通路部分を最小限にして、収納量を確保しています。
・和室は将来、両親どちらかの部屋になることも考慮し、押入以外の収納を設け、そこに仏壇を納めることもできます。
・外の物置1は単身者用の家電を収納することを考慮し、屋根があり日陰の場所に設置しています。
・物置2は庭の手入れ道具や、家庭菜園の道具、堆肥などを収納できます。
■その他
・ガレージには屋根がかかっているので、雨に濡れずに路地を抜けるようなイメージで玄関ポーチにアプローチできます。
・籠れるワークスペースをプライベートゾーンに設け、集中して仕事ができるようにしました。
45坪 4LDK関連の間取り
マドリー開発の『住宅営業支援ツール』
madreeデータバンク
マドリーの人気間取り4,800プランを接客・提案に活用できる営業支援ツール
- 競合他社と差がつく、スピード提案
- トレンド間取りで、集客・受注数UP
- 建築家のアイデアを参考に、質の高い提案ができる









