[42坪 3LDK] デッキと一体の開放的なリビング、一直線につながるラク家事動線の家の間取り
全国の建築家から間取りが集まるmadree(マドリー)で集まった42坪、3LDKの間取りです。外とつながるLDKやリビング吹抜が特徴の注文住宅の間取りです。
デッキと一体の開放的なリビング、一直線につながるラク家事動線の家はこのような方におすすめです
・30代夫婦、子ども2人(長男3歳、長女1歳)
・趣味:洋裁、ミシン
・ワンオペ育児なので、家事動線を集約したい。
・家族の趣味を楽しめる、フリースペースが欲しい。
全国対応になりました
| 広さ | |
|---|---|
| 土地特徴 | |
| 階数 | |
| 部屋数 | |
| 家族人数 | |
| 特徴 | |
| 担当建築家・デザイナー |
建築家・デザイナー
からのコメント
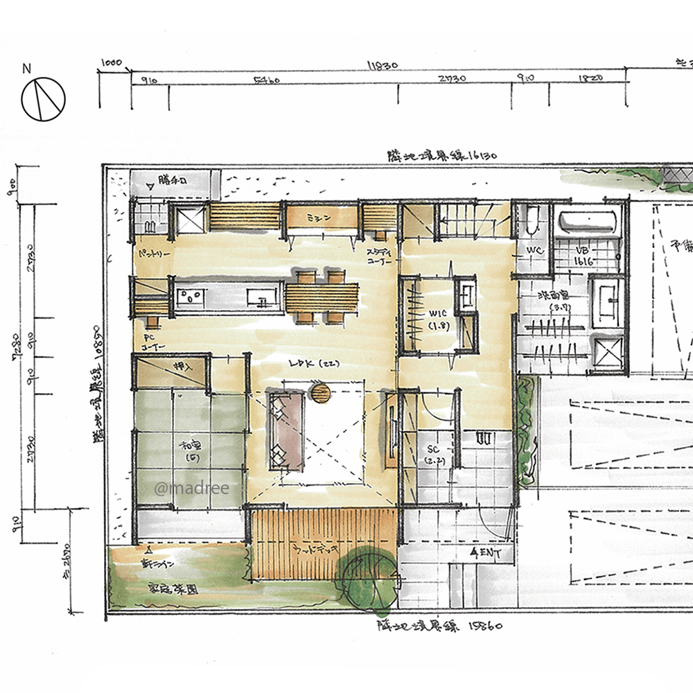
【全体のコンセプト】
土地の特徴を最大限に生かしながら、豊かに暮らす事のできる家を目指しました。「機能的な生活動線と、明るく広い空間」を両立する間取りとなっています。
【各階のポイント】
■1階
・
駐車場から最短距離でアクセスできる玄関配置とし、収納量をたっぷり確保した2WAYとしました。
・家に帰ってすぐ手を洗える手洗い場と、玄関と洗面のどちらからもアクセス可能なファミリークローゼットは、コートなどの外出着やインナーや部屋着類の収納にも便利です。
・洗濯や物干しからファミリークローゼットへの収納などの家事動線に配慮し、水廻りをまとめました。また、洗面室に南面の窓をとり、室内干しでもしっかり日光を当てられるようにしました。
・
吹抜のリビングは南からの光が差し込み、高天井の開放的な空間としています。LDKと和室に繋がり感を持たせることで、実面積以上に広さを感じさせます。
・和室は用途に応じてフルオープンにも個室にもできる間仕切可能とし、普段は家族で寛ぐ場所に、来客時はゲストルームとして利用できます。
・
各所に小分けして収納を配置することで、用途に応じた収納計画ができ、室内がすっきりと保てるように配慮しました。
■2階
・
吹抜を通して1階と繋がりを持たせ、どこにいても明るい空間となります。
・ホールにはフリースペースがあり、本棚・読書スペースやピアノ置場など、心地よい多目的空間としています。
・部屋面積や収納量ともしっかり確保しているため、快適に生活できます。
42坪 3LDK関連の間取り
マドリー開発の『住宅営業支援ツール』
madreeデータバンク
マドリーの人気間取り4,800プランを接客・提案に活用できる営業支援ツール
- 競合他社と差がつく、スピード提案
- トレンド間取りで、集客・受注数UP
- 建築家のアイデアを参考に、質の高い提案ができる









