[42坪 5LDK] 天候に左右されずおうちアウトドア楽しむ、庭と一体感のある眺望良き家の間取り
全国の建築家から間取りが集まるmadree(マドリー)で集まった42坪、5LDKの間取りです。外とつながるLDKやアウトドアリビングが特徴の注文住宅の間取りです。
天候に左右されずおうちアウトドア楽しむ、庭と一体感のある眺望良き家はこのような方におすすめです
・アラサー共働き夫婦、子ども2人(長女2歳、長男0歳)
・趣味:釣り、ゴルフ、アウトドア、音楽鑑賞、洋裁
・南側の眺めが良いので、視線の抜けるアウトドアリビングを設けたい。
・ワークスペースはリビングに欲しいが、親子でスペースを分けたい。
全国対応になりました
| 広さ | |
|---|---|
| 土地特徴 | |
| 階数 | |
| 部屋数 | |
| 家族人数 | |
| 特徴 |
|
| 担当建築家・デザイナー |
建築家・デザイナー
からのコメント
【各所のポイント】
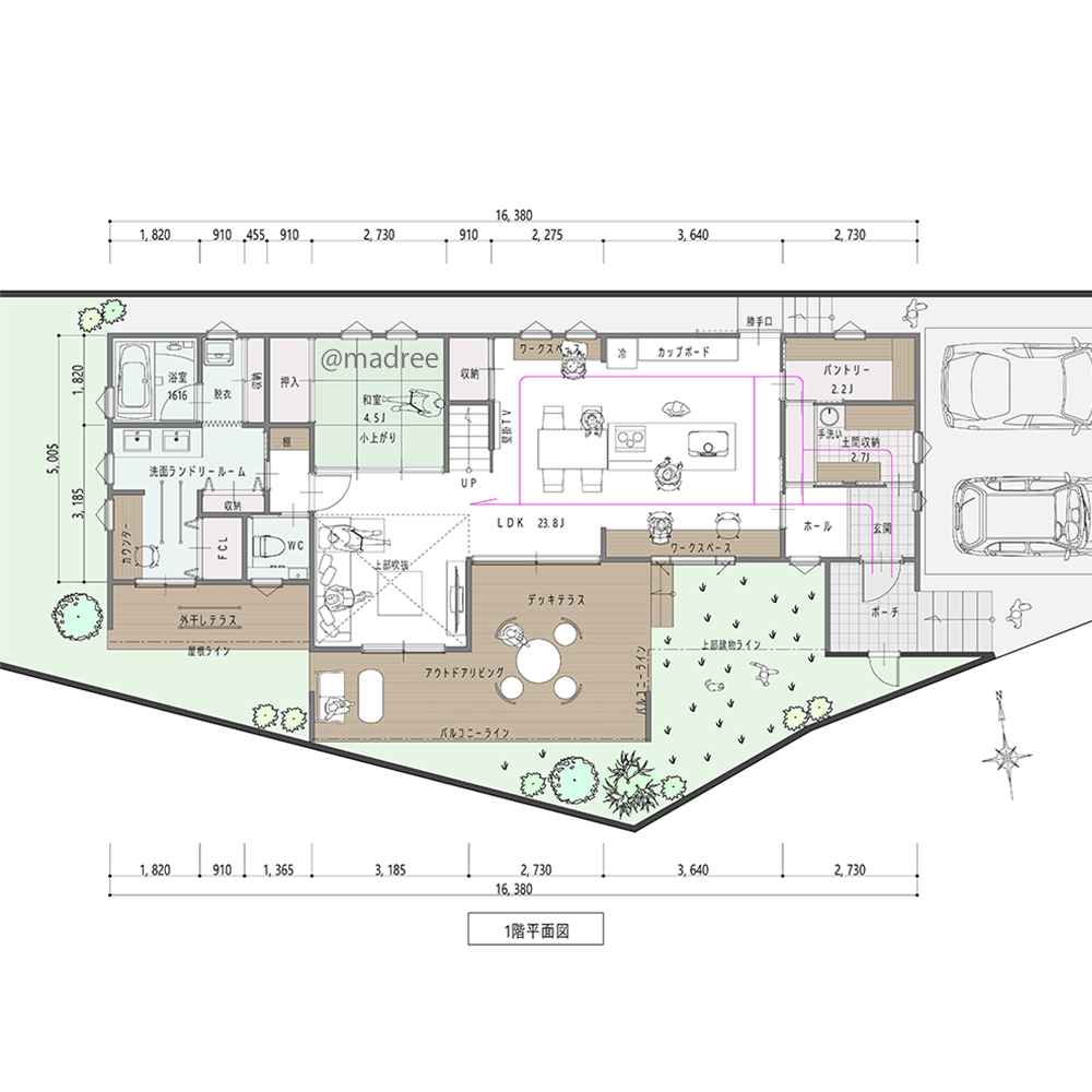
■1階
・玄関ホールは窓を設け、明るい2way動線としました。帰宅後は、土間収納で靴やアウターを脱ぎ、すぐに手を洗いいが可能です。また、その先にパントリーもつなげ、買い物後の荷物をスムーズに収納できるようにしました。
・LDKに入ると、広くオープンなキッチンが目に留まります。ダイニングは今の流行のキッチン横並びとし、明るく景色の良い南側に全体が面して開放感があり、家の中心となる気持ちの良い空間になります。
・キッチン正面のワークスペースは、カフェの窓際カウンターをイメージしました。見晴らしが良いので、本を読んだりお茶を楽しんだりと家に居ながらオシャレな時間を楽しめます。北側にもワークスペースを設け、子どもの宿題や大人のパソコンスペースなど棲み分けできるようにしました。
・キッチン周りは両側から出入りできる回遊動線とし、お友達とワイワイとおしゃべりしながらBBQの準備やホームパーティなどストレスなくスムーズに動くことができます。
・リビングは小上がりの和室と一体的に使用でき、上部は大きな吹抜を設け、更に明るく開放感がでるようにしました。
・洗面ランドリールームは広く、収納やファミリークローゼットがあります。朝の混みあう時間でも横並びで身支度できるよう、2ボウル洗面台としました。また、ミシン掛けや洗濯を畳んだりアイロンを掛けたりするカウンターも設け、屋根付きの外干しテラスに直接出ることができるようにしました。
・階段下は、おもちゃや日用品がサッと仕舞えて便利なリビング収納になっています。
・勝手口は駐車スペースからアクセスしやすい位置にしていますが、パントリー内に設けてさらに好アクセスにすることも可能です。
・デッキテラスは横幅2.5mの大開口サッシから出ることができます。テラスの上部全体にはバルコニーをのせているので、日差しの強い日や雨でもアウトドアリビングとして使用できます。
■2階
・子ども部屋にはそれぞれ奥行きのある収納を、主寝室にはWICを設けました。
・バルコニーは廊下から出入りできるので、各部屋からの布団干しに便利です。また、バルコニーの一部はインナーバルコニーのようにして、日差しや雨を避けながらくつろげるスペースとしました。
42坪 5LDK関連の間取り
マドリー開発の『住宅営業支援ツール』
madreeデータバンク
マドリーの人気間取り4,800プランを接客・提案に活用できる営業支援ツール
- 競合他社と差がつく、スピード提案
- トレンド間取りで、集客・受注数UP
- 建築家のアイデアを参考に、質の高い提案ができる









