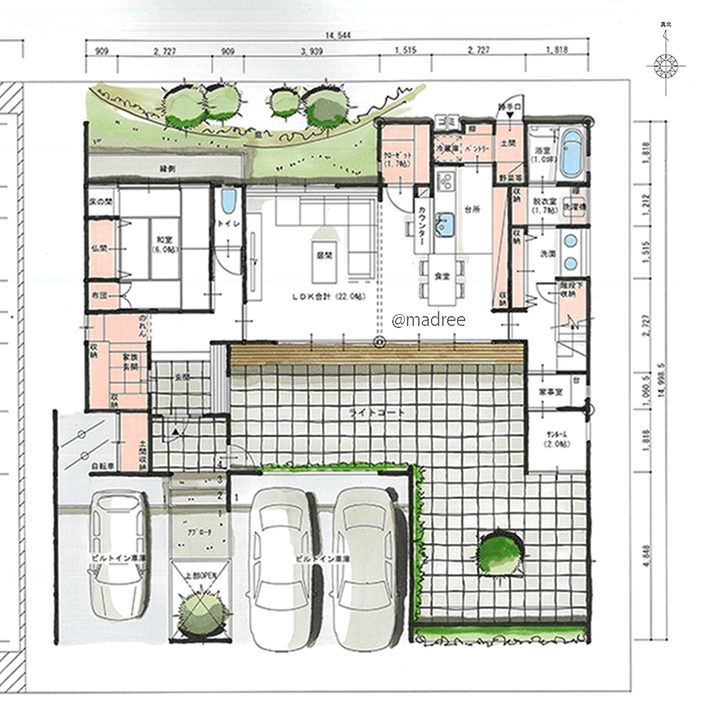
[55坪 3LDK] 開放感もプライバシーも確保で安心、囲まれた空間でのびのびと暮らす家の間取り
全国の建築家から間取りが集まるmadree(マドリー)で集まった55坪、3LDKの間取りです。外とつながるLDKやアウトドアリビングが特徴の注文住宅の間取りです。
開放感もプライバシーも確保で安心、囲まれた空間でのびのびと暮らす家はこのような方におすすめです
・30代共働き夫婦(子ども2人くらいを考えている)
・趣味:寝ること、音楽鑑賞、ディズニー
・掃除がしやすいように、物をあまり出さずに隠して収納したい。
・風水的にも良い、光と風の流れがある家にしたい。
全国対応になりました
建築家・デザイナー
からのコメント
【全体のコンセプト】
・家事が楽しく、スムーズにこなせる家。
・みんなの笑顔が広がる、癒され空間の家。
【こだわりのポイント】
・将来的に敷地を売却しても影響が少ないように、敷地を縦に割りました。
・南側に間口を広く取り、日中安定した日差しが得られる形としてます。
・車庫は3台のビルトインで計画しました。
・ガレージの間をアプローチするような形で、玄関へ向かうようにしました。
・ビルトインと塀の奥に居住エリアがあるので、プライバシーも安全です。
・自転車置き場は外部から見えづらく、使いやすい位置に配置しています。
・玄関は明るく、家族玄関も収納たっぷりで、来客者に見える事はありません。
・トイレを和室側に配置する事で、来客がLDKを通らず行き来できます。玄関からも丸見えにならない配置です。
・LDKは南側の大きな庭と東側の坪庭に囲まれ、明るく開放的に広く感じます。
・リビングとDKを引き戸で仕切る事も可能です。
・LDKのどこからでもTV鑑賞ができます。
・LDKのクローゼットは、日常的な収納として重宝します。
・水廻り動線に収納を充実させました。
・2階には、間仕切り可能な1室と寝室を配置しました。家族が増えた時に自由に対応できます。
・天井高の小屋裏収納を設けました。
55坪 3LDK関連の間取り
マドリー開発の『住宅営業支援ツール』
madreeデータバンク
マドリーの人気間取り4,800プランを接客・提案に活用できる営業支援ツール
- 競合他社と差がつく、スピード提案
- トレンド間取りで、集客・受注数UP
- 建築家のアイデアを参考に、質の高い提案ができる









