[40坪 4LDK] 見通し良いキッチンでおもてなし上手に、人が集まる賑やかな広間口の平屋の間取り
全国の建築家から間取りが集まるmadree(マドリー)で集まった40坪、4LDKの間取りです。外とつながるLDKやアウトドアリビングが特徴の注文住宅の間取りです。
見通し良いキッチンでおもてなし上手に、人が集まる賑やかな広間口の平屋はこのような方におすすめです
・30代共働き夫婦、子ども2人(長男9歳、長女7歳)+猫
・趣味:サッカー、BBQ
・サッカーチームに所属しているので、帰宅後にすぐにお風呂へ向かう動線が欲しい。
・よく友人を招いてBBQなどするので、キッチンから庭まで見渡せるようにしたい。
全国対応になりました
| 広さ | |
|---|---|
| 土地特徴 | |
| 階数 | |
| 部屋数 | |
| 家族人数 | |
| 特徴 | |
| 担当建築家・デザイナー |
建築家・デザイナー
からのコメント
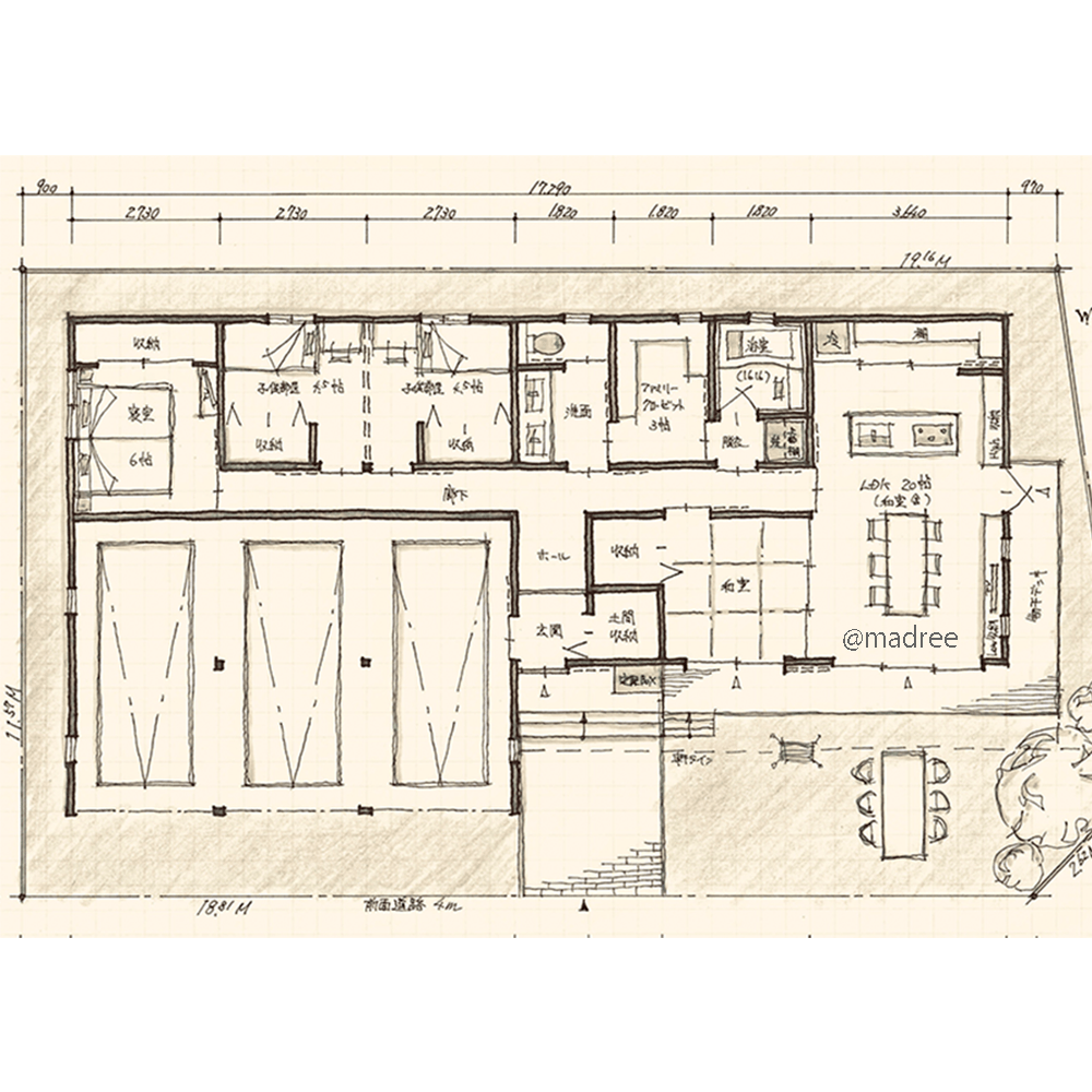
【全体のコンセプト】
『家事楽で人が集まる家』
・敷地の北側に建物を横長に配置し、南東側の採光と眺望を確保。
・駐車場を3台ビルトインとし、玄関から直接出入りできるので雨の日も心配なし。
・玄関横に宅配BOXも配置。
・シンプルな形状でコストも抑えられる構造。
【各所のポイント】
・玄関横に土間収納を大きめに配置。
・玄関からすぐに和室へお客様を案内できる来客動線確保。
・和室は南に縁側を配置し、明るく風通しの良い空間。
・LDKは縦長に配置し、北側にパントリーを兼ねた隠せる収納を配置。南側には3連の引戸を設置し料理をしながら、家族やお客様の楽しい表情が見渡せる。
・LDKと和室を繋げて明るい大空間に。
・水廻りは北東側に集約。クローゼットを真ん中に配置し、回遊性も抜群。
・寝室は建物奥に配置し、静かにゆっくり就寝可能。
・子ども部屋は収納も確保し、将来間仕切りも可能。
【その他】
・西側の敷地を買い足すと、建物全体を西側にずらせるため、更に南東面の陽当たりの良い庭が広くなりアウトドアを充実させられる。
・コスト調整する場合は、ビルトインの駐車場をカーポートに変更。廊下や寝室の採光がUPにもつながる。
40坪 4LDK関連の間取り
マドリー開発の『住宅営業支援ツール』
madreeデータバンク
マドリーの人気間取り4,800プランを接客・提案に活用できる営業支援ツール
- 競合他社と差がつく、スピード提案
- トレンド間取りで、集客・受注数UP
- 建築家のアイデアを参考に、質の高い提案ができる









