[40坪 4LDK] ホテルライクな自宅リゾート空間、自然の光で目覚める寝室吹抜のある家の間取り
全国の建築家から間取りが集まるmadree(マドリー)で集まった40坪、4LDKの間取りです。外とつながるLDKやアウトドアリビングが特徴の注文住宅の間取りです。
ホテルライクな自宅リゾート空間、自然の光で目覚める寝室吹抜のある家はこのような方におすすめです
・経営者夫婦、妻妊娠中(子どもは2人の予定)
・趣味:ゴルフ、子どもはに野球をさせる予定
・南向きに大きな開口窓のある、開放的なLDK空間にしたい。
・部屋までの広さは必要ないが、ちょっとしたスペースで在宅ワークをしたい。
全国対応になりました
建築家・デザイナー
からのコメント
【全体のコンセプト】
・和モダン、リゾートホテルライクな家。
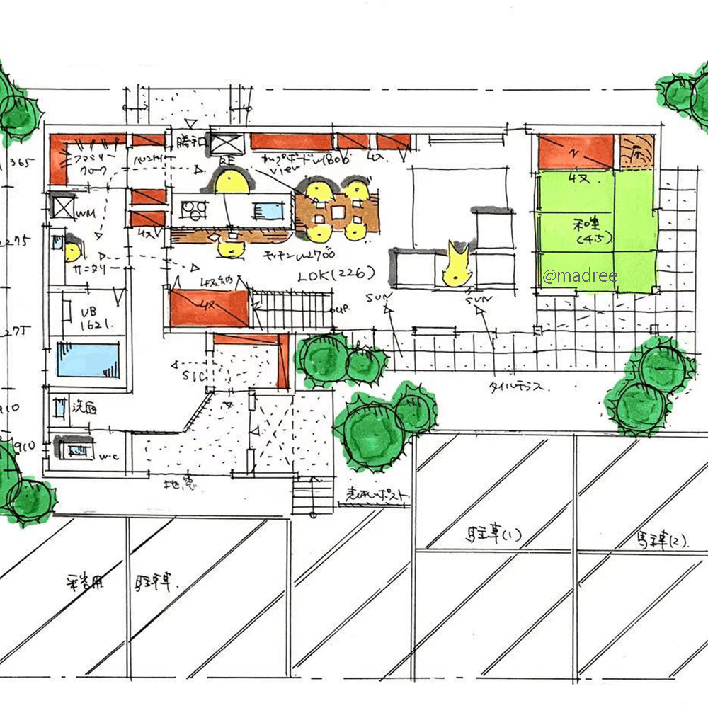
■敷地計画
・南向きに大きく窓を取れるように、東西に長く配置しました。
・普段使いの駐車場は、2台並列で計画しました。
・来客用は1台縦列で設けています。
・LDKと和室をタイルテラスで囲み、リゾート風の雰囲気を演出しました。
■1階
・玄関上部はアルコーブとする事で、雨の日でも濡れにくしました。
・ウォークスルーできるSICを設け、家族用動線と来客用動線を分けました。
・玄関付近に洗面台を設け、帰宅後すぐに手洗いうがいをできるようにしました。
・和室とLDKを隣接させ、普段使いできるようにしました。
・和室にスライディングウォールを設けた事で、来客時には個室として利用可能です。
・キッチンから全体を見渡せるようにしました。
・キッチンとダイニングが並列で配置されているため、料理をしながら会話を楽しめます。
・キッチン正面のカウンターは、ワークペースとしても利用できます。
・キッチン背面の勝手口から、庭へアクセスできます。
・リビング南側に広い開口とコーナーサッシを採用し、明るく広いリビングとしました。
・階段下のデッドスペースは、収納やルンバの基地など多目的に利用できます。
・キッチンと水廻りを繋げ、効率的な家事動線になるようにしました。
・サニタリーから直接FCLにアクセスでき、楽に着替えの出し入れが行えます。
・洗面に広めのカウンターを採用し、混み合う朝でも座りながらゆっくり化粧できるようにしました。
■2階
・各部屋に収納を設ける事で、機能的に利用できます。
・主寝室の上部を吹抜と勾配天井とし、ベッドスペースを1段上げてリゾート感を演出しました。
40坪 4LDK関連の間取り
マドリー開発の『住宅営業支援ツール』
madreeデータバンク
マドリーの人気間取り4,800プランを接客・提案に活用できる営業支援ツール
- 競合他社と差がつく、スピード提案
- トレンド間取りで、集客・受注数UP
- 建築家のアイデアを参考に、質の高い提案ができる









