[36坪 3LDK] コンパクトな動線で日常生活の手間を省く、暮らしの中心に階段のある家の間取り
全国の建築家から間取りが集まるmadree(マドリー)で集まった36坪、3LDKの間取りです。外とつながるLDKやリビング吹抜が特徴の注文住宅の間取りです。
コンパクトな動線で日常生活の手間を省く、暮らしの中心に階段のある家はこのような方におすすめです
・共働き夫婦
・趣味:テニス、読書
・リビングと寝室一角に書斎を設け、同時に干渉せずテレワークをしたい。
・広い洗面台で、窮屈に感じる事なく支度したい。
全国対応になりました
| 広さ | |
|---|---|
| 階数 | |
| 部屋数 | |
| 家族人数 | |
| 土地特徴 | |
| 特徴 |
|
| 担当建築家・デザイナー |
建築家・デザイナー
からのコメント
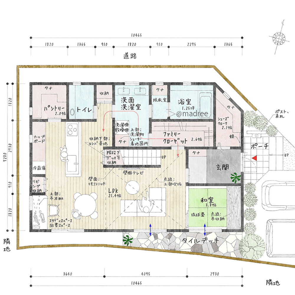
【全体のコンパクト】
・リビングに自然とみんなが集まる家。
■玄関
・玄関にSICを備えて、土間がスッキリ片付くようにしました。
・収納量を確保できるように、土間収納とFCLを壁で仕切りました。扉にしてFCLを介した2wayにも変更可能です。
■リビング/和室
・リビング上部が大きく吹抜ているので、LDKは+αの広さを感じられます。
・高窓からたくさんの光を取り込む、明るい空間となっています。
・高い天井にシーリングファンを取り付けると、空気が循環するのでお勧めです。
・リビングの横に、琉球畳を敷いたモダン和室を配置しました。
・リビングと畳の間に建具を付けて、開け放して一体的に、閉じると客間として利用できます。
・和室の吊戸棚下を地窓とする事で、趣きのある空間になります。
・手すりをスチール製や木製格子などにすると、より個性的な空間となります。
■ダイニングキッチン
・キッチンからソファや畳コーナーを見渡せます。
・家族の様子が分かるオープンなキッチンとしました。
・キッチンカウンターの周りを立ち上げ、散らかりがちな手元をリビングから隠しました。
・ダイニングからテレビが見えるように配置しました。
・ダイニングの一角に、多目的に利用できるスタディスペースと図書コーナーを設けました。
■水廻り
・動線をキッチン近くに集約して配置しました。
・洗面洗濯室とFCLがウォークスルーで繋がり、一連の作業がスムーズに行えます。
・2ボウルの洗面スペースで、朝の混みあう時間でも並んで身支度が可能です。
・洗濯機の横に、洗濯物シューターを設置しました。2階から1階の洗濯機横に洗濯物が落ちる仕組みです。
・トイレを各階に設けました。1階トイレは、手洗い付きカウンター収納棚を配置しています。
■2階
・廊下からリビングを見下ろせます。
・吹抜周りに個室を配置しました。2階にいても1階の様子を感じ取れます。
・吹抜に設けた高窓を通して、明るい光がリビングへと注ぎ込みます。
・子ども部屋は、将来2つに仕切っても窓が取れるようにしました。
・主寝室に書斎スペースを設けました。
・洗濯物シューターは、みんなが利用できるホールに配置しました。
■敷地配置
・駐車場は東側に2台分を確保しました。
・玄関は鬼門を避け、東入りとしました。
36坪 3LDK関連の間取り
マドリー開発の『住宅営業支援ツール』
madreeデータバンク
マドリーの人気間取り4,800プランを接客・提案に活用できる営業支援ツール
- 競合他社と差がつく、スピード提案
- トレンド間取りで、集客・受注数UP
- 建築家のアイデアを参考に、質の高い提案ができる









