[36坪 4LDK] リビングインで温度差ない快適な水廻り、将来も見据えた平屋のような家の間取り
全国の建築家から間取りが集まるmadree(マドリー)で集まった36坪、4LDKの間取りです。外とつながるLDKやアウトドアリビングが特徴の注文住宅の間取りです。
リビングインで温度差ない快適な水廻り、将来も見据えた平屋のような家はこのような方におすすめです
・30代共働き夫婦、息子2歳/将来的にあと1人子ども予定
・趣味:読書、料理、お菓子作り
・よく土付きの野菜をもらうので、キッチンに勝手口を設けたい。
・冬場に洗面・脱衣室が寒くならないよう、水廻りをリビングに隣接させたい。
全国対応になりました
| 広さ | |
|---|---|
| 土地特徴 | |
| 階数 | |
| 部屋数 | |
| 家族人数 | |
| 特徴 | |
| 担当建築家・デザイナー |
建築家・デザイナー
からのコメント
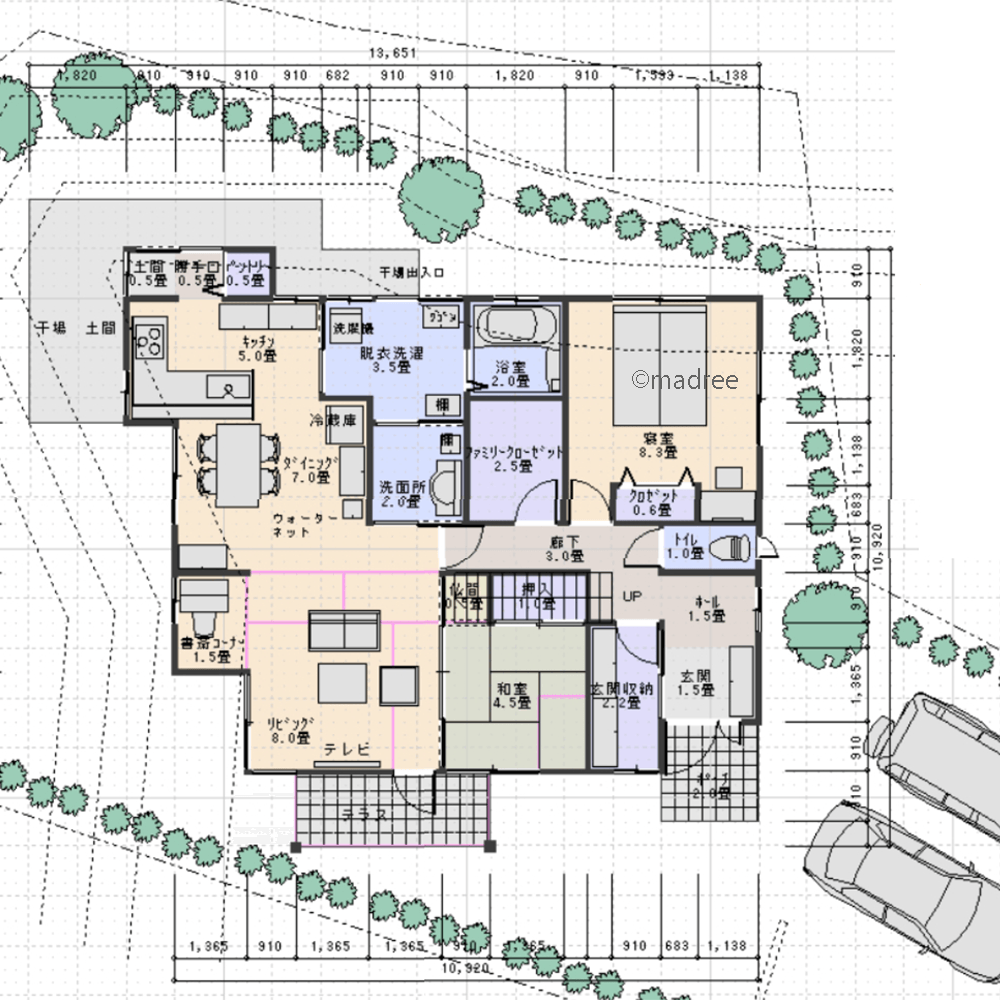
【全体のコンセプト】
「家事が楽になる動線」
・キッチンからの動線が最短となるような間取りとした。(キッチン→ダイニング→リビング→和室/キッチン→脱衣・洗濯→浴室)また、キッチンに隣接して土間とパントリーと勝手口を配置した。
【各階のポイント】
■1階
・玄関周囲に家族の動線(玄関→玄関収納→廊下)を確保した。
・書斎は景色が楽しめるように西側に配置し、家族の存在を感じられるようにリビングに隣接した。
・リビングのテレビは、ダイニングやキッチンからも見れるようにした。
・リビングに和室を隣接させ、引込戸を開けることによって連続した空間にもなるように。
・キッチンは対面式とし、リビングやダイニングを見ながら調理できるようにした。
・冷蔵庫はキッチンに入ることなく利用でき、キッチンからも近い配置にした。
・キッチン、ダイニング、リビング、洗面、脱衣洗濯は引き戸を開けることで自由に動き回ることができるようにした。
・脱衣洗濯の外への出口を引き戸とした。また、脱衣洗濯室を広くとり、室内干しも可能とした。
・浴室には窓を設置。
・ファミリークローゼットを中央に配置した。
■2階
・子ども室2室を配置し、南側にベランダを設けた。
・ベランダはBBQができるように広くした。
■その他
・できるだけ地盤改良を少なくするため、子ども室は2階に配置し、1階の床面積を小さくして地盤改良が1.0mまでの範囲になるようにした。
・建物の西側を洗濯干場スペースとした。
・玄関から駐車場まで最短アクセスで行けるように配慮した。
36坪 4LDK関連の間取り
マドリー開発の『住宅営業支援ツール』
madreeデータバンク
マドリーの人気間取り4,800プランを接客・提案に活用できる営業支援ツール
- 競合他社と差がつく、スピード提案
- トレンド間取りで、集客・受注数UP
- 建築家のアイデアを参考に、質の高い提案ができる









