[40坪 4LDK] キッチンから一直線の洗濯動線と、各所の収納で暮らしが整う家の間取り
全国の建築家から間取りが集まるmadree(マドリー)で集まった40坪、4LDKの間取りです。外とつながるLDKやアウトドアリビングが特徴の注文住宅の間取りです。
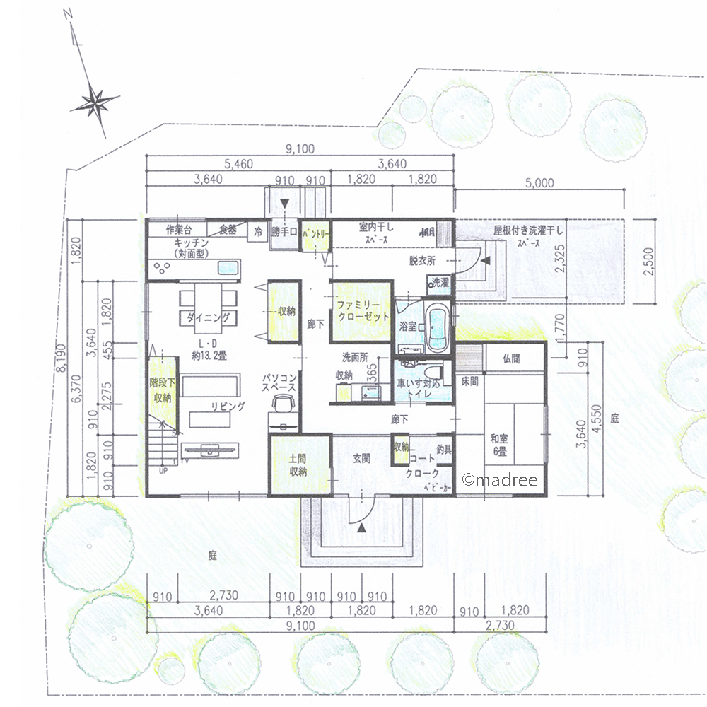
キッチンから一直線の洗濯動線と、各所の収納で暮らしが整う家はこのような方におすすめです
・30代夫婦、子ども1歳/あと1人子ども予定
・趣味:釣り、TVゲーム
・夫の仕事が不規則なので、日中もしっかり休める寝室配置にしたい。
・アレルギー対策で、各部屋から布団を楽に干せるようにしたい。
全国対応になりました
| 広さ | |
|---|---|
| 土地特徴 | |
| 階数 | |
| 部屋数 | |
| 家族人数 | |
| 特徴 |
|
| 担当建築家・デザイナー |
建築家・デザイナー
からのコメント
【全体のコンセプト】
家事動線に配慮し、効率よく家事を行うことで、少しでもゆとりの時間が生まれることをコンセプトとしました。
【各階のポイント】
■1階
・キッチン・脱衣室・ファミリークローゼットへの動線を一番に考え、無駄なく家事を行えるようにしました。
・脱衣室に室内干しスペースをしっかり設け、脱衣室から外の洗濯干し場に出れるようにし、雨の日にも対応出来るように屋根を設置しました。
・玄関周辺に収納スペースを各所に設け、お出かけ・帰宅の整理をスムーズに出来るようにしました。
・LDKは一体空間にし、南の掃き出し窓から温かな光と風を取り入れ、ゆっくり家族団らんをできる空間としました。
・和室は来客対応しやすいよう、LDKとは切り離しました。
■2階
・主寝室や子ども部屋の各部屋からベランダに出れるようにし、ベランダを一つにつなぐことで、布団干しを容易に出来るように考慮しました。
・ウォークインクローゼットは、廊下・主寝室から出入り出来るようにしました。
・廊下に本棚スペースを設けました。
40坪 4LDK関連の間取り
マドリー開発の『住宅営業支援ツール』
madreeデータバンク
マドリーの人気間取り4,800プランを接客・提案に活用できる営業支援ツール
- 競合他社と差がつく、スピード提案
- トレンド間取りで、集客・受注数UP
- 建築家のアイデアを参考に、質の高い提案ができる









