[46坪 5LDK] ガレージの愛車を常に感じられる、外の視線を遮り開放的に暮らす家の間取り
全国の建築家から間取りが集まるmadree(マドリー)で集まった46坪、5LDKの間取りです。外とつながるLDKやアウトドアリビングが特徴の注文住宅の間取りです。
ガレージの愛車を常に感じられる、外の視線を遮り開放的に暮らす家はこのような方におすすめです
・自営業の40代夫婦、子ども3人(長男12歳,長女9歳,次女7歳)
・趣味:バイク、料理、お菓子作り、家族でボードゲーム
・子ども達と料理をしたいので、生活感を隠せる広いキッチンを希望。
・それぞれの個室は明るく、かつ布団を楽に干せるようにしたい。
全国対応になりました
建築家・デザイナー
からのコメント
【こだわりのポイント】
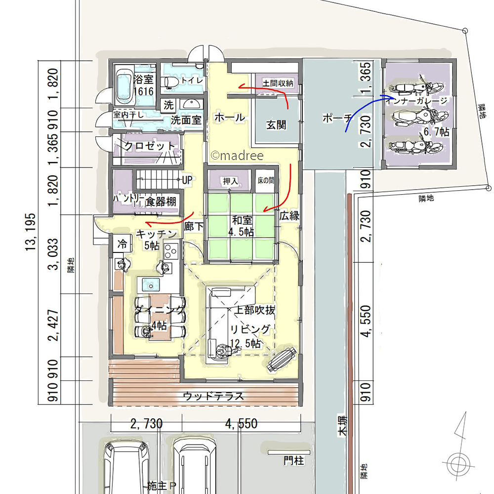
■配置計画
・南側に駐車スペース2台と来客用駐車スペース2の台計4台の駐車スペースを設けました。
・東側隣地境界沿いに木塀を設け、堤防からの視線を少し緩和させながら、アプローチ〜ポーチへと続きます。アプローチ終点にあるポーチの東側にガレージ(バイク用)、西側に玄関を配置しました。
・ガレージの扉はガラスサッシとして、中のバイクをいつも見られる様に考えました。
■平面計画
・広い玄関には土間収納を隣接させ、2way動線としました。広縁を経由して和室に行ける来客動線も確保しました。
・浴室・洗面・CLを隣接させ、洗濯・収納を簡潔にしました。
・キッチンの食器棚は、階段下の扉の収納に入れ(パントリー併設)ました。
・L型キッチンとリビングに壁面を設け、リビングの独立性を確保しました。
・2階はバルコニーをぐるりと回るように設け、布団干しも十分な広さを確保しました。
46坪 5LDK関連の間取り
マドリー開発の『住宅営業支援ツール』
madreeデータバンク
マドリーの人気間取り4,800プランを接客・提案に活用できる営業支援ツール
- 競合他社と差がつく、スピード提案
- トレンド間取りで、集客・受注数UP
- 建築家のアイデアを参考に、質の高い提案ができる









