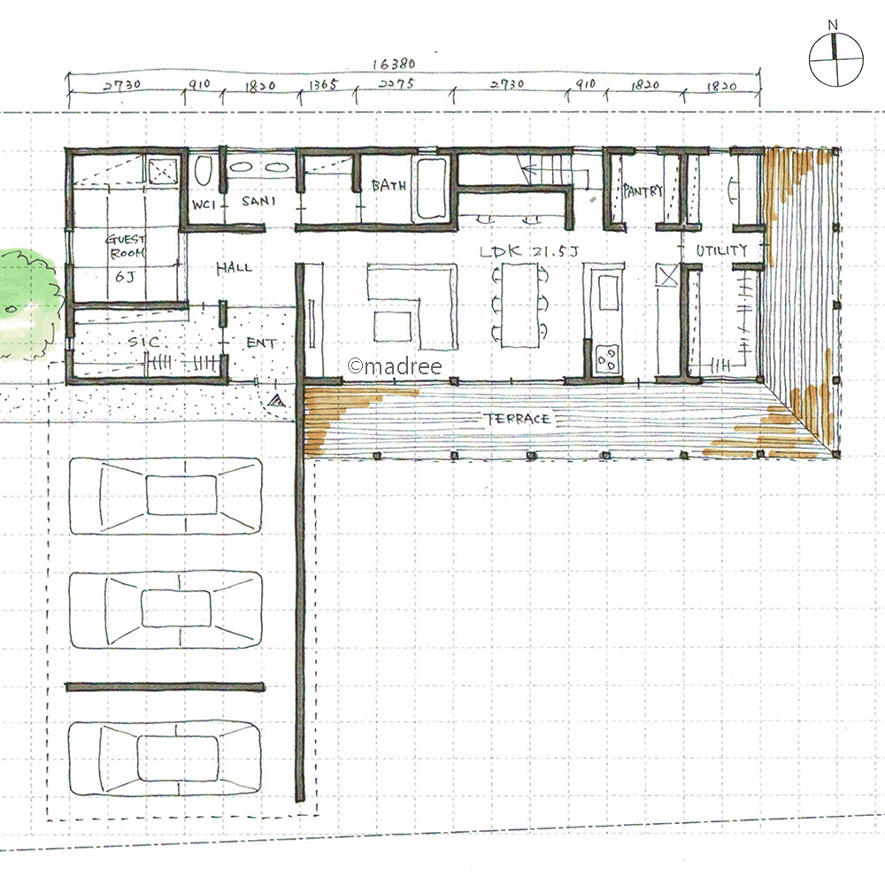
[45坪 4LDK] 天気を気にせず楽に荷下ろし、駐車場からテラスまで広く屋根で繋がる家の間取り
全国の建築家から間取りが集まるmadree(マドリー)で集まった45坪、4LDKの間取りです。外とつながるLDKやリビング吹抜が特徴の注文住宅の間取りです。
天気を気にせず楽に荷下ろし、駐車場からテラスまで広く屋根で繋がる家はこのような方におすすめです
・30代共働き夫婦(子ども2人くらいを予定)
・趣味:寝ること、音楽鑑賞
・部屋干しスペースの近くに、適温で作業できる家事スペースを設けたい。
・不審者を寄せ付けず、道路や外からの視線が気にならない庭にしたい。
全国対応になりました
建築家・デザイナー
からのコメント
【全体のコンセプト】
・家事が楽しくスムーズにこなせる家。
・みんなの笑顔が広がる癒され空間。
【こだわりのポイント】
■1階
・駐車スペースと建物を北西側に配置し、南東側からの採光を確保しました。
・車3台分のスペースを西側にまとめ、玄関前一体に屋根を掛けました。
・北側に水廻りをまとめ、南側から採光が取れる明るいLDKとしました。
■2階
・ホールと吹抜を中心に配置しました。
・主寝室と子ども室に、南東側からの採光が取れます。
45坪 4LDK関連の間取り
マドリー開発の『住宅営業支援ツール』
madreeデータバンク
マドリーの人気間取り4,800プランを接客・提案に活用できる営業支援ツール
- 競合他社と差がつく、スピード提案
- トレンド間取りで、集客・受注数UP
- 建築家のアイデアを参考に、質の高い提案ができる









