[43坪 3LDK] 中庭から隅々まで光が届く、開放感とプライバシーのいいとこ取りの平屋の間取り
全国の建築家から間取りが集まるmadree(マドリー)で集まった43坪、3LDKの間取りです。外とつながるLDKやアウトドアリビングが特徴の注文住宅の間取りです。
中庭から隅々まで光が届く、開放感とプライバシーのいいとこ取りの平屋はこのような方におすすめです
・自営業の30代夫婦、子ども2人(長男4歳、長女2歳)
・趣味:読書、映画鑑賞
・夫婦で家事シェアするので、シンプルな洗濯動線にしたい。
・リビングだけでなく個室も明るくしたいが、直射日光と外部からの視線はカットしたい。
全国対応になりました
| 広さ | |
|---|---|
| 土地特徴 | |
| 階数 | |
| 部屋数 | |
| 家族人数 | |
| 特徴 | |
| 担当建築家・デザイナー |
建築家・デザイナー
からのコメント
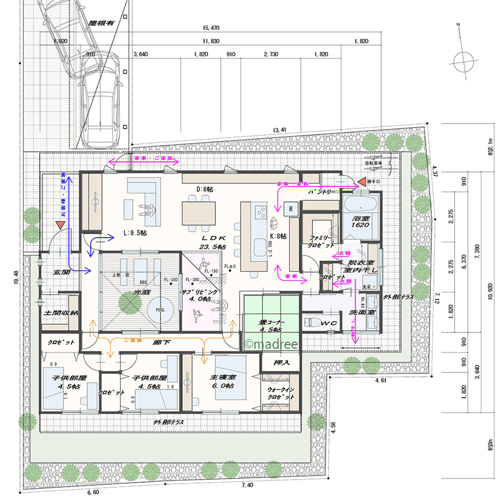
【全体のコンセプト】
「庭を囲んだ平屋」
【こだわりのポイント】
・駐車場:敷地が旗竿地で通路幅が5mであるため、土地の有効利用を考え、通路部分に3台駐車スペースを確保しました。駐車部分約2.2m、車路部分約2.4mとなりますので、運転工夫しながらではありますが、問題なく停めれると考えられます。
・玄関:中庭(光庭)が視界に飛び込み、シンボルツリーが出迎える計画としています。
・LDK:リビングは玄関に近い位置で、来客動線を短くしています。中庭(光庭) に面して、子ども用のサブリビングを設置し、キッチンからも目の届く位置としています。
・個室:南面採光を確保しています。また、南側境界から距離をとり、閉鎖感を感じないようにしました。
・畳コーナー:来客宿泊に対応できます。LDKと一体なので、多用途に使用可能です。
・水廻り&ファミリークローゼット:ひとまとまりとし、洗濯動線を最短としています。また、キッチンとも隣接させ、ラク家事動線としています。
43坪 3LDK関連の間取り
マドリー開発の『住宅営業支援ツール』
madreeデータバンク
マドリーの人気間取り4,800プランを接客・提案に活用できる営業支援ツール
- 競合他社と差がつく、スピード提案
- トレンド間取りで、集客・受注数UP
- 建築家のアイデアを参考に、質の高い提案ができる









