[27坪〜30坪 3LDK] 階ごとのゾーニングで暮らし整う、視線が抜ける狭小地の三階建て住宅の間取り
全国の建築家から間取りが集まるmadree(マドリー)で集まった27坪〜30坪、3LDKの間取りです。2階リビングやプライバシー守るが特徴の注文住宅の間取りです。
階ごとのゾーニングで暮らし整う、視線が抜ける狭小地の三階建て住宅はこのような方におすすめです
・自営業の40代夫婦、男の子兄弟(10歳、5歳)
・趣味:料理、スノボ、マリンスポーツ、旅行
・調理器具が多いので、それらも収納できる大きなパントリーが欲しい。
・リビングにアウターなど持ち込まないよう、片付けながらの帰宅動線を確保したい。
全国対応になりました
| 広さ | |
|---|---|
| 土地特徴 | |
| 階数 | |
| 部屋数 | |
| 家族人数 | |
| 特徴 | |
| 担当建築家・デザイナー |
建築家・デザイナー
からのコメント
【全体のコンセプト】
「都内で可能な明るくて広いかっちょよい家」
≪配置計画≫
・駐車スペースは計画の敷地と4mの前面道路で切り返して出入庫できるよう計画しました。
・建物位置は前面道路及び北側から0.5m後退する条件をもとに配置しました。
・3階は道路斜線規制(天空率は使わない)の範囲内で計画しました。
≪明るく広いLDK≫
・住まいの真ん中となる2階に、LDKが一体となった家族の空間を配置します。
・道路側と南側に大きな開口部を設け、明るい自然光をとりこみます。
・スケルトン階段を北側中央に配置し、屋上から落ちてくる明るさをLDKにとりこみます。
・道路と南に面する位置にバルコニーを配置し、自然光や風を取り込みます。またLDKに屋外と連続する広がりをもたらします。
≪階ごとのゾーニング≫
・1階は収納と水廻り、2階は家族集まるLDK空間、3階は寝室・個室エリアと、階ごとに明快にゾーニング分けします。
・法規制により3階が狭く、寝室・個室が厳しい広さとなりますが、2階のLDK空間の広さを一番の優先と考えて計画しました。
【各所のポイント】
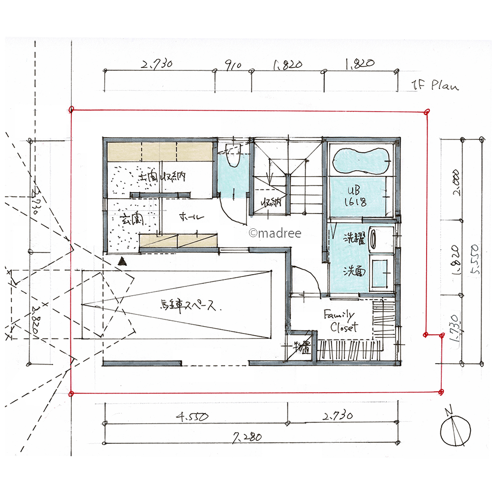
■1階
・玄関:ドアが道路から見えない計画としました。また、玄関わきに土間収納を設けました。屋外着をさっと掛けることができます。下足入れは玄関とホール双方から使えるように配置しています。
・収納:1階にファミリークローゼットを設け、浴室、洗面、洗濯のすぐ隣に設けました。他に、階段下収納、駐車スペースに面した物置など、収納スペースは1階に集約しました。
■2階
・リビング:13.8帖を確保し、バルコニーと合わせると17帖の広々とした空間となります。リビング階段とし、昇り降りする家族を感じることができます。窓は、南向きと道路側に大きく設置し、明るい自然を気持ちよく取り込むことができる計画です。また、ダイニング・キッチンと少しずらして配置し、独立性を出しています。
・ダイニング:バルコニーに面しするよう配置しました。
・キッチン:LDKの中心に配置し、料理しながらLDの家族の様子がわかる計画です。キッチン裏に広いパントリーの3枚引戸は開け放して使用することもできます。
■3階
・寝室、子ども室は集約して3階に配置しました。
27坪〜30坪 3LDK関連の間取り
マドリー開発の『住宅営業支援ツール』
madreeデータバンク
マドリーの人気間取り4,800プランを接客・提案に活用できる営業支援ツール
- 競合他社と差がつく、スピード提案
- トレンド間取りで、集客・受注数UP
- 建築家のアイデアを参考に、質の高い提案ができる









