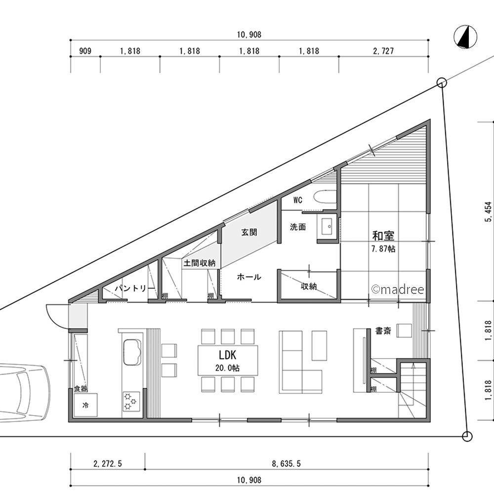
[37坪 4LDK] おもてなし動線で和室へ直行、家族がLDKでゆったり過ごせるの三角地の家の間取り
全国の建築家から間取りが集まるmadree(マドリー)で集まった37坪、4LDKの間取りです。リビング一体の畳やプライバシー守るが特徴の注文住宅の間取りです。
おもてなし動線で和室へ直行、家族がLDKでゆったり過ごせるの三角地の家はこのような方におすすめです
・30代共働き夫婦、子ども4歳(もう1人増える可能性あり)
・趣味:バーベキュー、釣り
・屋上をプラーベートなリラックスできる空間として活用したい。
・来客が多いので、来客動線と家族動線が交わらないようにしたい。
全国対応になりました
| 広さ | |
|---|---|
| 階数 | |
| 土地特徴 | |
| 部屋数 | |
| 家族人数 | |
| 特徴 | |
| 担当建築家・デザイナー |
建築家・デザイナー
からのコメント
【全体のコンセプト】
・LDKと和室が程よい距離感の家。
【こだわりのポイント】
■1階
・LDKを直線的に配置する事で、キッチンから全体を見渡すことができます。
・調理中にテレビを視聴する事が可能です。
・打合せ中に確認等が必要になる場合を想定し、和室の南側に書斎を計画しています。
・資料を広げるに充分な幅のカウンター、ファイルを収納する棚を設けています。
・駐車場側に勝手口を設け、買い物をしてきた食材や日用品などの搬入が楽に行えます。
・勝手口近くに棚を設け、靴や鍵等の小物を収納できます。
■2階
・水廻りと居室をコンパクトにまとめ、広いバルコニーが確保できるようにしました。
・バルコニーには塔屋を設けず、広めのバルコニーとしました。
37坪 4LDK関連の間取り
マドリー開発の『住宅営業支援ツール』
madreeデータバンク
マドリーの人気間取り4,800プランを接客・提案に活用できる営業支援ツール
- 競合他社と差がつく、スピード提案
- トレンド間取りで、集客・受注数UP
- 建築家のアイデアを参考に、質の高い提案ができる









