[55坪 3LDK] 親子の時間をたくさん共有し、空間でオンオフ切替える4階建ての家の間取り
全国の建築家から間取りが集まるmadree(マドリー)で集まった55坪、3LDKの間取りです。2階リビングや広く感じるLDKが特徴の注文住宅の間取りです。
親子の時間をたくさん共有し、空間でオンオフ切替える4階建ての家はこのような方におすすめです
・40代夫婦、女の子姉妹(4歳,3歳)
・趣味:映画鑑賞、山登り
・家族全員が仕事や勉強に集中できる、コワーキングスペースが欲しい。
・生活にメリハリをつけたいので、ダイニングとリビングはゆるく空間分けしたい。
全国対応になりました
| 広さ | |
|---|---|
| 土地特徴 | |
| 部屋数 | |
| 家族人数 | |
| 特徴 | |
| 担当建築家・デザイナー |
建築家・デザイナー
からのコメント
【全体のコンセプト】
≪家族の時間をうみだすLDK≫
・LDKが一体となった家族の空間を2階に設置します。
・南側に大きな開口部を設け、明るい自然光をとりこみます。
≪リラックスと集中をわけられる計画≫
・2階は全員でリラックスエリア、3階はお休みのスリーピングエリア、4階は集中のワーキングエリアとし、階ごとに性格をわけた計画とします。
≪回遊性のある家事動線≫
・2階キッチンからはパントリー、洗濯ルームへの裏動線を確保し、回遊性のある使いやすい家事動線を計画します。
【全体計画】
・4階建てのご希望がありますので、日影規制を考慮し建物を配置しました。
・敷地の東側道路から入ることのできる駐車スペース2台を設けました。
・構造は鉄骨造を想定しました。
・日影規制は3階部分建物高さを9.5m、4階部分建物高さを12mとして計算し、クリアすることを確認しています。(真北方向は地図に拠っていますので、後々正確なもので検証が必要です。)
【各階のポイント】
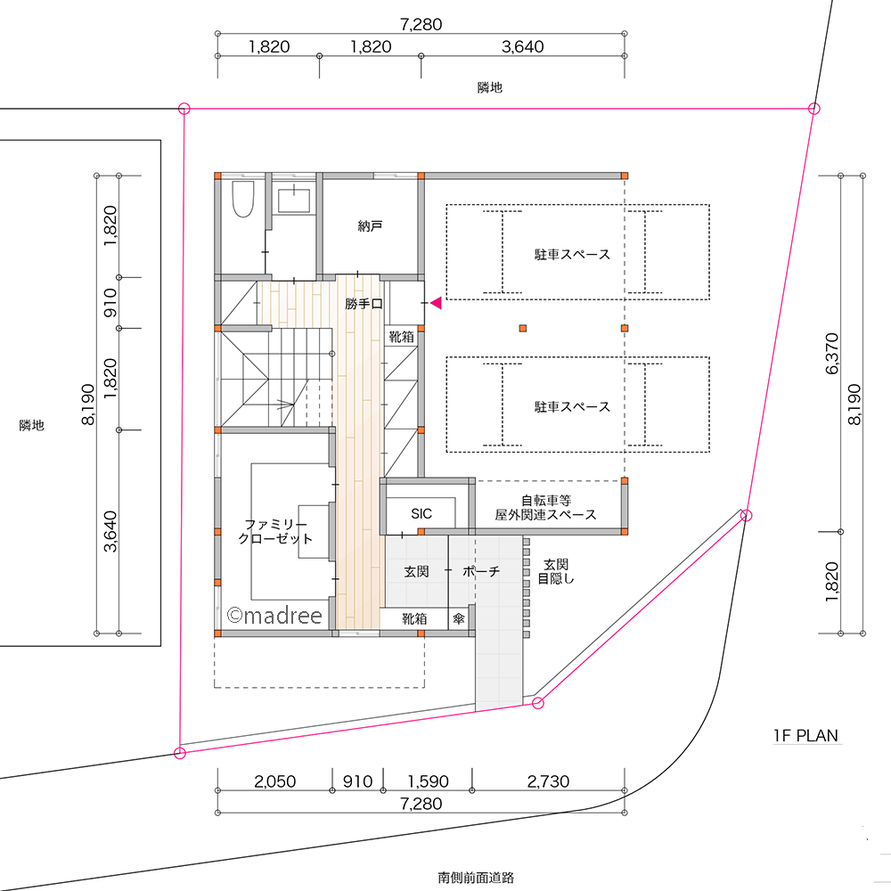
■1階
≪玄関、勝手口≫
・玄関ドアが道路から見えないように、アプローチの途中で一度90°にまがって玄関に向かう計画です。
・玄関近くに広いファミリークローゼット(ウォークスルータイプ)を設けます。また別にシューズインクローゼットを玄関脇に設けました。
(※ファミリークローゼットは2Fの水廻り近く、または3F寝室そばに設けることも考えましたが、それぞれ居室の広さが狭くなるため止めました。)
・駐車スペースから直接入ることのできる勝手口を設けました。その脇には納戸を設け、主に屋外用品、山登りの用具などの収納をイメージしました。
■2階
≪リビング≫
・LDKは20帖を確保し、広々とした空間となります。
・LDKのどこからでも階段をみることができます。昇り降りする家族を感じることができます。
・LDKの窓は、南向きの道路側に大きく設置し、明るい自然を気持ちよく取り込むことができる計画です。
・キッチンの東側、階段の西側にも小窓を設け、LDKの四方から自然通風の流れがとれることを考えました。
≪キッチン≫
・LDKの中心に配置し、料理しながらLDの家族の様子がわかる計画です。
・キッチンからもテレビが楽しめる配置です。
・キッチン裏にパントリーを設けました。またそこから洗面洗濯ルームへ入ることもできます。
≪水廻り≫
・洗面ボウル2器、ドラム式洗濯機2台を一直線上に設置しました。
・洗濯ルームには衣服棚兼作業机を設け、この室でも洗濯をたたむ作業ができように考えました。
・洗面、洗濯ルームの扉は引戸としています。ドタバタしている時には、開け放して使うこともできるよう考えました。
≪トイレ≫
・各階に設置とのことでしたが、4階には設けていません。
■3階
・TV観賞できる主寝室、3つの子供室を設けました。子供室は将来間仕切りできるように考えています。
・1階のファミリークローゼットまで遠い(3F分の昇降が必要となる)ので、サブ的なファミリークローゼットを設けました。
■4階
・コワーキングスペースだけの階として、集中エリアとなるよう意識しました。
55坪 3LDK関連の間取り
マドリー開発の『住宅営業支援ツール』
madreeデータバンク
マドリーの人気間取り4,800プランを接客・提案に活用できる営業支援ツール
- 競合他社と差がつく、スピード提案
- トレンド間取りで、集客・受注数UP
- 建築家のアイデアを参考に、質の高い提案ができる








