[32坪 2LDK] 居室と生活を分けて快適に過ごす、明るい2階で家事完結できる縦長地の家の間取り
全国の建築家から間取りが集まるmadree(マドリー)で集まった32坪、2LDKの間取りです。2階リビングや広く感じるLDKが特徴の注文住宅の間取りです。
居室と生活を分けて快適に過ごす、明るい2階で家事完結できる縦長地の家はこのような方におすすめです
・30代会社員夫婦、子ども2人(長男6歳、長女3歳)
・趣味:アウトドア、DIY
・リビングのワークスペースは、子どもが居ない時は親の仕事スペースとしても利用したい。
・場所を取る趣味の物がたくさんあるので、収納場所に困らないようにしたい。
全国対応になりました
| 広さ | |
|---|---|
| 階数 | |
| 土地特徴 | |
| 部屋数 | |
| 家族人数 | |
| 特徴 | |
| 担当建築家・デザイナー |
建築家・デザイナー
からのコメント
【全体のコンセプト】
・縦長の土地で快適に住む家。
【こだわりのポイント】
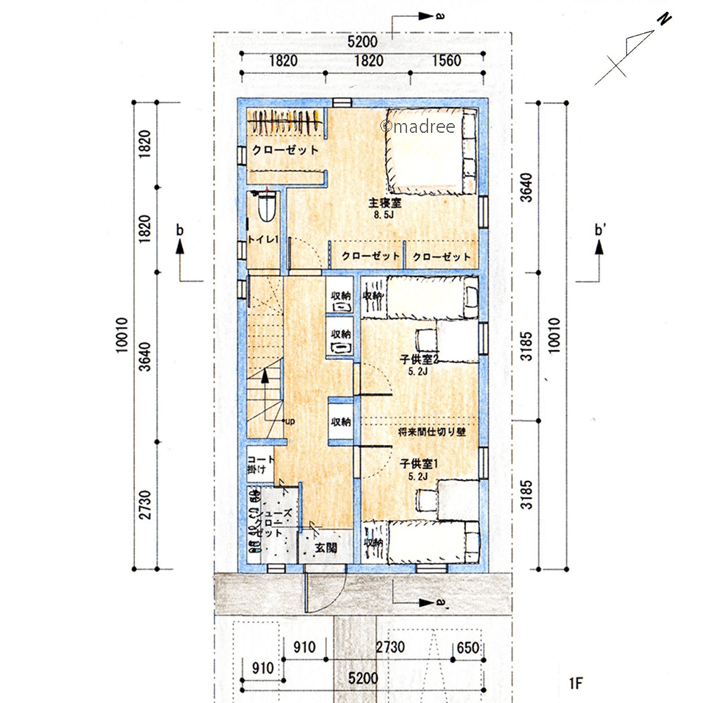
■1階
・南面道路に対して南北に長い敷地を活かして建物を配置しました。
・1階は日照が得られにくいため、1階に寝室と子ども室、2階にLDKを配置しました。
・玄関にSICを設けました。
・廊下の幅を広めに取り、共有で利用できる収納を点在させました。
・寝室と子ども室、各々に収納スペースを設けました。
・子ども室は成長に合わせて間仕切りができます。
■2階
・キッチンに隣接して水廻りがあり、2階で家事が完結できるゾーニングとなっています。
・北側には浴室、洗面室、FCLに繋がるランドリールーム、南側にはLDKを配置しました。
・LDには2人用サイズのデスクがあり、家族共有のワークスペースとして重宝します。
・キッチンは壁で囲われていますが、シンク前にダイニングを伺える窓を設けています。
32坪 2LDK関連の間取り
マドリー開発の『住宅営業支援ツール』
madreeデータバンク
マドリーの人気間取り4,800プランを接客・提案に活用できる営業支援ツール
- 競合他社と差がつく、スピード提案
- トレンド間取りで、集客・受注数UP
- 建築家のアイデアを参考に、質の高い提案ができる









