[50坪以上 6LDK] 老後はイキイキ趣味を楽しむ、気兼ねせず過ごすパーソナル空間のある家の間取り
全国の建築家から間取りが集まるmadree(マドリー)で集まった50坪以上、6LDKの間取りです。外とつながるLDKやアウトドアリビングが特徴の注文住宅の間取りです。
老後はイキイキ趣味を楽しむ、気兼ねせず過ごすパーソナル空間のある家はこのような方におすすめです
・60代会社経営夫婦
・趣味:ドラム、映画鑑賞、料理、洋裁
・仲間を呼んで料理教室をしても、窮屈にならないような広めのキッチンにしたい。
・将来を考慮して、生活に困らないようバリアフリーの家にしたい。
全国対応になりました
建築家・デザイナー
からのコメント
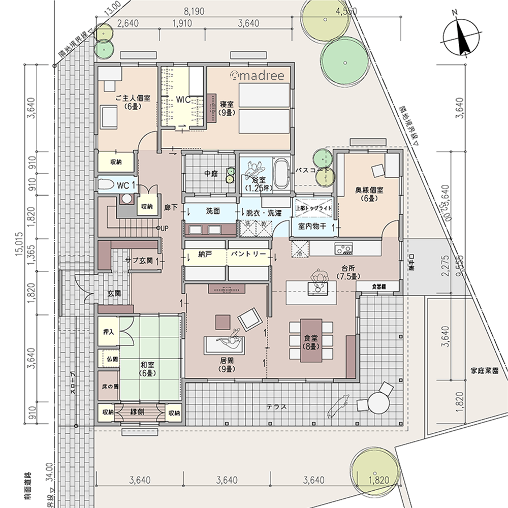
【全体コンセプト】
・広い敷地を活かした、外との繋がりを大切にした家。
・家事がスムーズに行えるよう、動線に配慮した家。
【こだわりのポイント】
■アプローチ/玄関
・正面は板塀でプライバシーを確保していますが、角を曲がると庭を眺めながらアプローチできます。
・玄関前に壁と庇を設け、視線と雨を遮れるようにしています。
■居間/食堂
・南側に配置し、光と風と屋外を感じながら過ごせるようにしました。
・勾配天井とする事で、空間に広がりを持たせています。
・広いテラスをL字に設け、室内外の中間領域としてBBQやお茶などを楽しめます。
■和室
・引き込み戸を開け放てば、居間と同じ空間として利用できます。
・来客を玄関から直接誘導できます。
■キッチン/水廻り
・広いキッチンをⅡ型に配置し、料理教室の際はアイランド周りを生徒さんが囲む事ができます。
・玄関→納戸→パントリー→キッチンと繋がる裏動線を設けました。
・キッチンから妻個室や洗濯室へアクセスできます。
・キッチンとトップライトのある部屋干しスペースを隣接させました。
■妻個室
・キッチンと水廻りへのアクセスを確保しました。
・将来の料理教室の時にも利用しやすいように、資料を収納できる場所を確保しました。
■浴室
・前にバスコートを設けました。視線を気にせず、外を眺めながら入浴できます。
■寝室
・北側に配置しています。中庭とも面しているため、風が気持ち良く通り抜けます。
■夫個室
・映画や音楽を気兼ねなく楽しめるよう、奥側へ配置する事で音に配慮しました。
■2階
・家族の帰省時に利用できるように部屋を確保しています。
・広いルーフテラスを設け、布団も干せるようにしています。
50坪以上 6LDK関連の間取り
マドリー開発の『住宅営業支援ツール』
madreeデータバンク
マドリーの人気間取り4,800プランを接客・提案に活用できる営業支援ツール
- 競合他社と差がつく、スピード提案
- トレンド間取りで、集客・受注数UP
- 建築家のアイデアを参考に、質の高い提案ができる









