[42坪 4LDK] 片付けのハードルを下げる裏動線、玄関近くの繋がる収納が暮らしを楽にする家の間取り
全国の建築家から間取りが集まるmadree(マドリー)で集まった42坪、4LDKの間取りです。リビング一体の畳や仏間が特徴の注文住宅の間取りです。
片付けのハードルを下げる裏動線、玄関近くの繋がる収納が暮らしを楽にする家はこのような方におすすめです
・40代自営業夫婦、異性の子ども2人(3歳、5歳)
・趣味:日曜大工、ピアノ
・4畳程の広さがある外部収納に、趣味で使う工具や、複数の自転車を収納したい。
・寒冷地に住んでいるので、ランドリースペースと乾燥機と部屋干しで対応できるようにしたい。
全国対応になりました
| 広さ | |
|---|---|
| 土地特徴 | |
| 階数 | |
| 部屋数 | |
| 家族人数 | |
| 特徴 | |
| 担当建築家・デザイナー |
建築家・デザイナー
からのコメント
【全体のコンセプト】
・暮らしやすい動線計画。
・適材適所の収納計画。
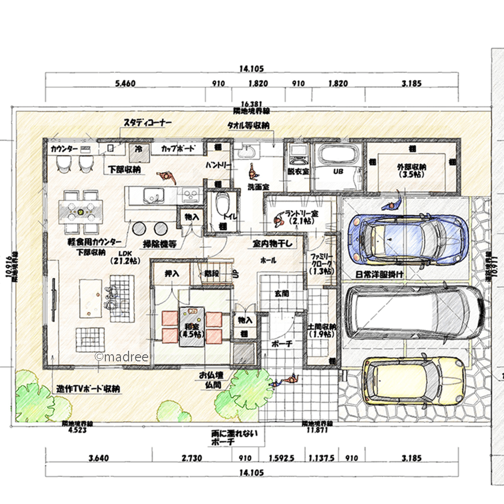
■配置/1階
・雨天時でも濡れないよう、カーポート設置予定の隣に外部収納を設けました。自動車も3台駐車できます。
・ポーチは深い軒で雨風を防ぎます。
・玄関扉は道路から見えない位置にあるため、家族のプライバシーを守れます。
・玄関近くに、物入れ・土間収納・FCLなど、使い勝手の良い収納スペースが続きます。
・帰宅後の手洗いがしやすいよう、ホールからほぼ直線で洗面室に入れるようにしました。
・洗面室の入口は扉をなくす事も可能ですが、トイレの入口などを考慮して付けた計画としています。
・洗面室から、脱衣室やランドリー室にも直接入れるため、家事の軽減に繋がります。
・ランドリー室→FCLの動線を確保したので、乾燥後そのまま洋服を掛ける事もできます。
・来客時、和室は玄関ホールから直接入る事ができます。トイレなどの水廻りも近い配置としています。
・和室の押入れは、階段下を有効利用しています。
・明るい場所に仏間の場所を確保しました。仏壇の幅に合わせて、物入れの幅を調整できるようにしています。
・家事効率を考慮し、洗面室→パントリー→キッチンの裏動線を確保しました。荷運びの負担軽減にも繋がります。
・キッチン収納は、パントリーとカップボードを合わせて3.6m程を確保しました。
・ダイニングにワークコーナーを設ける事で、家事の合間に勉強の様子を見守る事もできます。
・キッチン前を利用して、日常用の物入れと収納も兼ねた軽食用カウンターを設けました。
・ゆとりのあるリビングにTVボードを設置しました。
■2階
・子ども室は収納別でそれぞれ5.3帖あり、将来間仕切りできる部屋の構成です。南向きの明るい場所としています。
・納戸を階段近くに配置し、水平動作の荷運びが楽に行えるようにしました。
・廊下が各居室に囲まれている事で、冬の寒さ軽減に繋がります。
・廊下の中心付近にFCLを配置しているので、主寝室からも子ども室からも近い距離で利用できます。
・独立した書斎は主寝室と近く、仕事でも趣味でも利用しやすくしました。
・1階の仏間上部に部屋が来ないようにレイアウトしています。
42坪 4LDK関連の間取り
マドリー開発の『住宅営業支援ツール』
madreeデータバンク
マドリーの人気間取り4,800プランを接客・提案に活用できる営業支援ツール
- 競合他社と差がつく、スピード提案
- トレンド間取りで、集客・受注数UP
- 建築家のアイデアを参考に、質の高い提案ができる









