[36坪 3LDK] 暮らし合わせて光をうまく取り込む、フリールームが生活の中心の家の間取り
全国の建築家から間取りが集まるmadree(マドリー)で集まった36坪、3LDKの間取りです。外とつながるLDKやダイニング吹抜が特徴の注文住宅の間取りです。
暮らし合わせて光をうまく取り込む、フリールームが生活の中心の家はこのような方におすすめです
・30代共働き夫婦、娘1歳/あと1人子ども希望
・趣味:旅行、スポーツ、ヨガ
・自宅教室を開きたいので、多目的に使えるフリールームが欲しい。
・家族や個々でのんびりリラックスして過ごせる外空間を設けたい。
全国対応になりました
| 広さ | |
|---|---|
| 階数 | |
| 土地特徴 | |
| 部屋数 | |
| 家族人数 | |
| 特徴 | |
| 担当建築家・デザイナー |
建築家・デザイナー
からのコメント
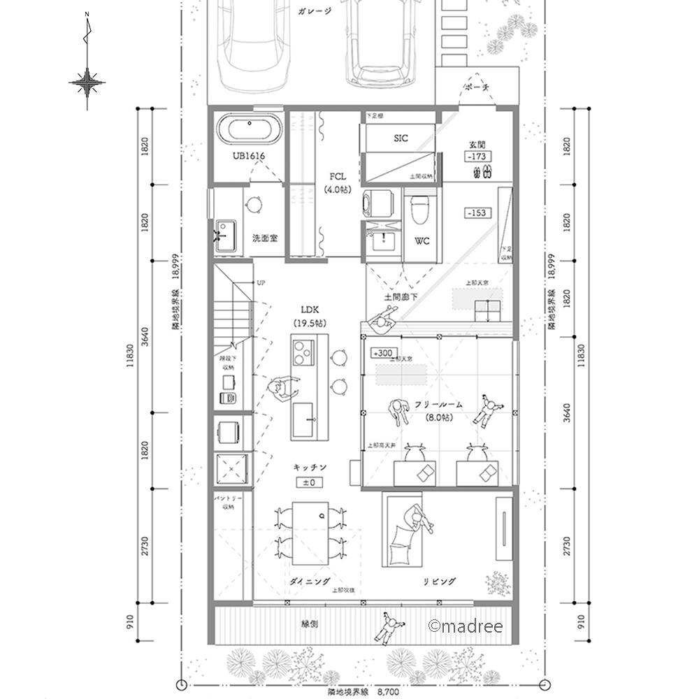
【全体のコンセプト】
「集いの家」
・三方向を隣地に囲まれる敷地のため、光を落とすゾーン、光を入れすぎず落ち着きを持たせるゾーンを各室の使われ方に合わせました。
・生活の変化に応じ、様々な使い方ができるフリールームを家の中心に配置し、家族や友人と交流が図れ、集いが促進される空間になります。
・ホール・フリールームは高天井となっており、安定採光が期待できる北側に天窓を設ける事で、のびのび使える空間となるよう設計しました。
【こだわりのポイント】
■1階
「家族空間、交流空間」
・家族でくつろぐ空間と、お客様や友人と交流する空間を分けつつも一体としても使える空間にする事が大きな取り組みです。フリールームがあいまにその空間を設えています。
・フリールームはスタディースペースとしても利用でき、扉を開ければキッチンから眺められます。扉を閉めれば来客時の応接スペースとしたり、教室を開いたりトレーニング等を実施したりすることもできます。玄関の正面に配置し、土間廊下を通ることで大人数で利用しやすいように配慮し、トイレや手洗いも隣接して設けました。また、小上がりになっていることで視線的にもプライベート空間と変化を付けています。
・プライベート動線は、玄関→SIC→FCL→LDKの動線とすることでお客様の動線と重ならないようにしています。
・リビングは家族がくつろぐ空間とするため、光も入れすぎず落ち着く空間となるようにフリールームと壁を隔てています。
・ダイニングは家族一緒に食事をする朝に光を落とし込めるよう、ダイニング上部は吹抜とし、明るいのびのびできる空間に設えました。
・教室であったりトレーニングであったり、様々な人と交流を図りつつもプライベート空間と曖昧に切り替えができるよう、動線の交差を避けること目に見える化を図るため他者利用空間とプライベートは床レベルに変化をつけています。
■2階
「光の透過、豊かな余白」
・子ども部屋は吹抜に面して、下階に光を届けると共に南の光を取り込めるように配慮し、隣地から極力離し光を入れやすいようにしています。
・主寝室は北側に大きな窓を設け優しい光が届くようにしています。
・屋根庭を隣接して設け、大型の洗濯物やくつろぎ空間として利用できます。屋根を屋根とせず大型のバルコニーのような使い方ができるように考えています。
・中心に余白のようなホールを設け、1階のフリールームを利用中は、こちらでもスタディーコーナーとなるようにしました。また、廊下としない事でゆとりや広がりが心理的効果に繋がり豊かに住まっていただければと思います。
36坪 3LDK関連の間取り
マドリー開発の『住宅営業支援ツール』
madreeデータバンク
マドリーの人気間取り4,800プランを接客・提案に活用できる営業支援ツール
- 競合他社と差がつく、スピード提案
- トレンド間取りで、集客・受注数UP
- 建築家のアイデアを参考に、質の高い提案ができる









