[42坪 3LDK] ぐるぐる動線の1階で生活完結、広いデッキでおうちキャンプもできる家の間取り
全国の建築家から間取りが集まるmadree(マドリー)で集まった42坪、3LDKの間取りです。外とつながるLDKやアウトドアリビングが特徴の注文住宅の間取りです。
ぐるぐる動線の1階で生活完結、広いデッキでおうちキャンプもできる家はこのような方におすすめです
・アラサー夫婦、0歳娘/あと2人子ども予定
・趣味:アウトドア、お酒、ホームパーティー
・よく友人家族と食事をするので、目の届く位置に子ども達が遊べる広いデッキが欲しい。
・1階で生活を完結したいので、キッチン中心の家事&生活動線を希望。
全国対応になりました
| 広さ | |
|---|---|
| 土地特徴 | |
| 階数 | |
| 部屋数 | |
| 家族人数 | |
| 特徴 | |
| 担当建築家・デザイナー |
建築家・デザイナー
からのコメント
【全体のコンセプト】
『家にいる事が心地よく、楽しくなる家』
家族が集まる場所は広く開放的にすっきりと。そのまわりにたっぷりの収納スペースをレイアウトしました。リビングダイニングは勾配天井にし、大きな吹抜の開放感のある空間になります。主に収納スペースは回遊動線となっており、日々の家事動線がスムーズになるよう考えました。2階のプライベートな空間はコンパクトにまとめました。
【各所のポイント】
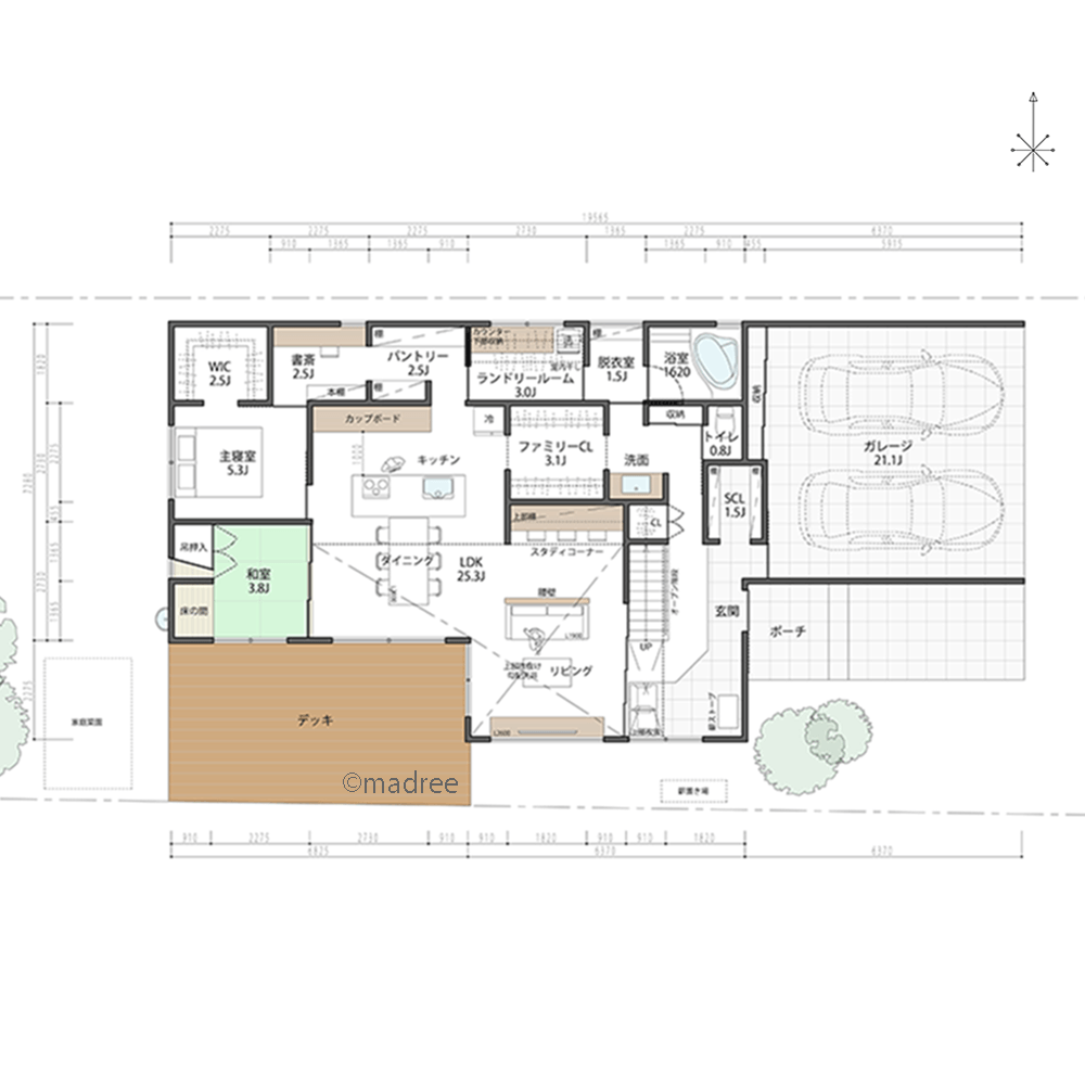
■1階
・玄関を入ると、広い土間空間とオープン階段のあるホールです。土間部分には薪ストーブのスペース、その前にはちょっとした椅子を置けるスペースがあります。そのまま庭に出ることができ、薪もそこに保管できます。
・玄関を挟んで反対側には、ガレージから直接入れるドアがあり、お客様からは見えにくい位置にシューズクロークを設けました。ガレージ部分にも収納スペースはとってありますが、こちらにもアウトドア用品などしまっておけます。
・ホール部分にはアウターなどをかけておけるよう、クローゼットを設けています。洗面やファミリークローゼットで身支度をし、アウターを着て、靴を選び、スムーズにお出かけの準備ができるかと思います。
・リビングと土間部分は、4枚引き戸を開け放ち、大きな空間として使用できます。
・ソファの背面は腰壁にしていますが、格子などで柔らかく間仕切ってもいいかもしれません。
・スタディコーナーは上部の棚に、必要な書類など収納できます。お子さんの勉強や、夫婦の自宅での作業スペースとしても使用できます。
・キッチンはフラットなアイランド型です。通路幅はゆったりと計画し、食器やお酒など飾りながら収納できるよう、背面のカップボードも広めにとりました。見せたくないものはその奥のパントリーにしまえます。また、デッキにもすぐ出すことができます。
・畳コーナーはコンパクトですが、布団は2組敷けます。吊押入れとしているので、お客様が泊まられる際は、この部分にも荷物を置いていただけます。床の間にはお雛さまも飾れます。
・洗面コーナー⇔脱衣室⇔ランドリールーム⇔パントリー⇔ファミリークローゼットは回遊動線になっているので、洗濯物を洗う→干す→畳む→しまうの動作をスムーズにできると思います。
・ランドリールームにはカウンター収納をとっているので、洗濯物を畳んだり、アイロンをかけたりできます。パントリー⇔書斎⇔寝室も回遊動線となっており、しまいたいものを使いやすい場所に好きにしまえるよう考えました。 こまごましたものや書類、掃除機などもたくさん収納できます。
■2階
・お子様の部屋のフロアです。
・ 勾配天井(斜め天井)を利用した吹抜を通してリビングダイニングがつながっているので、家族の様子もすぐ分かります。
42坪 3LDK関連の間取り
マドリー開発の『住宅営業支援ツール』
madreeデータバンク
マドリーの人気間取り4,800プランを接客・提案に活用できる営業支援ツール
- 競合他社と差がつく、スピード提案
- トレンド間取りで、集客・受注数UP
- 建築家のアイデアを参考に、質の高い提案ができる









