[42坪 5LDK] リビングから視線が抜ける中庭と、食事楽しむプライベート庭のある家の間取り
全国の建築家から間取りが集まるmadree(マドリー)で集まった42坪、5LDKの間取りです。外とつながるLDKや広く感じるLDKが特徴の注文住宅の間取りです。
リビングから視線が抜ける中庭と、食事楽しむプライベート庭のある家はこのような方におすすめです
・共働き夫婦、子ども3人(長女14,次女14,長男7)+犬猫1匹ずつ
・趣味:バイク、スノボ
・ペットの散歩後や、部活後にすぐシャワーを浴びれるよう1階にシャワールームを設けたい。
・家族や友人と食事のできる、プライベート重視の庭が欲しい。
全国対応になりました
| 広さ | |
|---|---|
| 土地特徴 | |
| 階数 | |
| 部屋数 | |
| 家族人数 | |
| 特徴 | |
| 担当建築家・デザイナー |
建築家・デザイナー
からのコメント
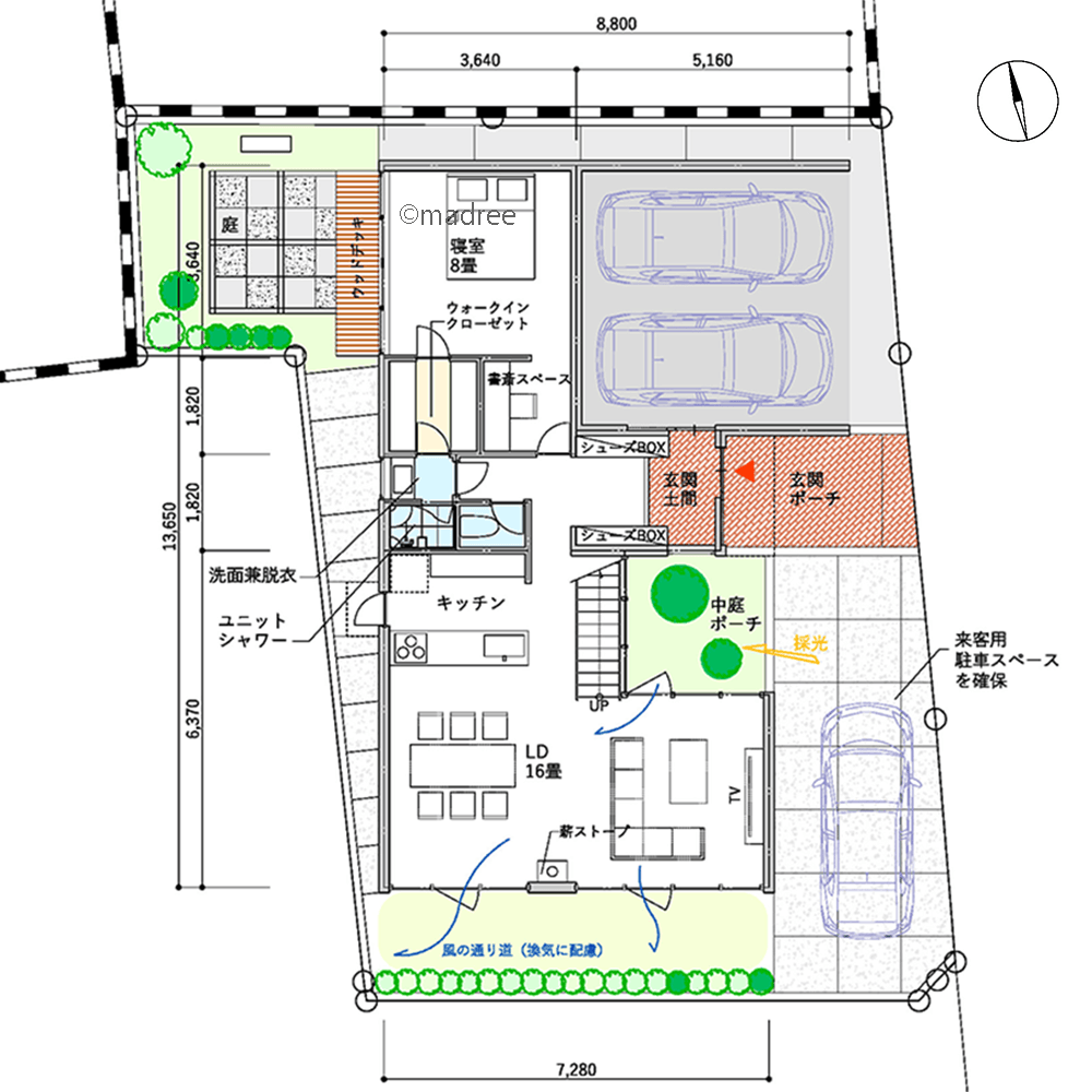
【全体のコンセプト】
「開放的なリビングとビルトインガレージのある家」
【建物配置】
建物は東側道路に平行として敷地中央へ配置し、北側にビルトインガレージを設けました。
【各階のポイント】
■1階
・玄関土間を大きくし、正面とガレージからアクセスできようにしました。
・西日があまりLDKに入らないように南側に開口を設けました。
・玄関とリビングの間に中庭とリビング階段を設け、開放感を演出しました。
・寝室には書斎スペースとWICを、すぐ近くにはWCとユニットシ ャワーを設けました。
■2階
・客間と子ども部屋3部屋を配置し、脱衣スペースと洗濯スペースを分けて設けました。
・ファミリ ークローゼットは洗濯スペースと近接し、家事動線を短くしています。
・バルコニーはガレージ上部に大きく配置し、外干しもすぐできるようにしました。
42坪 5LDK関連の間取り
マドリー開発の『住宅営業支援ツール』
madreeデータバンク
マドリーの人気間取り4,800プランを接客・提案に活用できる営業支援ツール
- 競合他社と差がつく、スピード提案
- トレンド間取りで、集客・受注数UP
- 建築家のアイデアを参考に、質の高い提案ができる









