[35坪 5LDK] 中庭と吹抜で視線が広がる、外部の視線を遮りつつも開放感のある家の間取り
全国の建築家から間取りが集まるmadree(マドリー)で集まった35坪、5LDKの間取りです。外とつながるLDKやアウトドアリビングが特徴の注文住宅の間取りです。
中庭と吹抜で視線が広がる、外部の視線を遮りつつも開放感のある家はこのような方におすすめです
・30代共働き夫婦、子ども2人予定
・趣味:バイク、ドラム、ダイビング、家庭菜園
・開放感を重視したいが、道路や隣家からの視線をカットしたい。
・夫婦ともに在宅ワーカーなので、2箇所ワークスペースを確保したい。
全国対応になりました
| 広さ | |
|---|---|
| 土地特徴 | |
| 部屋数 | |
| 家族人数 | |
| 特徴 | |
| 担当建築家・デザイナー |
建築家・デザイナー
からのコメント
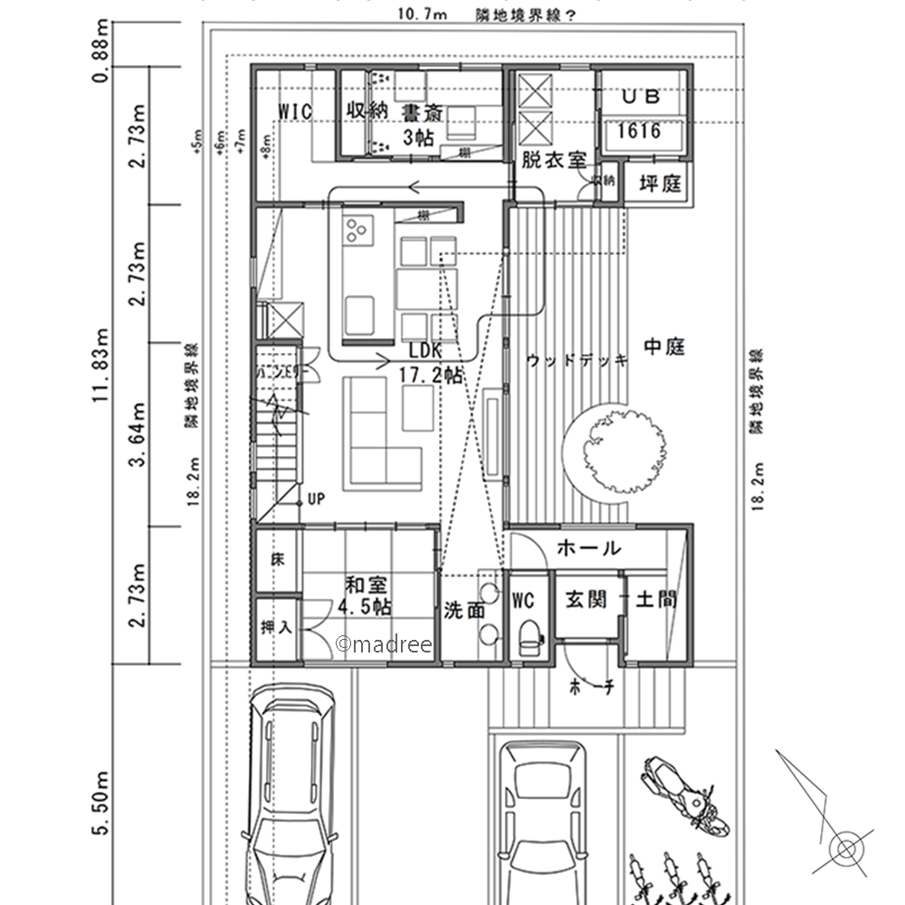
【配置計画】
・南西道路に面して駐車スペースを5.5m取り、車2台+α、バイク、自転車の駐輪スペースを確保しました。
・建物をコの字型として、中庭を設け、プライバシーを確保しました。
・建物のGLは道路より60cm程度上がる設定を考えました。
【平面計画】
・玄関から中庭が見える様に建物をコの字型に配置しました。
・水廻り動線は回遊できる様に考えました。
・2階には吹抜とつながるホールを設け、スタディコーナーを設置しました。
35坪 5LDK関連の間取り
マドリー開発の『住宅営業支援ツール』
madreeデータバンク
マドリーの人気間取り4,800プランを接客・提案に活用できる営業支援ツール
- 競合他社と差がつく、スピード提案
- トレンド間取りで、集客・受注数UP
- 建築家のアイデアを参考に、質の高い提案ができる








