[45坪 3LDK] 屋上デッキで日常から離れて癒やしの時間を、自然に囲まれたアウトドア好きの家の間取り
全国の建築家から間取りが集まるmadree(マドリー)で集まった45坪、3LDKの間取りです。外とつながるLDKやアウトドアリビングが特徴の注文住宅の間取りです。
屋上デッキで日常から離れて癒やしの時間を、自然に囲まれたアウトドア好きの家はこのような方におすすめです
・30代共働き夫婦、子ども2人予定
・趣味:アウトドア、車いじり、料理
・非日常感を楽しみたいので、庭や屋上デッキなど屋外も充実させたい。
・常に家族を感じたいので、キッチンからフロア全体と庭の様子も把握できるようにしたい。
全国対応になりました
| 広さ | |
|---|---|
| 土地特徴 | |
| 階数 | |
| 部屋数 | |
| 家族人数 | |
| 特徴 | |
| 担当建築家・デザイナー |
建築家・デザイナー
からのコメント
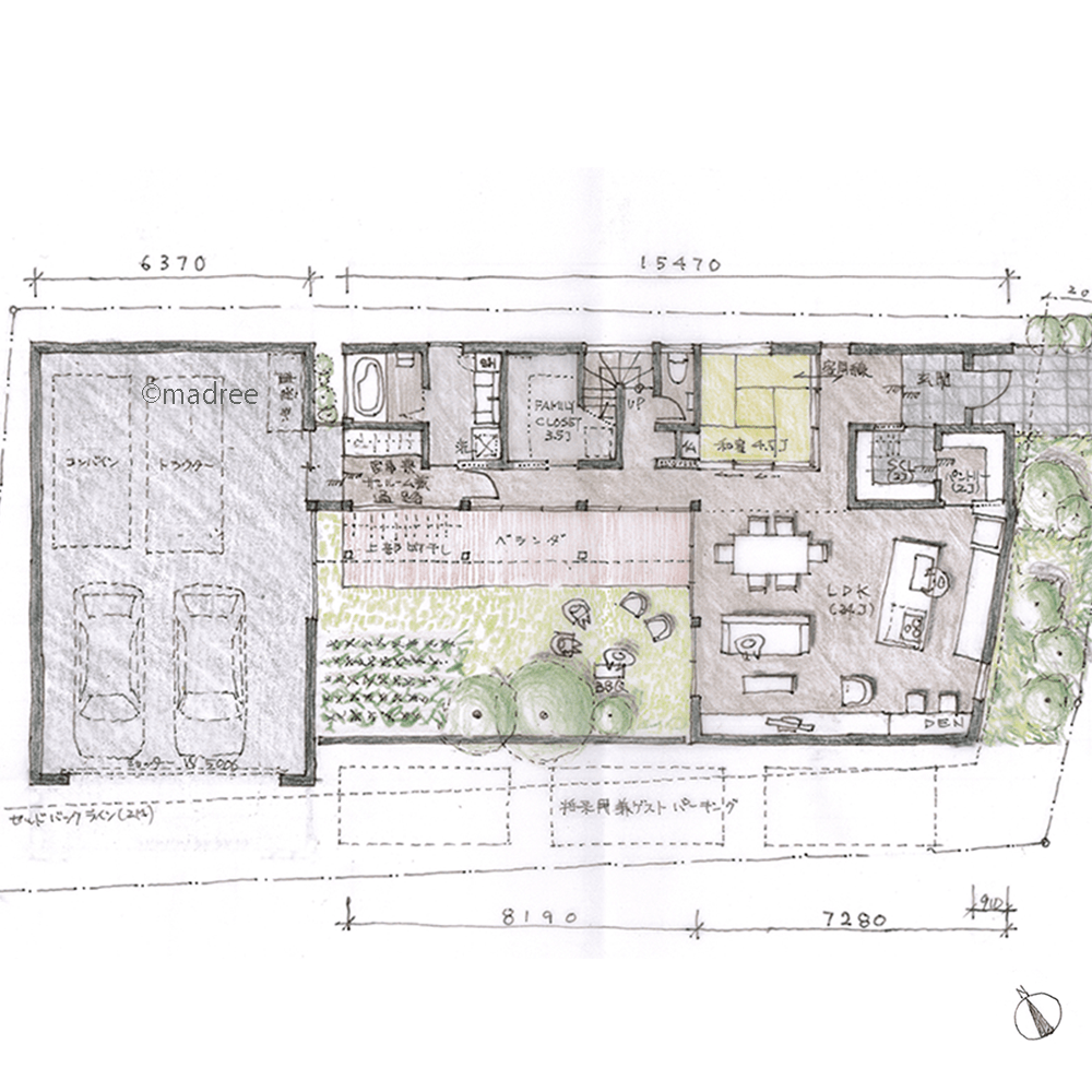
【全体のコンセプト】
・道路に対してはプライバシーを確保し、中庭を中心に開放的で家族の動きを感じながら生活できる空間を目指しました。
・ガレージは奥行寸法を最大限取るために敷地の北西に配置し、道路の交差点側に平屋建てのLDK、敷地中央に中庭という構成にしています。これら3つのスペースをつなぐように残りの住宅機能を2階建てとして北側に配置し、中庭を取り囲むよう回遊性を持たせています。
・中庭に面する窓は大きな掃き出し窓とし、中庭越しに家族の様子が伺える配置計画になっています。
・北側の2階建て部分には2階に寝室および納戸、1階に玄関、浴室、倉庫、和室を配置して十分な壁量を確保して耐震性を持たせています。
・2階建て部分の屋根を道路側に延長させることで、LDKに高い勾配天井を確保し、中庭や和室コーナーとも一体となり広さと開放感を感じられるような設計としています。
【各階こだわりポイント】
■1階
・玄関はガレージと対角線上の位置に配置し、建物出入りをTPOに合わせて使い分けられます。また、玄関から和室、LDKと来客のゾーンを東側に、洗面、洗濯、アイロンなどの生活スペースを西側にゾーニング分けしています。
・LDKは2階廊下から見下ろせるような高い勾配天井と、中庭に対しては開放的に全面窓としています。他方で南東の道路に対しては目線のレベルは基本的に壁とし、ハイサイドウインドウから採光と換気を取れるようにしています。
・LDKとガレージを結ぶ通路は午後の日差しが注ぐ明るい縁側のようなスペース、ガレージからの通路を兼用し、洗濯・家事スペースとしても機能します。
■2階
・中庭に面してベランダを通路としてガレージの一部を屋上デッキにしています。
・子ども室は当面は12帖の大部屋として使い、将来的には6帖と4.5帖の部屋に分割可能です。
45坪 3LDK関連の間取り
マドリー開発の『住宅営業支援ツール』
madreeデータバンク
マドリーの人気間取り4,800プランを接客・提案に活用できる営業支援ツール
- 競合他社と差がつく、スピード提案
- トレンド間取りで、集客・受注数UP
- 建築家のアイデアを参考に、質の高い提案ができる









