[32坪 4LDK] リビング横の小上がりも気持ち良い、公園と面する眺望を生かした二世帯住宅の間取り
全国の建築家から間取りが集まるmadree(マドリー)で集まった32坪、4LDKの間取りです。2階リビングやコンパクトLDKが特徴の注文住宅の間取りです。
リビング横の小上がりも気持ち良い、公園と面する眺望を生かした二世帯住宅はこのような方におすすめです
・共働き夫婦(子どもは1人の予定)、チンチラ(今後犬も飼う予定)、母親
・趣味:雑貨収集、洋服、PC、音楽、TV鑑賞、ペットと遊ぶ
・ペットの生育環境を整えるため、冷暖房効率の良い空間にしたい。
・ハウスダストアレルギーがあるため、段差を少なくして掃除をしやすくしたい。
全国対応になりました
| 広さ | |
|---|---|
| 階数 | |
| 土地特徴 | |
| 部屋数 | |
| 特徴 | |
| 家族人数 | |
| 担当建築家・デザイナー |
建築家・デザイナー
からのコメント
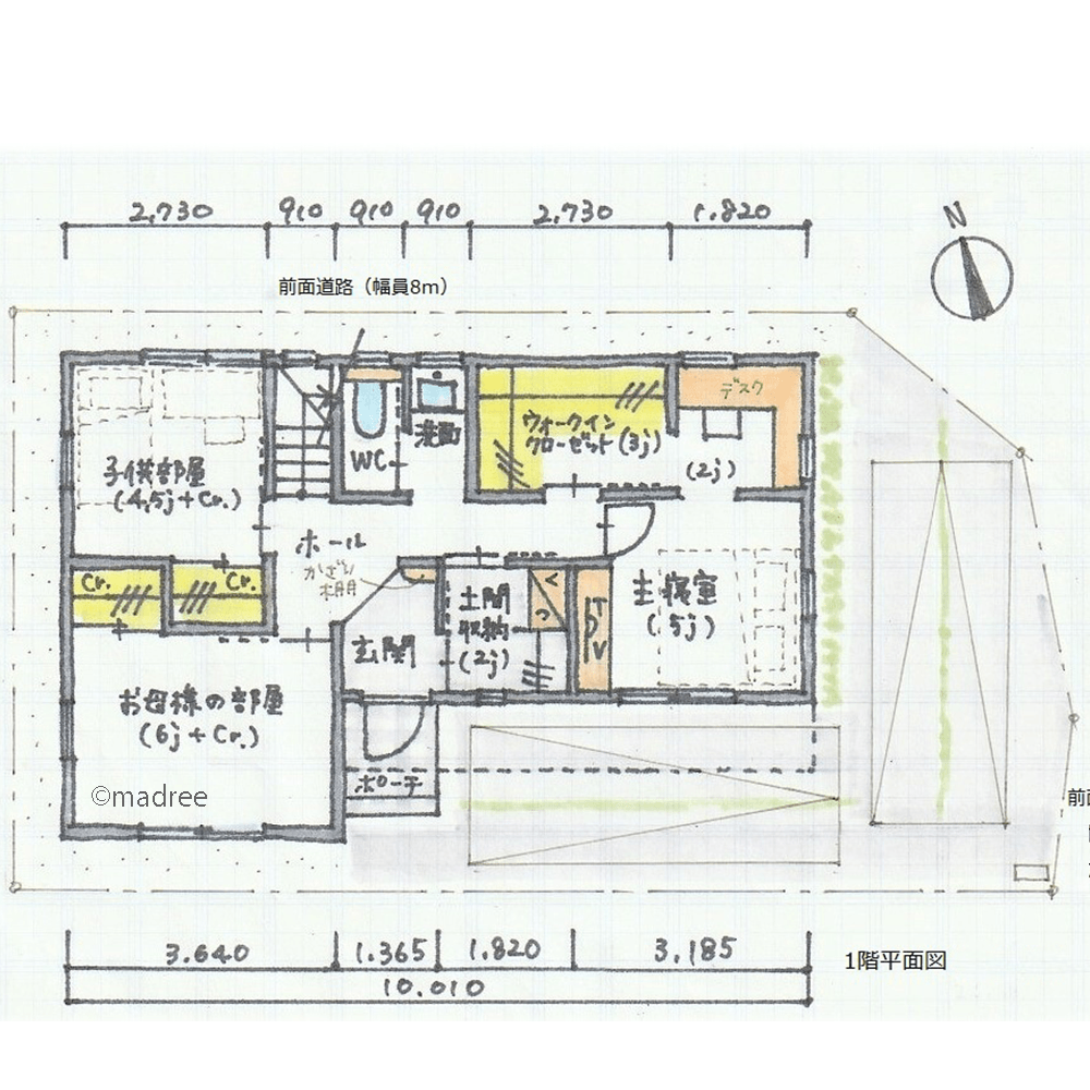
【全体のコンセプト】
・公園に面した2階リビングの家。
■配置計画
・敷地東側と南側に2台分駐車場を設けました。
・玄関は南入りとする事で南側隣地と間隔を取り、南側の光を取り入れる計画としました。
■LDK
・パントリーを引き戸とする事で、家電などをリビングから隠します。
・キッチン背面は低い棚のみとする事で、キッチンの手元を隠しつつ、LDKの一体感と広がりを感じられます。
・畳コーナーは3畳分小上がりとし、床下収納を設けています。
・熱効率を考慮し、階段とリビングに戸を設けています。
■個室
・1階にWICと書斎のある主寝室、子ども部屋、母部屋を確保しました。2階には予備室を1室確保しています。
・子どもが小さいうちは、予備室をおもちゃ部屋や収納としても利用できます。
■水廻り/収納
・玄関に飾り棚を設けました。
・土間収納に靴棚とコート掛けを設けているので、玄関は常にスッキリを保てます。
・玄関からすぐの場所に手洗いを配置しました。
32坪 4LDK関連の間取り
マドリー開発の『住宅営業支援ツール』
madreeデータバンク
マドリーの人気間取り4,800プランを接客・提案に活用できる営業支援ツール
- 競合他社と差がつく、スピード提案
- トレンド間取りで、集客・受注数UP
- 建築家のアイデアを参考に、質の高い提案ができる









