[38坪 5LDK] 仕事とプライベートを空間で切り替え、来客と動線の交わらないサロン併用の家の間取り
全国の建築家から間取りが集まるmadree(マドリー)で集まった38坪、5LDKの間取りです。外とつながるLDKやアウトドアリビングが特徴の注文住宅の間取りです。
仕事とプライベートを空間で切り替え、来客と動線の交わらないサロン併用の家はこのような方におすすめです
・夫:40代会社員、妻:40代自営業(子ども1〜2人予定している)
・趣味:ロードバイク、ヨガ、山登り、カメラ、料理
・自宅でサロンを行なっているので、駐車場やサロン部屋など、来客時に困らないようにしたい。
・老後の事を考えて、ゆくゆくは一階で生活できるようにしたい。
全国対応になりました
建築家・デザイナー
からのコメント
【全体のコンセプト】
・効率的でスムーズな回遊動線の家。
【こだわりのポイント】
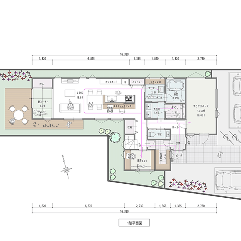
■1階
・サロンスペースは道路側に広く面していて、来客が出入りやすい配置としています。
・トイレはホールに出てすぐに配置しました。少し縦長にする事で化粧直しや手洗いも楽に行えます。
・玄関は道路から中が見えない配置です。窓があるので明るく、土間収納を通り抜けられる2WAY動線になっています。ロードバイクを書斎に運び入れる動線としても便利です。
・3畳の書斎には、バイクをオブジェのように飾ったりできるので、眺めながら仕事を行えます。
・玄関ホールから、洗面所や浴室へ直接入る事ができます。
・LDK入口には階段下を利用した収納を設けました。
・キッチン前はカウンターになっていて、日々の出来事を話しながら宿題や仕事を行えます。
・ダイニングは配膳の楽な横並びになっていて、ソファや畳コーナーが一望できます。料理をしながら家族といつでもコミュニケーションが取れます。
・キッチン横に、部屋干しやアイロン掛けができるランドリールームを設けました。洗面所・FCLに繋がっています。料理をしながら、洗う・干す・畳む・収納が楽な家事ラク動線です。
・リビングや畳コーナーからウッドデッキへ出られるので、BBQなども楽しめます。
■2階
・主寝室に3畳の広いWIC、子ども部屋に奥行きのある収納を設けました。
・廊下を極力少なく、無駄のないコンパクトなプランとする事で、建設費用を抑えました。
38坪 5LDK関連の間取り
マドリー開発の『住宅営業支援ツール』
madreeデータバンク
マドリーの人気間取り4,800プランを接客・提案に活用できる営業支援ツール
- 競合他社と差がつく、スピード提案
- トレンド間取りで、集客・受注数UP
- 建築家のアイデアを参考に、質の高い提案ができる









