[36坪 2LDK] 縦にも奥にも広がる開放感、家族のコミュニケーションがリビング階段から生まれる家の間取り
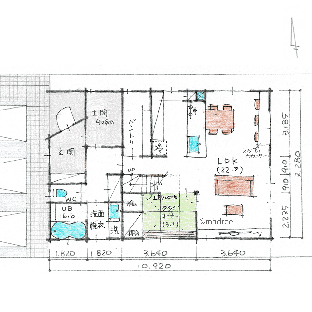
全国の建築家から間取りが集まるmadree(マドリー)で集まった36坪、2LDKの間取りです。広く感じるLDKやリビング一体の畳が特徴の注文住宅の間取りです。
縦にも奥にも広がる開放感、家族のコミュニケーションがリビング階段から生まれる家はこのような方におすすめです
・夫:20代会社員、妻:20代主婦、娘1歳(もう1人子どもを予定している)
・趣味:アクアリウム、映画鑑賞
・家族の様子を確認できるように、階段はリビングを通ってから上がるようにしたい。
・1階だけで洗濯作業を完結させたい。
全国対応になりました
| 広さ | |
|---|---|
| 階数 | |
| 土地特徴 | |
| 部屋数 | |
| 家族人数 | |
| 特徴 | |
| 担当建築家・デザイナー |
建築家・デザイナー
からのコメント
【全体のコンセプト】
・家族が集い合う家。
【こだわりのポイント】
・奥行きのある庭を確保するため、西側に駐車スペース3台分、敷地中央付近に建物、東側に庭を配置しました。
・南側には隣地敷地の延長部分があり、その南側は公園なので、南面採光も問題なく取り入れられます。
・玄関部分をゆとりある空間とするため、土間を約3帖、土間収納を3帖で計画しました。
・畳コーナーをLDKのどこからでも見える配置としました。
・階段をオープンなものにすると、よりLDKとの一体感を出す事が可能です。
・パントリーはキッチンの背面に約2.6帖取りました。
・将来的に分離可能な子ども部屋は、全体で10.5帖となります。分離後はそれぞれ4.5帖+収納となります。
36坪 2LDK関連の間取り
マドリー開発の『住宅営業支援ツール』
madreeデータバンク
マドリーの人気間取り4,800プランを接客・提案に活用できる営業支援ツール
- 競合他社と差がつく、スピード提案
- トレンド間取りで、集客・受注数UP
- 建築家のアイデアを参考に、質の高い提案ができる









