[4LDK] 脱衣室からウォークスルーでバルコニー、陽だまり2階ランドリーで毎日が楽家事の家の間取り
全国の建築家から間取りが集まるmadree(マドリー)で集まった4LDKの間取りです。2階リビングや広く感じるLDKが特徴の注文住宅の間取りです。
脱衣室からウォークスルーでバルコニー、陽だまり2階ランドリーで毎日が楽家事の家はこのような方におすすめです
・夫婦2人
・趣味:買い物
・洗面所と脱衣室を分けて、プライバシーを守れるようにしたい。
・家族の様子を確認しながら料理のできる、オープンで広いキッチンにしたい。
全国対応になりました
| 階数 | |
|---|---|
| 土地特徴 | |
| 部屋数 | |
| 家族人数 | |
| 特徴 | |
| 担当建築家・デザイナー |
建築家・デザイナー
からのコメント
【全体のコンセプト】
・使い勝手の良い家。
【こだわりのポイント】
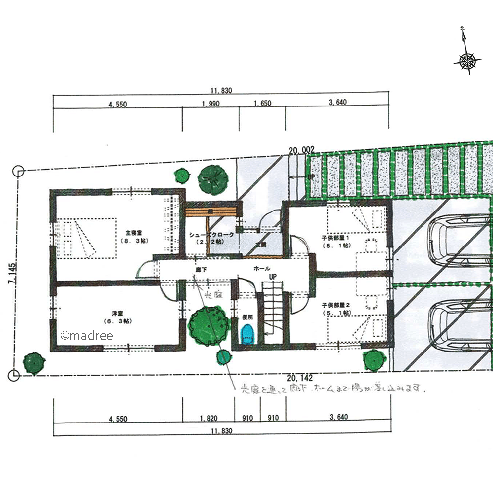
・2階にLDKを配置する計画としました。
・家事動線を考慮し、水廻りとキッチンを同階に計画しました。脱衣室~ランドリールーム~バルコニーとアクセスできるので、とても使い勝手が良くなります。
・南側に少し凹凸のある光庭を採用し、太陽の光が建物の奥まで入るよう工夫しました。暗くなりがちな廊下や玄関廻りも明るくなると思います。
4LDK関連の間取り
マドリー開発の『住宅営業支援ツール』
madreeデータバンク
マドリーの人気間取り4,800プランを接客・提案に活用できる営業支援ツール
- 競合他社と差がつく、スピード提案
- トレンド間取りで、集客・受注数UP
- 建築家のアイデアを参考に、質の高い提案ができる







