[45坪 5LDK] 家族の繋がりと個々の時間も大切にする、憧れのゴルフシュミレーターのある家の間取り
全国の建築家から間取りが集まるmadree(マドリー)で集まった45坪、5LDKの間取りです。アウトドアリビングやリビング吹抜が特徴の注文住宅の間取りです。
家族の繋がりと個々の時間も大切にする、憧れのゴルフシュミレーターのある家はこのような方におすすめです
・もうすぐ第二子誕生予定の30代共働き夫婦、娘3歳
・趣味:ゴルフ、音楽・映画鑑賞、お菓子作り
・隙間時間にゴルフ練習をしたいので、ゴルフシュミレータールームが欲しい。
・家族を感じつつ、集中できるスキップフロアのワークスペースを設けたい。
全国対応になりました
| 広さ | |
|---|---|
| 階数 | |
| 土地特徴 | |
| 部屋数 | |
| 家族人数 | |
| 特徴 | |
| 担当建築家・デザイナー |
建築家・デザイナー
からのコメント
【コンセプト】
『それぞれが広く感じる家』
【各階のポイント】
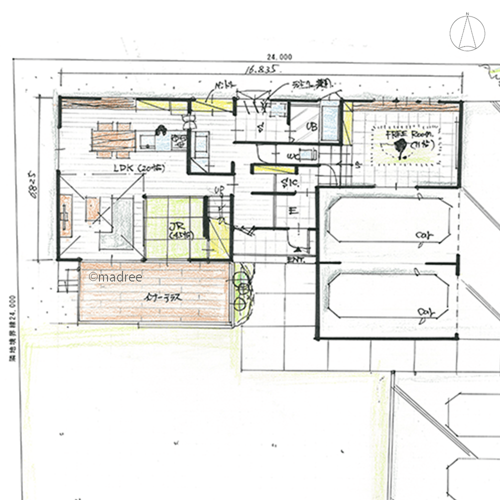
■1階
・玄関:入って正面がシューズクローゼットとなっており、扉を開けてすぐ室内が見えないようになっています。またフリールームとガレージにもアクセスできます。
・ガレージ・フリールーム:ガレージは車2台を収容できる広さです。フリールームにつながるのでゴルフバックの移動も楽に。また、フリールームはゴルフシュミレーションが出来るように幅3m奥行5mの空間を確保しました。
・LDK+和室:約20帖の大空間です。リビング上部には吹抜、和室上部がスキップフロアになっているので、さらに広く開放的に感じます。キッチンはアイランド型でTVを見ながら調理が出来るレイアウトとなっています。インナーテラスはリビングとひとつづきで、物干し場としても周囲の視線も気にせず活用できます。
・水廻り:洗面所と脱衣所を分けています。脱衣所を広く確保し、ランドリールームも兼ねています。
・スキップフロア:家族共有のフリーススペースです。室内干しや子どもの勉強部屋、書斎等様々な利用用途が考えられます。
■2階
・子ども室:朝日の入る東側に配置し、公園への眺めもよく日当たりの良い空間です。
・主寝室:約7帖のスペースとWICを設置しました。
45坪 5LDK関連の間取り
マドリー開発の『住宅営業支援ツール』
madreeデータバンク
マドリーの人気間取り4,800プランを接客・提案に活用できる営業支援ツール
- 競合他社と差がつく、スピード提案
- トレンド間取りで、集客・受注数UP
- 建築家のアイデアを参考に、質の高い提案ができる









