[53坪 2LDK] 縦にも屋外にも繋がる広々大空間、自然と家族を近くに感じる一体感LDKの家の間取り
全国の建築家から間取りが集まるmadree(マドリー)で集まった53坪、2LDKの間取りです。外とつながるLDKやアウトドアリビングが特徴の注文住宅の間取りです。
縦にも屋外にも繋がる広々大空間、自然と家族を近くに感じる一体感LDKの家はこのような方におすすめです
・20代共働き夫婦、長男0歳(子どもは2〜3人を予定している)
・趣味:ショッピング、BBQ
・夫がスーツで出勤するので、1階にスーツの収納スペースを確保したい。
・手入れの楽な庭で、家族や友人とBBQを楽しみたい。
全国対応になりました
建築家・デザイナー
からのコメント
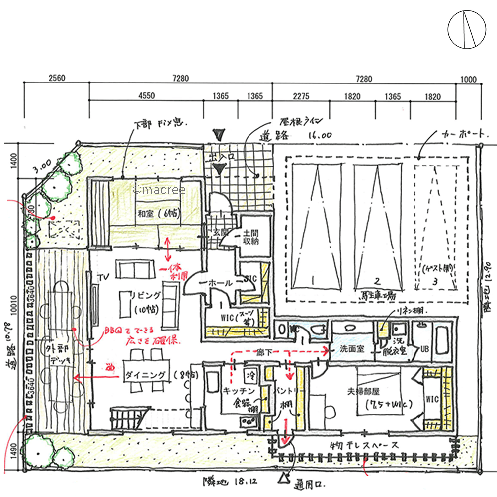
【全体のコンセプト】
・中庭とLDKの繋がる家。
【こだわりのポイント】
・外部デッキは、来客とBBQができるようスペースを確保しました。普段から楽に利用できるように、ダイニングに面して配置しています。
・リビングに吹抜を設け、開放的な空間としています。隣接して和室を配置する事で、来客の際は玄関から楽にアクセスできます。リビングの延長にあるので、普段は子どもの遊び場として活躍します。
・キッチンは大きめサイズで、水廻りの動線上にパントリーを配置しています。
・洗面室と脱衣室を分け、使い勝手を良くするとともに、プライバシーにも配慮しています。
・洗濯を外で干す際は、パントリーの勝手口から物干しスペースへ出入りできます。
・玄関に、土間収納・SIC・WICと充分な収納スペースを確保しています。
・夫婦寝室と子ども部屋は、南向きの明るい空間としています。
・子ども部屋には、成長に合わせて間取りを変えられる可動棚を設置しています。
・2階の吹抜に面して広めの作業スペースを設けました。読書や宿題をするなど、プライバシーを確保しつつ、家族の雰囲気を感じられます。
・全面道路に面した2階の北西側にサンルームを設けました。
53坪 2LDK関連の間取り
マドリー開発の『住宅営業支援ツール』
madreeデータバンク
マドリーの人気間取り4,800プランを接客・提案に活用できる営業支援ツール
- 競合他社と差がつく、スピード提案
- トレンド間取りで、集客・受注数UP
- 建築家のアイデアを参考に、質の高い提案ができる









