[39坪 3LDK] 夫婦の個々時間も尊重しつつ、家族の会話弾むアイランドキッチン中心の平屋の間取り
全国の建築家から間取りが集まるmadree(マドリー)で集まった39坪、3LDKの間取りです。リビング中心の動線や広く感じるLDKが特徴の注文住宅の間取りです。
夫婦の個々時間も尊重しつつ、家族の会話弾むアイランドキッチン中心の平屋はこのような方におすすめです
・30代共働き夫婦、息子0歳/将来的にあと1人子ども予定
・趣味:PC、美容、ファッション
・夫婦それぞれの時間も大切にしたいので、夫婦別寝室を希望。
・家族の様子を見ながら家事が捗るよう、キッチン近くに家事動線をまとめたい。
全国対応になりました
| 広さ | |
|---|---|
| 階数 | |
| 土地特徴 | |
| 部屋数 | |
| 家族人数 | |
| 特徴 | |
| 担当建築家・デザイナー |
建築家・デザイナー
からのコメント
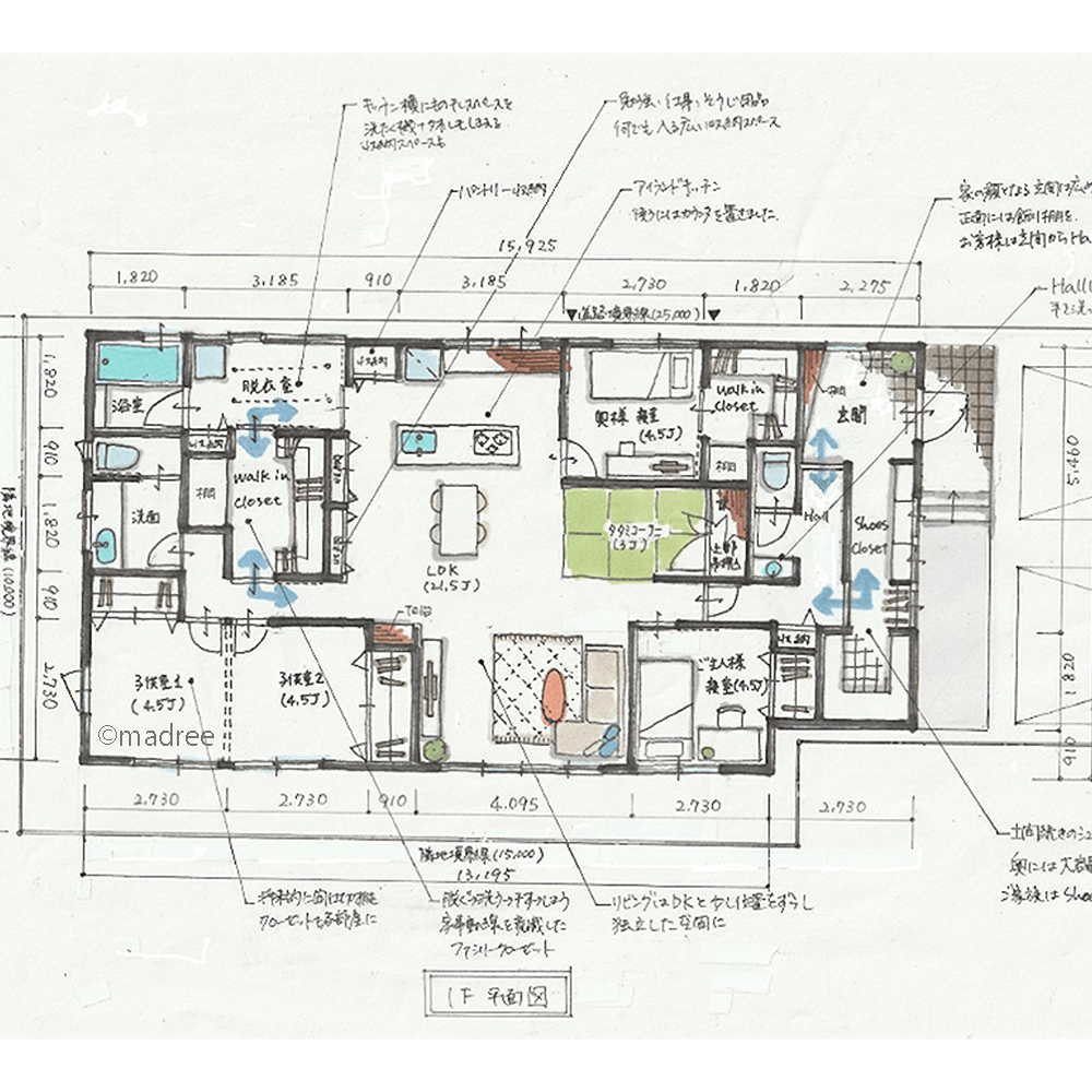
【全体のコンセプト】
家事ラク動線を意識し、個人のプライバシーに配慮しつつも家族の笑顔と安心が感じられる平屋
【こだわりポイント】
・玄関:玄関からリビングへは家族とお客様の動線を分け、いつもすっきりした玄関に。
・玄関横トイレ:ホール横に手洗いとトイレを設けました。玄関近くにトイレがあると、外出時の急なトイレにも対応出来て便利です。
・キッチン:w2550サイズのアイランドキッチン。後ろには家電など置けるカウンターと、パントリー収納。
・ダイニング:なんでもしまえる大容量の収納で、ダイニングは散らかることなくスッキリ
・リビング:独立した空間を意識し、tel等置けるカウンターも設けました
・畳コーナー:収納に吊り押入れを設け来客時の布団、季節の飾り(五月人形やお雛様等)しまえるようにし、 下部は床にして、飾りや来客時の荷物が置ける場所に、間接照明をつけても素敵です。
・脱衣室:洗濯動線を意識した配置。
・ファミリークローゼット:家の中心に配置する事通り抜け回れる動線で便利に。
・洗面:2ボウルの広さを確保。鏡の背面やカウンター下に収納を付ければ必要なものは十分入ると思います。
・寝室:ご夫婦の寝室は完全に分け、それぞれが気にせず個人の時間を過ごせるように。
・子ども部屋:今は広々。将来的に間仕切り可能な配置に。
・駐車場:車2台、屋根はカーポートにて。
39坪 3LDK関連の間取り
マドリー開発の『住宅営業支援ツール』
madreeデータバンク
マドリーの人気間取り4,800プランを接客・提案に活用できる営業支援ツール
- 競合他社と差がつく、スピード提案
- トレンド間取りで、集客・受注数UP
- 建築家のアイデアを参考に、質の高い提案ができる









