[34坪 2LDK] テラスまで一体感のある広々空間、リビング中心に回遊しながら家事動線の繋がる家の間取り
全国の建築家から間取りが集まるmadree(マドリー)で集まった34坪、2LDKの間取りです。外とつながるLDKやアウトドアリビングが特徴の注文住宅の間取りです。
テラスまで一体感のある広々空間、リビング中心に回遊しながら家事動線の繋がる家はこのような方におすすめです
・30代共働き夫婦(妻育休中、復帰予定あり)、長男1歳
・趣味:音楽ライブ、テレビ観賞、読書
・共働きなので、スムーズに家事をこなせる動線にしたい。
・仕事復帰後は外干しする事が難しくなるので、部屋干しのスペースを確保したい。
全国対応になりました
建築家・デザイナー
からのコメント
【全体のコンセプト】
・家族の集まるリビングを中心に動線の繋がる家。
・常にお互いが顔を合わせる家。
・近隣との距離を保ちつつ過ごせる家。
【こだわりのポイント】
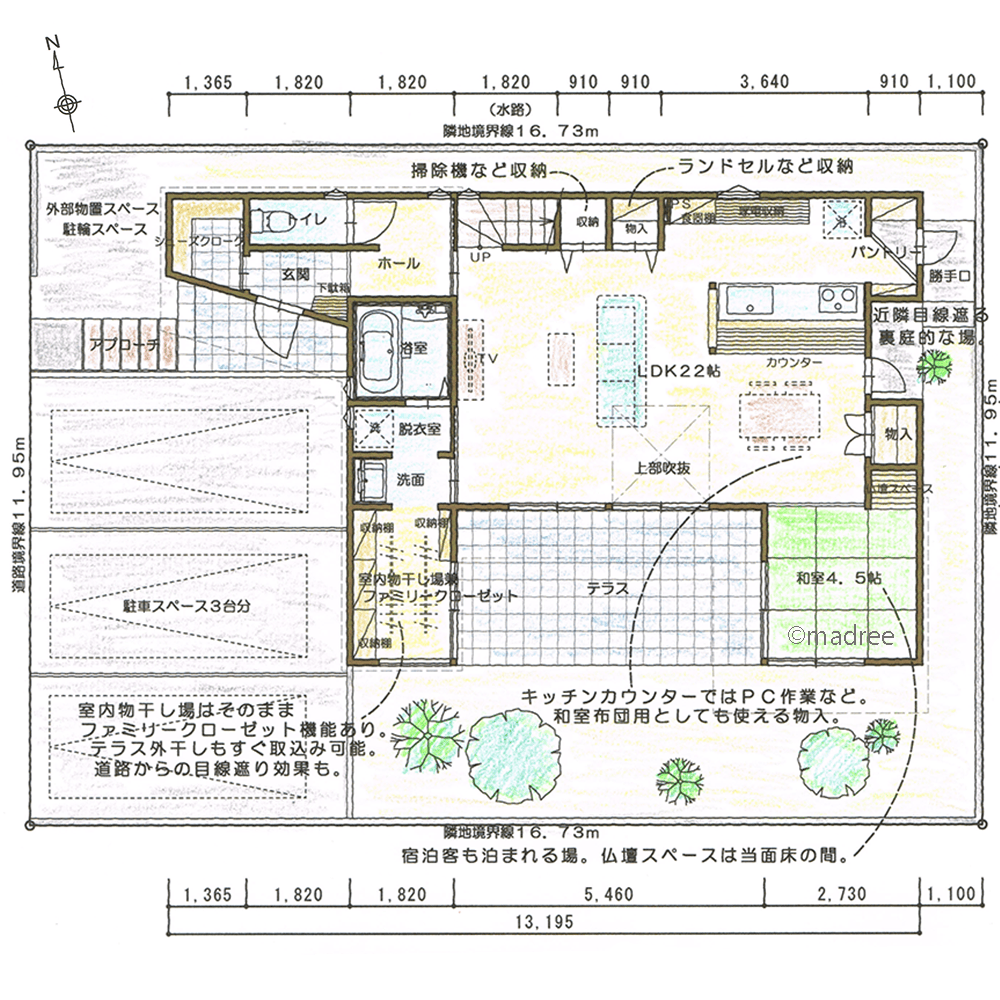
■配置計画
・駐車スペースは3台で、袋小路でもバックで車庫入れできる配列としました。
・アプローチ脇に駐輪スペースや外物置き用スペースを取ってます。
・ダイニング東側の凸凹外壁により、隣地アパートとの距離を保ちつつ生活できます。
■1階
・玄関左手に外用道具や靴の収納スペースを確保しました。
・1階のトイレはLDKと切り離し、ニオイや音漏れを気にせず利用できるようにしました。
・キッチンカウンターは机ほどの高さで、PC作業や宿題を見守る場としても利用できます。
・和室は4.5帖で、子どもの遊び場としたり、客間としても利用できます。
・洗面から、小壁で仕切られた脱衣室や物干し場へ繋がります。
・LDK全体の繋がるようにする事で、広々とした空間となっています。
・毎日行き来する階段は、北側アパートからの視線を考慮して小窓としてます。
■2階
・1階へのトイレまで距離があるため、2階にもトイレを配置しました。
・ホールに1階と繋がる吹抜を設ける事で、内部に明るさを届けます。吹抜が好みではない場合は、バルコニーに変更する事も可能です。
・3つの個室は、コンパクトなサイズにまとめました。
・小さいうちは、子ども部屋を主寝室のようにも利用できます。
34坪 2LDK関連の間取り
マドリー開発の『住宅営業支援ツール』
madreeデータバンク
マドリーの人気間取り4,800プランを接客・提案に活用できる営業支援ツール
- 競合他社と差がつく、スピード提案
- トレンド間取りで、集客・受注数UP
- 建築家のアイデアを参考に、質の高い提案ができる









