[36坪 3LDK] L字型デッキと吹抜から光を取り込む、屋内外で過ごす家族を明るいLDKから見守る家の間取り
全国の建築家から間取りが集まるmadree(マドリー)で集まった36坪、3LDKの間取りです。外とつながるLDKやアウトドアリビングが特徴の注文住宅の間取りです。
L字型デッキと吹抜から光を取り込む、屋内外で過ごす家族を明るいLDKから見守る家はこのような方におすすめです
・夫20代:会社員、妻20代:専業主婦、長男1歳、もう1人子どもが増える予定
・趣味:スポーツ、スノーボード
・朝の身支度がスムーズに行えるよう、各階に洗面台を設けたい。
・冷暖房効率を良くするため、階段に扉を付けたい。
全国対応になりました
建築家・デザイナー
からのコメント
【全体のコンセプト】
・リビングに自然と集まり、居心地よく過ごせる空間の家。
【こだわりのポイント】
■配置計画
・駐車場は道路側に並列に取り、なるべく南側に空地を確保しました。
・玄関近くに、自転車などが置ける スペースを設けました。
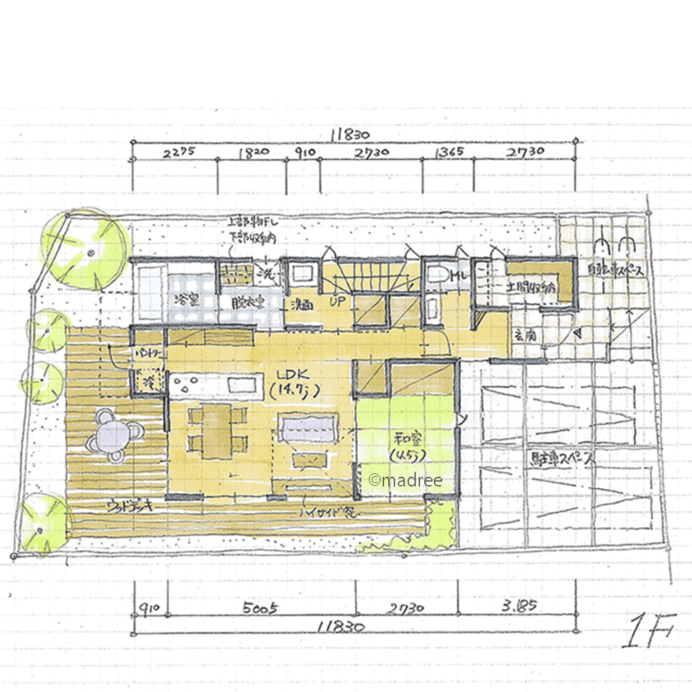
■1階
・玄関に、土間収納とコート掛けスペースを設けました。
・玄関脇に洗面台とトイレがあるので、帰宅後すぐ手洗いうがいをできます。
・LDKから、引き戸で和室と繋がるようにしています。
・階段まわり収納を多く設けました。
・キッチン奥にパントリーと勝手口を設けて、外干しの際はそこから出られるようにしました。
・LDKと和室はウッドデッキと繋がるので、外遊びの様子をキッチンから確認できます。
・LDKに光を取り込めるよう、南側に空地を取りました。
・採光対策として、リビング上部に吹抜、1階はハイサイドサッシ、2階は上部に大きな窓を設置する計画です。
■2階
・主寝室、子ども室2部屋、ストックルームを配置しました。
・トイレと洗面スペースを確保しています。
・子ども室は吹抜を挟んで配置し、室内窓からリビングの様子が分かるようにしています。
・LDKから2階の子ども達の気配を感じ取れます。
・吹抜に面した場所にフリースペースを設けました。
36坪 3LDK関連の間取り
マドリー開発の『住宅営業支援ツール』
madreeデータバンク
マドリーの人気間取り4,800プランを接客・提案に活用できる営業支援ツール
- 競合他社と差がつく、スピード提案
- トレンド間取りで、集客・受注数UP
- 建築家のアイデアを参考に、質の高い提案ができる









