[31坪 3LDK] バリアフリーで家族みんなが笑顔に、視線が通る心地よい2階リビングの家の間取り
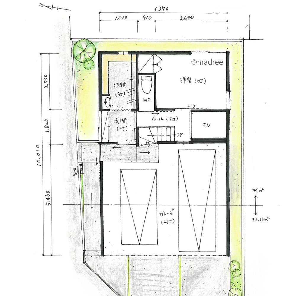
全国の建築家から間取りが集まるmadree(マドリー)で集まった31坪、3LDKの間取りです。外とつながるLDKや2階リビングが特徴の注文住宅の間取りです。
バリアフリーで家族みんなが笑顔に、視線が通る心地よい2階リビングの家はこのような方におすすめです
・30代共働き夫婦、双子の姉妹(8歳/うち1人は車椅子)
・趣味:車、ミニカー収集、家族でおでかけ
・雨の日でも車椅子でお出かけしやすいよう、インナーガレージを希望。
・周囲の視線を気にせず、明るくオープンなLDKで過ごしたい。
全国対応になりました
| 広さ | |
|---|---|
| 階数 | |
| 土地特徴 | |
| 部屋数 | |
| 特徴 | |
| 担当建築家・デザイナー |
建築家・デザイナー
からのコメント
【コンセプト】
1番のポイントは車椅子でも2階のリビングで明るく過ごせるよう配慮したことです。
【各所のポイント】
■1階
・ガレージ:全長5mほどのワンボックスが入るインナーガレージを設置しました。昇降リフトを使う場合は奥行きが多少足りないので、シャッターを開けて前にだしてからの出し入れになりますが、車は2台収まります。内部からスロープを利用して玄関まで行きます。
・玄関、玄関収納:手洗いは車椅子のまま利用できる配置としています。
・洋室:お客様用のスペースとしたり、車椅子の娘さんの部屋としたりできます。また2階の寝室と子どもスペースを姉妹で利用し、こちらの洋室を寝室に利用も可能です。
■2階
・LDK:全体的にコンパクトですが、南と西からの光は最大限とれるようにしています。階段の上り口の上部に物入れを設けています。
・子ども室兼和スペース:子ども部屋としては狭いのでロフトを設けて、物入れにしたり活用できるようにしました。ベッド代わりに利用する場合は、北側をロフトスペースにすると良いです。また、通常は畳スペースをオープンにしておくことでリビングとの繋がりを持つことができます。
・主寝室には1坪のWICを設置しています。
・水廻りは扉の開閉が大変だと思い、そのまま行き来できるようにしました。気になる場合は脱衣の入り口に暖簾等やトイレ入口は開き戸をつけることも可能です。
・ホームエレベーターは3人用で設定しています。
31坪 3LDK関連の間取り
マドリー開発の『住宅営業支援ツール』
madreeデータバンク
マドリーの人気間取り4,800プランを接客・提案に活用できる営業支援ツール
- 競合他社と差がつく、スピード提案
- トレンド間取りで、集客・受注数UP
- 建築家のアイデアを参考に、質の高い提案ができる








