[40坪 4LDK] 目線を気にせず開放感を楽しむ、光と風を取り込むハイサイドライトのある家の間取り
全国の建築家から間取りが集まるmadree(マドリー)で集まった40坪、4LDKの間取りです。LDK吹抜や広く感じるLDKが特徴の注文住宅の間取りです。
目線を気にせず開放感を楽しむ、光と風を取り込むハイサイドライトのある家はこのような方におすすめです
・40代共働き夫婦(夫はテレワーク)、娘3歳
・趣味:PC、読書、カラオケ、旅行
・家でカラオケや音楽を楽しみたいので、防音室が欲しい。
・プライバシーに配慮しつつ、明るく自然感じる家にしたい。
全国対応になりました
| 広さ | |
|---|---|
| 階数 | |
| 土地特徴 | |
| 部屋数 | |
| 家族人数 | |
| 特徴 | |
| 担当建築家・デザイナー |
建築家・デザイナー
からのコメント
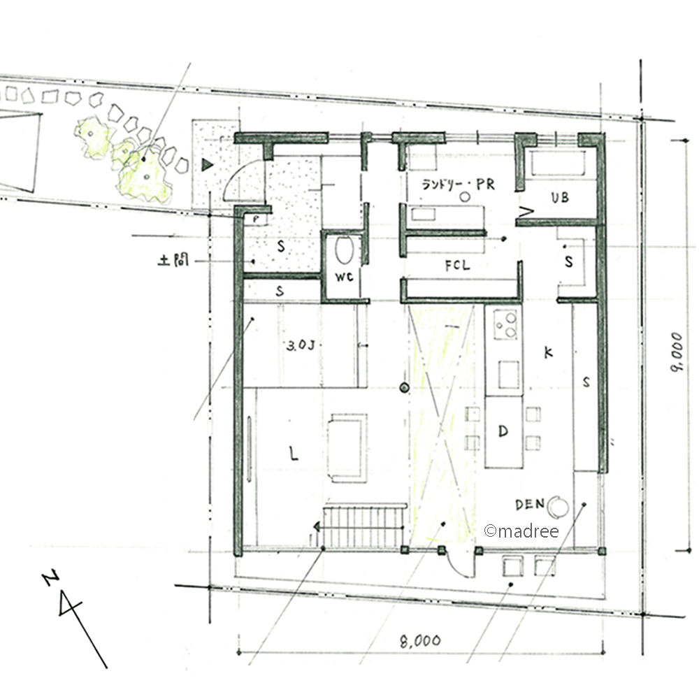
【全体コンセプト】
・シンプルな矩形プランとしコストやメンテナンス性にも配慮した。
・床面積を最大限確保しながら居住空間に余裕を持たせた。
・家の中心に吹抜を配置し、その上部のハイサイドライトからの光や風といった自然の要素を感じられるような構成とした。この吹抜は家の中心となり家族と家をつなぐ空間となる。
【各階のポイント】
・道路から玄関まではシンプルで最短のアプローチとし、踏み石や緑化などでプライバシーに配慮しつつ魅力的なアプローチとした。
・1階は家族で使う共用スペースで北側に玄関と水回り、南側にLDKを配置した。
・2階は個室とゲストルームを吹抜のまわりに配置し、暗く閉鎖的な空間にならないように配慮した。
40坪 4LDK関連の間取り
マドリー開発の『住宅営業支援ツール』
madreeデータバンク
マドリーの人気間取り4,800プランを接客・提案に活用できる営業支援ツール
- 競合他社と差がつく、スピード提案
- トレンド間取りで、集客・受注数UP
- 建築家のアイデアを参考に、質の高い提案ができる









