[32坪 2LDK] 付かず離れずの距離感が心地よい、廊下無い平屋の間取り
全国の建築家から間取りが集まるmadree(マドリー)で集まった32坪、2LDKの間取りです。外とつながるLDKや広く感じるLDKが特徴の注文住宅の間取りです。
付かず離れずの距離感が心地よい、廊下無い平屋はこのような方におすすめです
・インテリアが好きな40代夫婦、9歳娘の3人家族。将来猫を飼うかもしれない
・プライバシーにこだわらずオープンな空間が好み、縦型リビングは嫌
・ママは在宅ワーカー、PCや書き物ができるスペースを重視したい
・目立ちすぎないピアノの配置、リビングではなく廊下に置きたい
付かず離れずの距離感が心地よい、廊下無い平屋の間取りアイデア
全国対応になりました
| 広さ | |
|---|---|
| 階数 | |
| 部屋数 | |
| 家族人数 | |
| 土地特徴 | |
| 特徴 | |
| 担当建築家・デザイナー |
建築家・デザイナー
からのコメント
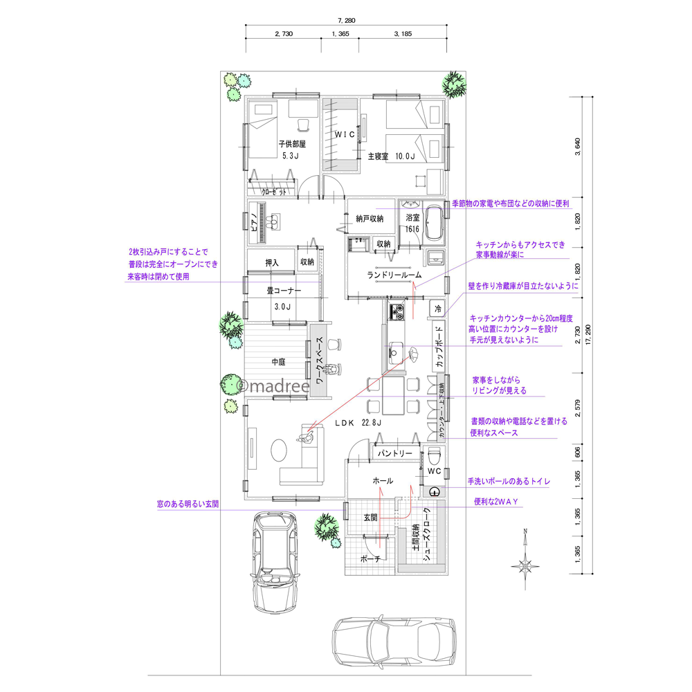
・ リビングは南から光が入り、北側には中庭を設けることで風が南から北に抜けて気持ち良い空間になるようプランしました。 キッチンはダイニングと横並びにし、冷蔵庫は目立たないよう壁を設けました。キッチン手元は作業台から20㎝程度高いカウンターを付けることで手元を見えづらくする計画です。
・ランドリールームは2WAYで、キッチンからも直接アクセスできるので、家事動線が楽です。
・ワークスペースはLDKの一角で中庭の見える位置にしました。畳コーナーは2枚引込み戸にすることで普段はオープンに使え、来客時は閉めてお泊り頂けます。布団などを収納する押入れもあります。
・ その他、2WAYのシューズクロークや書類などを収納できるスペース、納戸収納などを設けました。
32坪 2LDK関連の間取り
マドリー開発の『住宅営業支援ツール』
madreeデータバンク
マドリーの人気間取り4,800プランを接客・提案に活用できる営業支援ツール
- 競合他社と差がつく、スピード提案
- トレンド間取りで、集客・受注数UP
- 建築家のアイデアを参考に、質の高い提案ができる









