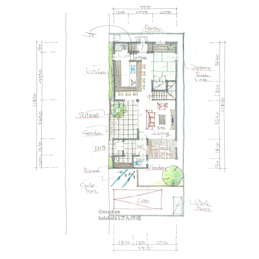
[30坪 4LDK] 中庭と吹抜が明るく広がる密集地の家の間取り
全国の建築家から間取りが集まるmadree(マドリー)で集まった30坪、4LDKの間取りです。外とつながるLDKやアウトドアリビングが特徴の注文住宅の間取りです。
中庭と吹抜が明るく広がる密集地の家はこのような方におすすめです
・共働き子育て4人家族
・少し独立したリビングで寛ぎたい
・ある程度のプライバシーには配慮したいが閉じ過ぎないようにしたい
・南側隣地に3階建住宅がある為、採光と景色に配慮して欲しい
中庭と吹抜が明るく広がる密集地の家の間取りアイデア
全国対応になりました
| 広さ | |
|---|---|
| 階数 | |
| 部屋数 | |
| 家族人数 | |
| 土地特徴 | |
| 特徴 | |
| 担当建築家・デザイナー |
建築家・デザイナー
からのコメント
住宅密集地の為、立地や人通り等考慮し、内側に開く家のご提案です。
1F:一体型のLDKでありながら来客時にはL・DK・和室を簡易的に仕切る事が可能です。さらにキッチンはL型カウンターレイアウトで高さを一段下げ、和室は小上り風に一段上げて造ることにより視線の均一化を計り空間により一層の一体感を持たせます。リビングは南側と西側の大開口を設け、それぞれ違った景色が楽しめるようにしました。
2F:吹抜けとバルコニーにはスチール手摺を設けて開放感を演出、視線の気になるバルコニーの手摺は少し高めに設定し、落ち着いて生活が出来る個室としました。
30坪 4LDK関連の間取り
マドリー開発の『住宅営業支援ツール』
madreeデータバンク
マドリーの人気間取り4,800プランを接客・提案に活用できる営業支援ツール
- 競合他社と差がつく、スピード提案
- トレンド間取りで、集客・受注数UP
- 建築家のアイデアを参考に、質の高い提案ができる









