[22坪 3LDK] 水回りをまとめた家事ラク動線、吹抜けと天窓で光を取り込む狭小三階建ての家の間取り
全国の建築家から間取りが集まるmadree(マドリー)で集まった22坪、3LDKの間取りです。オープンキッチンや子ども見守れるキッチンが特徴の注文住宅の間取りです。
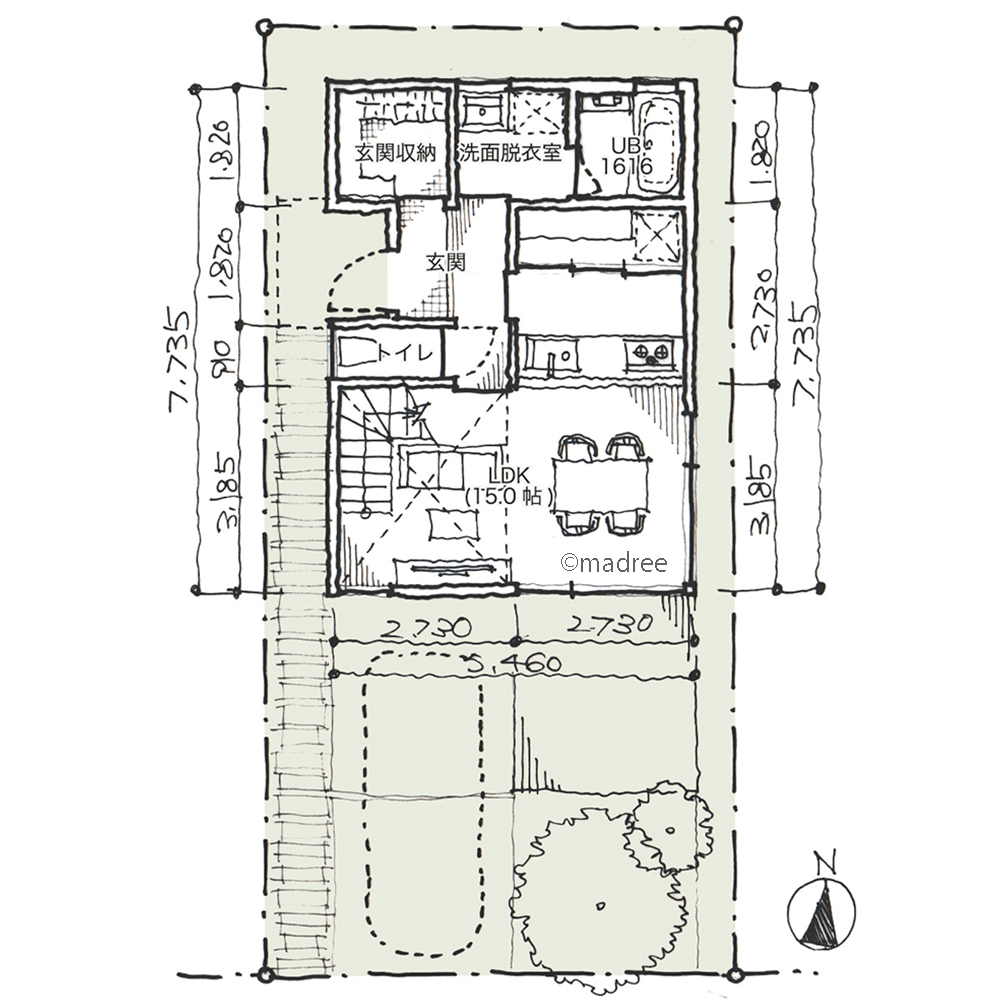
水回りをまとめた家事ラク動線、吹抜けと天窓で光を取り込む狭小三階建ての家はこのような方におすすめです
・共働き夫婦、 男の子2人(小学生と中学生)の4人家族
・趣味:夫(車の整備)、妻(海外ドラマ)、子ども(バスケと野球)
・週末は子どものスポーツの付き添い、夜が家族揃ってくつろぐ時間となっている。
全国対応になりました
| 階数 | |
|---|---|
| 部屋数 | |
| 家族人数 | |
| 土地特徴 | |
| 特徴 | |
| 広さ | |
| 担当建築家・デザイナー |
建築家・デザイナー
からのコメント
【全体のコンセプト】
建物を西側に寄せガレージの入口を確保 ・使いやすくシンプルな形状でコストも抑えられる構造
【こだわりのポイント】
■1階
・車を楽しめる空間を確保したガレージ
・玄関とガレージの往来が容易
・収納を隣地側に大きく配置し音に配慮
■2階
・空間に無理が無いように水廻りとリビングを配置
・物干しエリアから先はカーテンにて区切り来客時のプライバシーを確保
・一年中安定した北側の明かりを取込める吹抜を設置
■3階
・寝室と子供部屋を配置
・寝室から吹抜を通してリビングの気配を感じられる
・廊下の一部にPCスペースを設置
■ロフト階
・寝室クローゼットを通ってロフト収納へ
・天井高は低いが7帖の広さを確保
22坪 3LDK関連の間取り
マドリー開発の『住宅営業支援ツール』
madreeデータバンク
マドリーの人気間取り4,800プランを接客・提案に活用できる営業支援ツール
- 競合他社と差がつく、スピード提案
- トレンド間取りで、集客・受注数UP
- 建築家のアイデアを参考に、質の高い提案ができる








