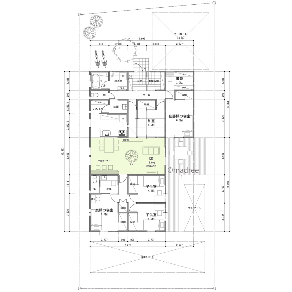
[39坪 6LDK] 中心のLDKで家族集う、異なる生活時間に配慮した平屋の間取り
全国の建築家から間取りが集まるmadree(マドリー)で集まった39坪、6LDKの間取りです。外とつながるLDKやアウトドアリビングが特徴の注文住宅の間取りです。
中心のLDKで家族集う、異なる生活時間に配慮した平屋はこのような方におすすめです
・夫は日勤夜勤の交代制、3人家族
・子どもが水遊び好き。目の届くところでプールをやりたい
・パントリーはちょっとした妻の部屋にしたい
・クリスマスには大きなツリーを出しワクワクしたい
中心のLDKで家族集う、異なる生活時間に配慮した平屋の間取りアイデア
全国対応になりました
| 広さ | |
|---|---|
| 部屋数 | |
| 家族人数 | |
| 土地特徴 | |
| 特徴 | |
| 階数 | |
| 担当建築家・デザイナー |
建築家・デザイナー
からのコメント
【全体のコンセプト】
家族が集まるリビング・ダイニングを住宅の中心としたプラン。
【こだわったポイント】
・中央に位置するリビング・ダイニング、及び和室も含め、学習スペースや食事する場所、テレビを観ながら団らんする場所等、家族が集う空間を意識し、様々な居場所がある計画としました。
・生活時間の異なりを配慮し、北側に水廻りと旦那様の寝室を、南側にお子様と奥様の寝室を配置しました。
・奥様の部屋の北側には、洗面を配置しました。鏡台を寝室に置かれるにあたって、洗面が近いと便利と考えました。
・北側の旦那様の部屋のなかにある書斎は、家族みんなが使用できる場合も踏まえ計画しました。
39坪 6LDK関連の間取り
マドリー開発の『住宅営業支援ツール』
madreeデータバンク
マドリーの人気間取り4,800プランを接客・提案に活用できる営業支援ツール
- 競合他社と差がつく、スピード提案
- トレンド間取りで、集客・受注数UP
- 建築家のアイデアを参考に、質の高い提案ができる









