[38坪 3LDK] ゾーン分けした中庭からの光が心地よい、自宅兼店舗の平屋の間取り
全国の建築家から間取りが集まるmadree(マドリー)で集まった38坪、3LDKの間取りです。外とつながるLDKやアウトドアリビングが特徴の注文住宅の間取りです。
ゾーン分けした中庭からの光が心地よい、自宅兼店舗の平屋はこのような方におすすめです
・自宅で治療院を開業。40代夫婦、2人の子育て中
・休日、夫は趣味の空手へ。そのため妻はほぼワンオペ育児
・プライベート空間を確保しつつ、自宅と治療院どちらも自然光が入るようにしたい
・子ども同士で使用するものは、どちらもつかえるよう共有収納としたい
ゾーン分けした中庭からの光が心地よい、自宅兼店舗の平屋の間取りアイデア
全国対応になりました
| 広さ | |
|---|---|
| 階数 | |
| 部屋数 | |
| 家族人数 | |
| 土地特徴 | |
| 特徴 | |
| 担当建築家・デザイナー |
建築家・デザイナー
からのコメント
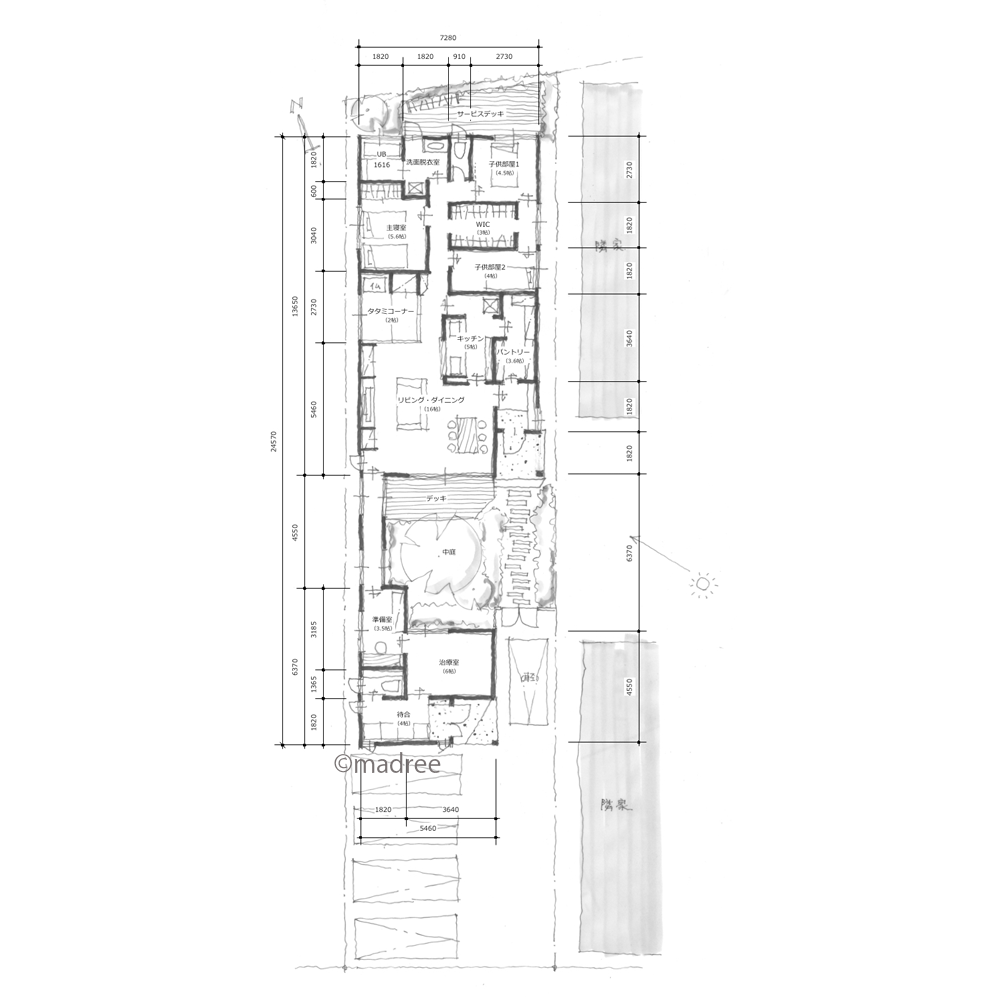
【全体のコンセプト】
中庭を介して、南側に治療院、北側に住居を配置。 東側の隣家建物が切れる部分に中庭を配置することで、住居にも一日中日が入るように配置しました。 治療院とは渡り廊下でつなぎ、全体のボリュームから、平屋での構成としています。 (2階建てにすると空地が大きすぎ、駐車場にあてると治療院が前面道路より引き込み過ぎとなり、 視認性が悪くなります)
【各所のポイント】
○治療院から中庭眺める
治療院と住居は中庭を挟んで配置。治療室からも中庭を眺められるように設えています。また、準備室から渡り廊下を渡って住居にそのままアプローチできるようにしています。
○LDKとタタミコーナーで約18帖
リビング・ダイニングとタタミコーナーで合わせて18帖を一体的に使えます。
○キッチン〜パントリー〜玄関へのつながり
パントリーを玄関から直接アプローチできるように配置。キッチンへも直接行き来できるので、買い物やゴミ出しなどにも便利です。
○家族全員で使うウォークインクローゼットを中心に
子ども部屋に挟まれるように、ウォークインクローゼット(WIC)を配置。家族の衣服は全てここに収納できます。
○洗面脱衣室から洗濯物を干すサービスデッキへ
洗面脱衣室から洗濯物を干すためのサービスデッキへ直接出入りできます。洗濯もを取り込んだら、直接ウォークインクローゼットへ収納することで、洗濯物動線をできるだけ短くしています。
38坪 3LDK関連の間取り
マドリー開発の『住宅営業支援ツール』
madreeデータバンク
マドリーの人気間取り4,800プランを接客・提案に活用できる営業支援ツール
- 競合他社と差がつく、スピード提案
- トレンド間取りで、集客・受注数UP
- 建築家のアイデアを参考に、質の高い提案ができる









