[30坪 2LDK] テラス設けて自然採光した縦長土地の平屋の間取り
全国の建築家から間取りが集まるmadree(マドリー)で集まった30坪、2LDKの間取りです。外とつながるLDKやリビング中心の動線が特徴の注文住宅の間取りです。
テラス設けて自然採光した縦長土地の平屋はこのような方におすすめです
・休日は家で過ごすことが多い40代夫婦
・将来を考え車椅子対応にしたい
・ある程度のプライバシーには配慮したいが閉じ過ぎないようにしたい
・固定階段で屋根裏部屋が欲しい
テラス設けて自然採光した縦長土地の平屋の間取りアイデア
全国対応になりました
| 広さ | |
|---|---|
| 階数 | |
| 部屋数 | |
| 土地特徴 | |
| 特徴 | |
| 担当建築家・デザイナー |
建築家・デザイナー
からのコメント
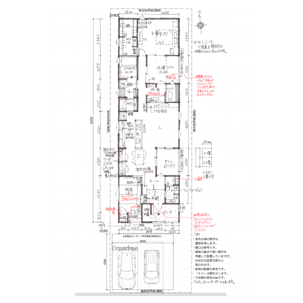
南北に縦長の敷地のため居室の自然採光用に中庭を2か所配置しました。
一つは寝室への採光と洗濯干しのプライベートテラス、もう一つはリビング・ダイニングへの採光用のテラスです。
洗濯干しのプライベートテラスは軒を深く出して雨が降ってきても洗濯物を干しっぱなしにしても濡れないようにしました。またリビングに面していない為、来客時の視線も気にせずほしておけるかと思います。
一方リビングダイニングに面したテラスは、LDKが広く明るい環境となるように軒無しを想定しています。
LDKは22畳ですが、掃き出し窓越しに中庭に面しているので数字より開放的に広がりを感じられるのではないかと思います。
簡単に食事ができるカウンターはキッチン食器棚の並びに設けました。パソコンスペースや家事スペースとしても活用いただけるスペースと兼用となっています。
主寝室に固定の階段で上がれる小屋裏収納を計画しました。WICの上部4畳分を想定しています
(WICの一部は階段下となるため低くなる部分があります)。
もう一つの個室は5畳。来客時の宿泊用にしたので3人が余裕をもって布団を敷いて寝れる形状としています。
また個室へは玄関から直接出入りすることも可能です。
将来の車椅子での生活も懸念されているようでしたので、玄関・トイレ・洗面・脱衣など動きが生じる部分は通常より少し広めにしています。
屋根形状は北側寝室WIC上部に小屋裏収納を設けるため、西から東に流れる片流れの屋根を想定しています。
※敷地の情報が概略でしたので、建物の間口も余裕を見て幅を少々狭めにしています。
※駐車スペースに屋根をご希望とのことでしたので後付けの2台分のカーポートを設置できるように計画しました。
(図面注)
・家具の配置は参考です。
・図上でsh(可動棚)と重なってる窓表現については棚の裏に窓があることを示し、主に採光や通風上の配慮です。
30坪 2LDK関連の間取り
マドリー開発の『住宅営業支援ツール』
madreeデータバンク
マドリーの人気間取り4,800プランを接客・提案に活用できる営業支援ツール
- 競合他社と差がつく、スピード提案
- トレンド間取りで、集客・受注数UP
- 建築家のアイデアを参考に、質の高い提案ができる








