[33坪 5LDK] プライバシー性高い中庭で、自由気ままに家族時間を過ごせる平屋の間取り
全国の建築家から間取りが集まるmadree(マドリー)で集まった33坪、5LDKの間取りです。外とつながるLDKや広く感じるLDKが特徴の注文住宅の間取りです。
プライバシー性高い中庭で、自由気ままに家族時間を過ごせる平屋はこのような方におすすめです
・友人とライブ開催するほど音楽好きの40代夫婦と5歳
・中庭のある家に憧れ、緑豊かな落ち着く雰囲気が好き
・時々両親が泊まりに来るので、くつろいでもらいたい
・夫がギターの練習をするので、集中できる環境を作ってあげたい
全国対応になりました
| 広さ | |
|---|---|
| 階数 | |
| 部屋数 | |
| 家族人数 | |
| 土地特徴 | |
| 特徴 | |
| 担当建築家・デザイナー |
建築家・デザイナー
からのコメント
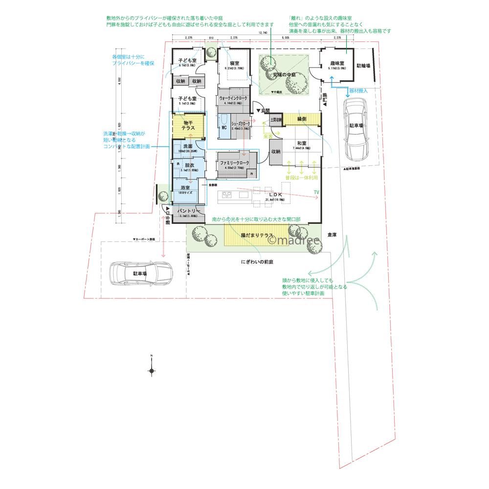
【コンセプト】
プライバシーに重きを置いた計画と提案します。 プライバシーには2種類あります。「家族同士のプライバシー」「隣地からのプライバシー」です。そのどちらに対しても重要視した計画となっています。
【離れとしての趣味室】
趣味室では旦那様がギターの練習用に設けました。家族がくつろいでいる空間と干渉しないように、離れのような設えとしました。 完全に切り離された空間となりますので、お互いに気を使うことなく過ごす事ができます。 しかしながら、中庭を介して視覚的には連続しており、なんとなく気配は感じられるような関係性を目指しました。 また、車からの搬出入にも配慮し、車からの動線が短くなるように計画しています。
【3つのテラスと庭】
今回提案には、2つの性格の違う庭があります。
1つは南に大きく開けた「にぎわいの前庭」「陽だまりテラス」です。 にぎわいの前庭は南に面した非常に明るい性格で、LDKに面しており、多くの光と風を取り込みます。 LDKと前庭は陽だまりテラスによって連続しており、リビングの連続した空間として、またバーベキューテラス等として利用できます。
二つ目は玄関側にある「安穏の中庭」です。 囲われた空間となっていて、プライバシー性の高い庭となっているため、落ち着いた雰囲気を持っています。 和室とは縁側でつながっており、涼やかな風が流れる空間となります。 こうした庭を2つ設けることで光の入口や風の通道を確保し、過ごしやすい内部空間を構成する事が出来ます。
33坪 5LDK関連の間取り
マドリー開発の『住宅営業支援ツール』
madreeデータバンク
マドリーの人気間取り4,800プランを接客・提案に活用できる営業支援ツール
- 競合他社と差がつく、スピード提案
- トレンド間取りで、集客・受注数UP
- 建築家のアイデアを参考に、質の高い提案ができる









