[22坪 3LDK] 広く開放的な2階LDKで、玄関とビルトインガレージ繋がる3階建狭小住宅の間取り
全国の建築家から間取りが集まるmadree(マドリー)で集まった22坪、3LDKの間取りです。2階リビングや広く感じるLDKが特徴の注文住宅の間取りです。
広く開放的な2階LDKで、玄関とビルトインガレージ繋がる3階建狭小住宅はこのような方におすすめです
・夫、妻(育休中)、子
・趣味はスポーツ。家事は夫婦分担制
・道路に面しているため、玄関から家の中が見えない様にしたい
・洗濯物が濡れない様に、軒の長いベランダにしたい
全国対応になりました
| 広さ | |
|---|---|
| 階数 | |
| 部屋数 | |
| 家族人数 | |
| 土地特徴 | |
| 特徴 | |
| 担当建築家・デザイナー |
建築家・デザイナー
からのコメント
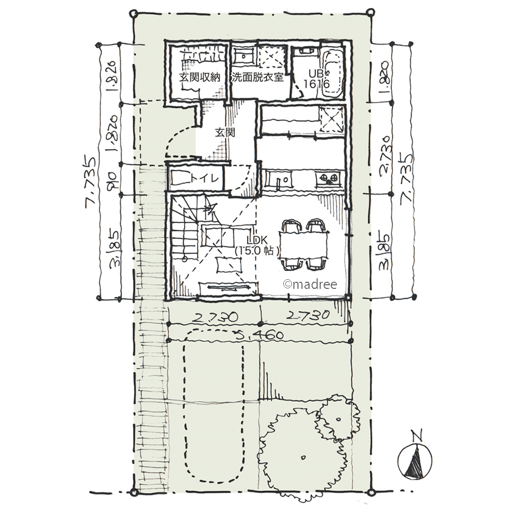
【全体的なコンセプト】
将来的に売れる(賃貸に出せる)、一般的な間取りの提案しました。狭小住宅なので、できる限り面積を有効活用できる様に計画しました。
【1階】
・駐車スペースでかなりの面積をとるため、洗面脱衣室と浴室を1階に設けました。その横に、家事室としても使用可能な子ども室を計画しました。
【2階】
・大きなLDKを設け、広々とした空間としています。
・大型のキッチンを設定したので、将来賃貸に出す時のセールスポイントにもなります。
【3階】
・居室2部屋と便所を設け、効率的に面積を使っています。
22坪 3LDK関連の間取り
マドリー開発の『住宅営業支援ツール』
madreeデータバンク
マドリーの人気間取り4,800プランを接客・提案に活用できる営業支援ツール
- 競合他社と差がつく、スピード提案
- トレンド間取りで、集客・受注数UP
- 建築家のアイデアを参考に、質の高い提案ができる









