- マドリーHOME
- 間取り一覧
作者不明の間取り一覧
家族や自分の”好き”を叶える注文住宅の間取りが見つかる!暮らしの要望をもとに全国の建築家が作成した作者不明の間取りを10件公開しています。毎日更新中!
-
ALTA
-
- 39坪
- 2LDK
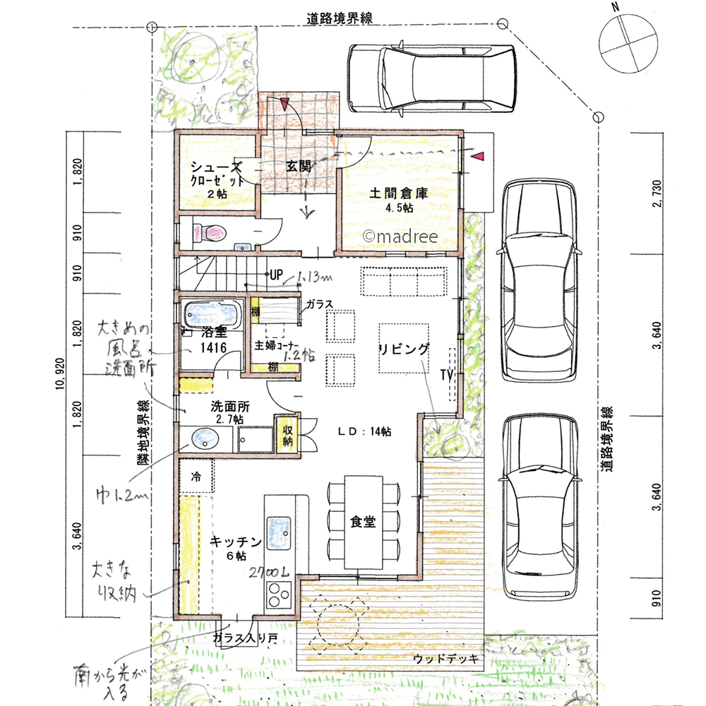
隠れるキッチンで空間をスッキリ保つ、フレキシブルな間仕切り扉で生活感も隠せる家
-
- 58坪
- パントリー
持ち物の行き場に困らない充実収納、玄関のみ共有した距離感良き二世帯住宅
-
マドリーの人気間取りを接客・提案に活用できる営業支援ツール
-
- 35坪
- 3LDK
土間の趣味ディスプレイを臨む、家族がぐっと近づく温もりリビングの家
-
- 48坪
- 5LDK
階段中心に暮らし整う、回遊スムーズ家事動線で家族時間の増える家
-
- 34坪
- 3LDK
広い土間収納はまるで趣味部屋、独立デッキでアウトドア充実の二世帯住宅
-
- 49坪
- 5LDK
デッキと吹抜で縦横に広がる開放感、狭い間口を活かした2階LDKの家
-
- 35坪
- 5LDK
高壁の庭で安心して遊べる、キッチン中心家事動線のL字型コートハウス
-
- 25坪
- 4LDK
狭小地を広々使える工夫を詰めた、家族と木の温もり感じる家
マドリー開発の『住宅営業支援ツール』
madreeデータバンク
マドリーの人気間取り4,800プランを接客・提案に活用できる営業支援ツール
- 競合他社と差がつく、スピード提案
- トレンド間取りで、集客・受注数UP
- 建築家のアイデアを参考に、質の高い提案ができる
