studio 1209の間取り一覧
家族や自分の”好き”を叶える注文住宅の間取りが見つかる!暮らしの要望をもとに全国の建築家が作成したstudio 1209の間取りを91件公開しています。毎日更新中!
-
- 39坪~42坪
- 2LDK
お庭を中心にした配置で家の中と外の空間を一緒に取り込み家族団らんできる平屋
-
- 36坪
- 5LDK
快適さをコンパクトに詰め込んだ住み心地良い間取り
-
- 45坪~49坪
- 4LDK
来客対応OK!おもてなしも暮らしも使い勝手の良い明るく開放的な家
-
- 39坪~42坪
- 5LDK
洗う・干す・しまうが快適な洗濯ラク動線と開放感があって落ち着けるリビングで寛げる家
-
- 36坪~39坪
- 3LDK
暮らしやすい家事動線と来客対応充実の明るく開放感あるほぼ平屋
-
- 33坪
- 2LDK
来客いつでもウェルカム、生活感をキッチン裏にまとめた縦長の家
-
- 42坪
- 3LDK
中二階も活かしてイベント別に過ごす、平屋を感じさせる広々LDKのある家
-
- 36坪
- 2LDK
自然を近くに感じながら過ごせる、家事も生活も繋ぐL字型デッキのある家
-
- 37坪
- 4LDK
片付く隠し収納と大きな吹抜で、ゲストを気持ちよく迎える家
-
- 42坪
- 3LDK
アウトドアテラスでホッと一息、屋外空間を身近に楽しむ平屋風暮らしの家
-
- 46坪
- 畳コーナー
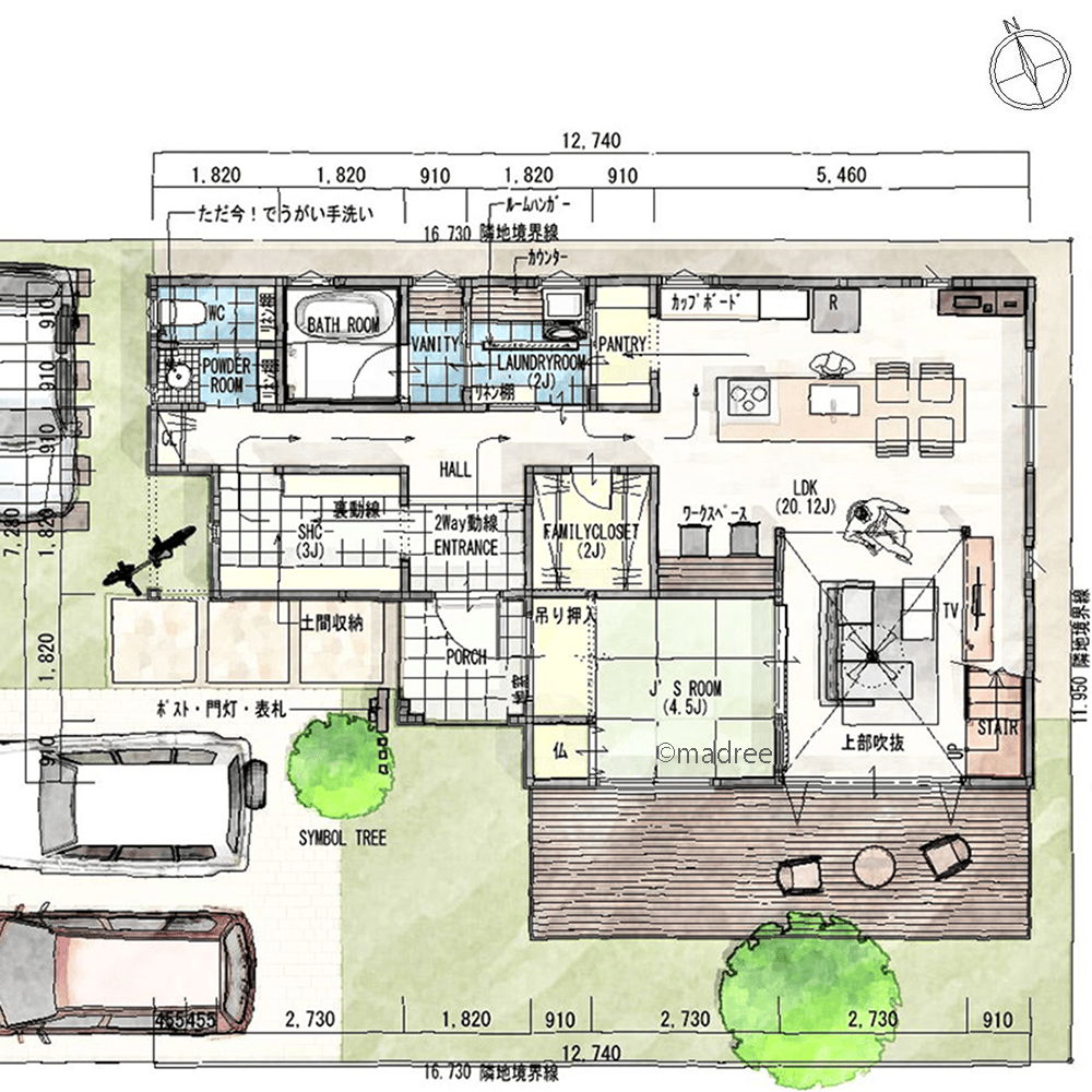
ほどよい距離感の個室配置、大空間LDKで開放感あふれる二世帯住宅
-
- 50坪
- 5LDK
アウトドアリビングで家族の絆深まる、生活音に配慮した心地よい二帯住宅
-
- 34坪
- 1LDK
長く過ごすキッチンだからこそ快適に、大きな窓から庭の景色と四季を楽しむ家
-
- 34坪
- 3LDK
玄関からのスムーズ動線で家事負担を軽減、開放的なLDKで過ごす家族時間の増える家
-
- 27坪〜30坪
- 3LDK
コンパクトながら明るく広がり感じる、すっきり裏動線で子育てしやすい家
-
- 40坪
- 2LDK
庭と室内を自由に行き来できる、ウッドデッキを囲むようにL字型のLDKと繋がる家
-
- 36坪
- 2LDK
アウトドアリビングで過ごす開放感、LDKと主寝室で囲むピロティ風デッキのある家
-
- 35坪
- 3LDK
共働き夫婦に嬉しい家事動線、LDKと繋がるフレキシブルなサンルームのある家
-
- 53坪
- 3LDK
ダイニングの余白をゲージスペースに活用、家の中でも軽く走れる回遊動線のある家
-
- 25坪
- 2LDK
キッチンカウンターで家族の会話彩る、バルコニーを囲んだ南向き2階LDKの家
-
- 36坪
- 2LDK
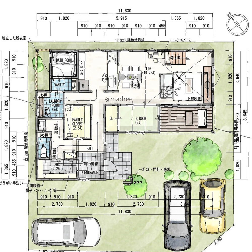
帰宅後はすぐに手洗いうがい!家族も来客も利用しやすい家事楽な水廻り動線の家
-
- 42坪
- 5LDK
家族も猫も自由度高く過ごす、距離感を大切にした二世帯住宅
-
- 39坪
- 2LDK
L字型LDKが囲むプライベードデッキで、眺望を活かしたお花見やBBQを楽しめる家
-
- 36坪
- 2LDK
老後を愛犬と快適に過ごす、動物アレルギーでも安心なペット専用部屋のある平屋
マドリー開発の『住宅営業支援ツール』
madreeデータバンク
マドリーの人気間取り4,800プランを接客・提案に活用できる営業支援ツール
- 競合他社と差がつく、スピード提案
- トレンド間取りで、集客・受注数UP
- 建築家のアイデアを参考に、質の高い提案ができる
