JYNの間取り一覧
家族や自分の”好き”を叶える注文住宅の間取りが見つかる!暮らしの要望をもとに全国の建築家が作成したJYNの間取りを112件公開しています。毎日更新中!
-
- 27坪〜30坪
- 2LDK
暮らしやすさと趣味を共存、ぬくもりに溢れた四季を感じる平屋
-
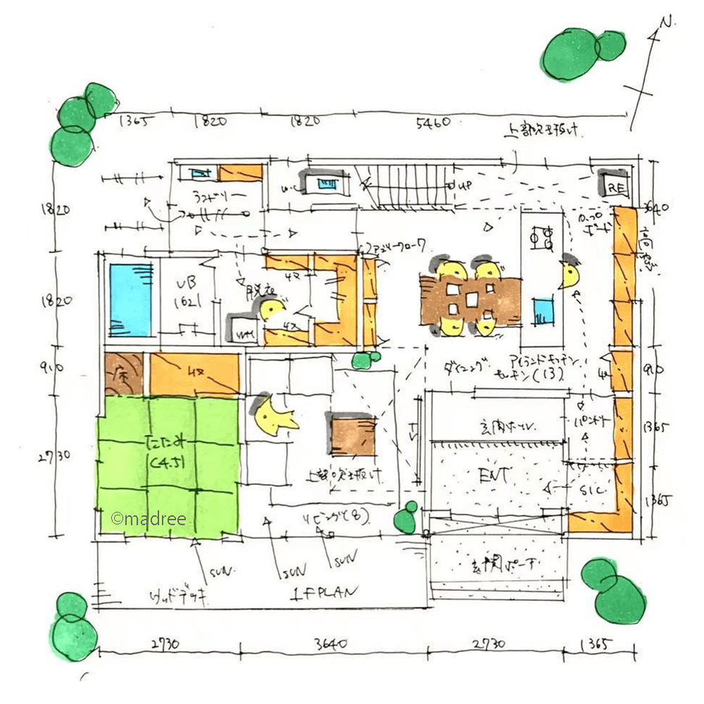
- 59坪
- 5LDK
ワイドなデッキで外空間をたっぷり取り込む、家事1階完結かつ片付く帰宅動線の家
-
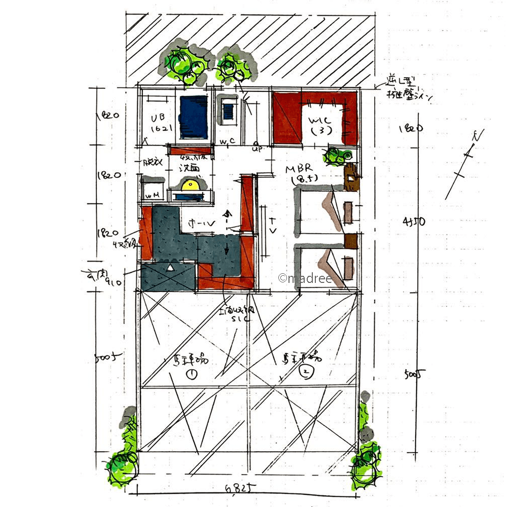
- 50坪以上
- 納戸
ご近所のように寄り添える距離感で暮らす、各階に憩いの場がある完全二世帯住宅
-
- 42坪
- 5LDK
気兼ねせず過ごす祖母との同居生活、家族それぞれにパーソナルスペースのある二世帯住宅
-
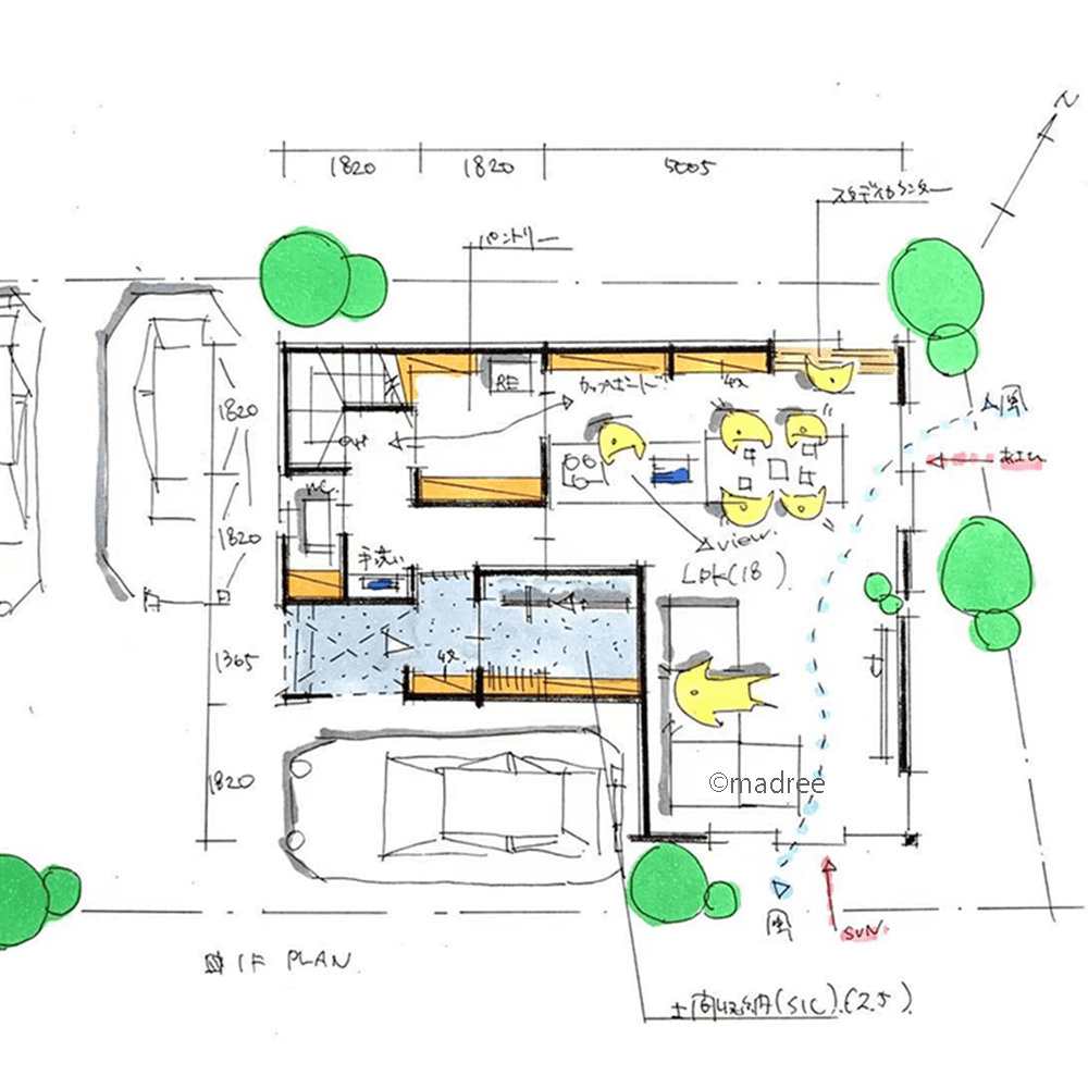
- 32坪
- 4LDK
朝日で目覚めて気持ちの良い朝食を、光と風がよく通る回遊動線の家
-
- 30坪
- 4LDK
共働き夫婦の朝支度がサクサクすすむ、回遊動線と水廻り配置を工夫した家
-
- 39坪
- 4LDK
回遊家事で自分時間を生み出す、程よい距離で互いを見守る二世帯住宅
-
- 42坪
- 6LDK
視線カットでプライベート感を創り出す、家族のつながりを感じる回遊LDKの家
-
- 32坪
- 3LDK
各所に使いやすい充実収納でキレイをキープ、光と風が通り抜ける2階リビングの家
-
- 27坪〜30坪
- 2LDK
余計な壁のないLDKだけの1階空間、気持ち良く風の抜けるL字の家族スペースがある家
-
- 26坪
- 3LDK
爽やかな朝日でスッキリ目覚める、キッチン中心の回遊動線で家事シェアしやすい家
-
- 39坪
- 4LDK
3WAY玄関で各所にサクサク動ける、身も心もスッキリ整う片付け上手の帰宅動線の家
-
- 35坪
- 4LDK
少し離れた落ち着くリビングで、のんびり家時間を満喫できる空間変化のある家
-
- 39坪
- 3LDK
すべての空間がワンフロアに集約、効率良い生活動線でゆったりと過ごせる平屋
-
- 45坪
- 3LDK
家族の集まるLDKが家の中心、繋がるタイルテラスで広がりを感じる注文住宅
-
- 39坪
- 3LDK
少し篭れる家族の癒し空間、縦にも屋外にも視界の広がるピットリビングのある家
-
- 41坪
- 3LDK
和を感じる土間続きの玄関から、家族だけのプライベート動線でLDKへ繋がる平屋
-
- 33坪
- 4LDK
陽だまりLDKと繋がる庭のようなバルコニー、プライベート感のある2階でゆったり暮らす家
-
- 26坪
- 2LDK
朝日をたっぷり浴びて爽やかな目覚め、自然と人が集まる緑と光が心地良い家
-
- 27坪〜30坪
- 4LDK
家事をしながら家族や庭を望む、動線良く空間を活用して6人家族が快適に暮らす家
-
- 41坪
- 4LDK
玄関から一直線の勝手口でラクにゴミ出し、生活感を隠せる来客動線のある家
-
- 31坪
- 3LDK
コンパクトな生活動線で将来も安心、リゾートのような開放感でデッキと繋がる平屋
-
- 26坪
- 3LDK
落ちつく床座リビングで温かな家族団らん、趣味も充実する広い土間収納のある家
-
- 35坪
- 3LDK
家中に光届ける大開口窓と、家族つながるステップフロアでわくわく感満載の家
マドリー開発の『住宅営業支援ツール』
madreeデータバンク
マドリーの人気間取り4,800プランを接客・提案に活用できる営業支援ツール
- 競合他社と差がつく、スピード提案
- トレンド間取りで、集客・受注数UP
- 建築家のアイデアを参考に、質の高い提案ができる
