24坪~27坪の間取り一覧
家族や自分の”好き”を叶える注文住宅の間取りが見つかる!暮らしの要望をもとに全国の建築家が作成した24坪~27坪の間取りを82件公開しています。毎日更新中!
-
- 24坪
- 3LDK
ラク家事動線で家族時間生み出す、明るく自然を感じる狭小地3階建ての家
-
- 24坪
- パントリー
季節の庭で四季移ろいを楽しむ、カーテンなしで過ごすロの字型コートハウス
-
- 25坪
- 3LDK
3階までの動作をコンパクトにまとめる!フロアで生活空間を分けた狭小地の家
-
- 28坪
- 3LDK
壁面活用で理想のスペース確保、明るくのびやかな狭小地の家
-
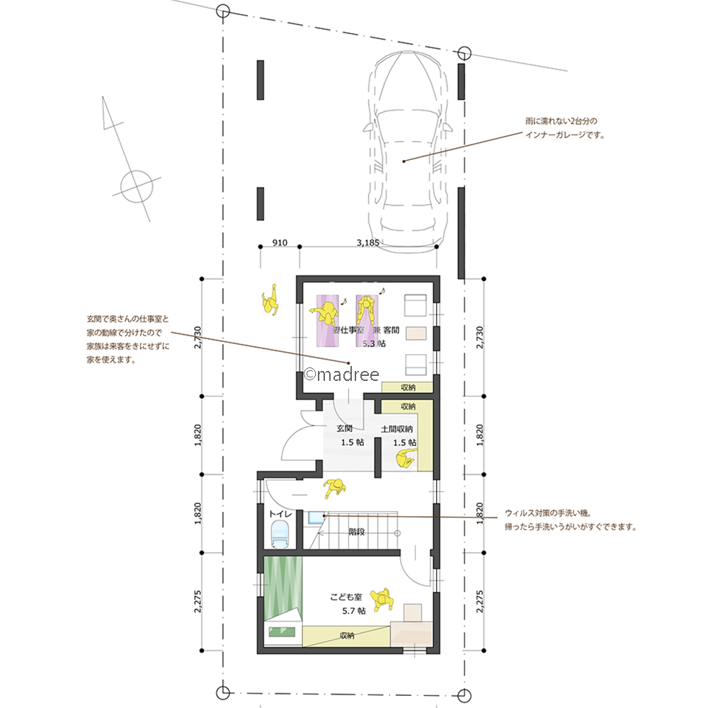
- 24坪
- 3LDK
廊下の少ないコンパクトな生活動線、バルコニーと繋がる明るい2階LDKの家
-
- 25坪
- 2LDK
キッチンカウンターで家族の会話彩る、バルコニーを囲んだ南向き2階LDKの家
-
- 25坪
- 3LDK
少ない廊下でコンパクトながらも大収納、朝陽が気持ち良い2階LDKの家
-
- 26坪
- 1LDK
泥付き野菜でも安心の収納スペース、室内から行き来できる倉庫兼ガレージのある平屋
-
- 27坪
- 2LDK
少し奥まった静かな生活環境、吹抜と天窓で自然の採光を取り入れた旗竿地の家
-
- 26坪
- 3LDK
爽やかな朝日でスッキリ目覚める、キッチン中心の回遊動線で家事シェアしやすい家
-
- 26坪
- 2LDK
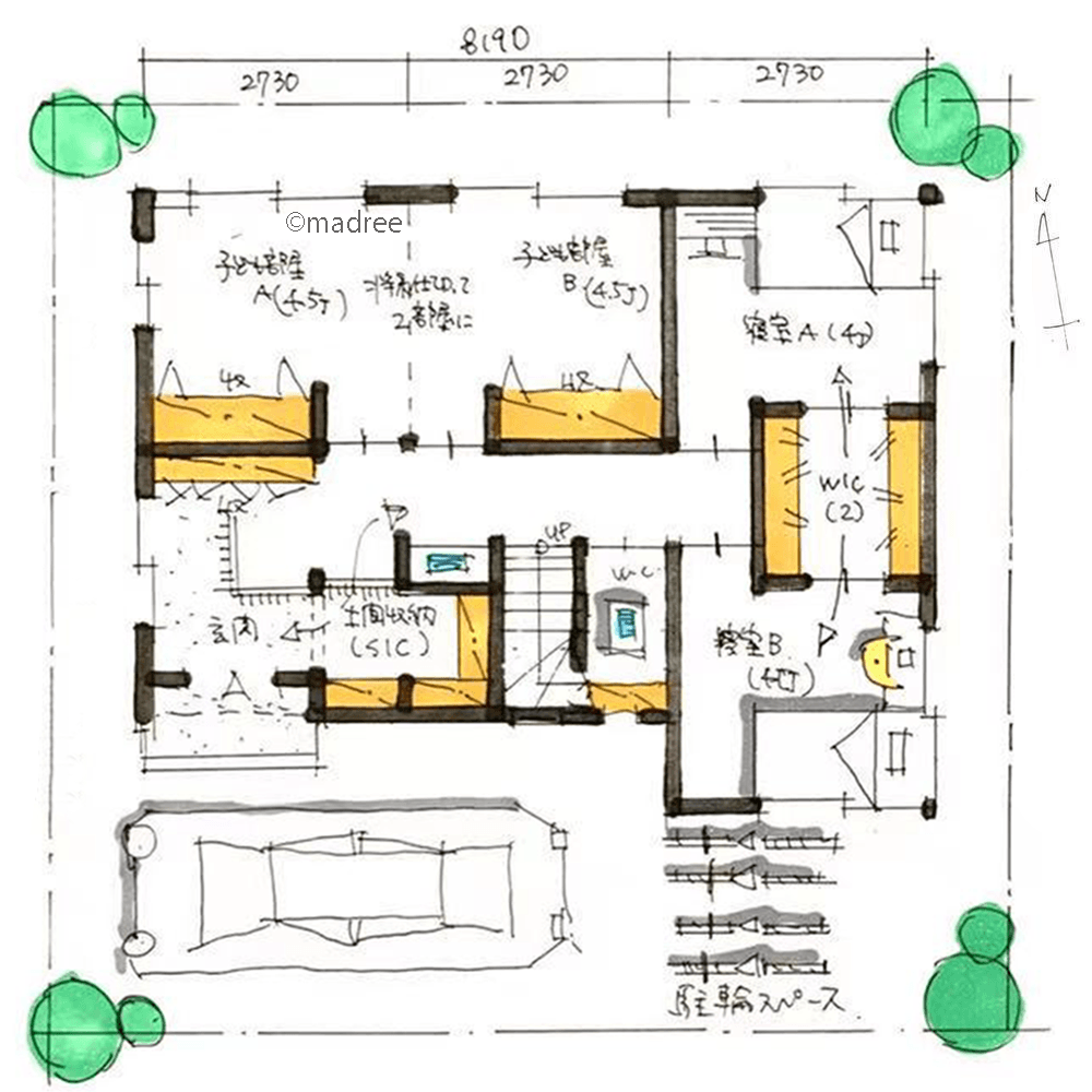
フレキシブルな子ども部屋活用、間仕切りをなくすと2階がLDKの大空間になる家
-
- 27坪
- 3LDK
細長い土地を玄関中心にゾーン分け、全個室に朝日の届く自然な目覚めが得られる平屋
-
- 25坪
- 3LDK
コンパクトなL字型の生活動線、共働きに嬉しい陽だまり2階サンルームのある家
-
- 26坪
- 2LDK
朝日をたっぷり浴びて爽やかな目覚め、自然と人が集まる緑と光が心地良い家
-
- 26坪
- 3LDK
落ちつく床座リビングで温かな家族団らん、趣味も充実する広い土間収納のある家
-
- 26坪
- 4LDK
適所収納でスッキリを保つ、コンパクトでも自分時間はゆったり過ごす狭小地の家
-
- 26坪
- 1LDK
狭小地でも広々とLDKを活用、明るい2階リビングが間仕切りで子ども部屋になる家
-
- 24坪
- 2LDK
充実の収納量でファッション好きも安心、家事が快適に感じるコンパクト動線の家
-
- 25坪
- 2LDK
おうちアウトドアの準備がサクッとできる、キッチンとリビングから繋がるウッドデッキのある家
-
- 27坪
- 2LDK
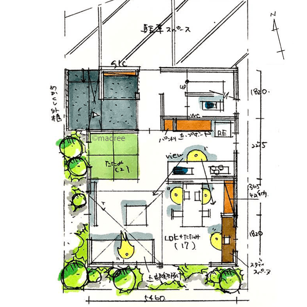
森の中のような別荘感、自然豊かな眺望を生かしたリラクゼーションLDKの平屋
-
- 25坪
- 2LDK
リフォームを視野に広さを確保、水廻りを集約したコンパクト家事動線の平屋
-
- 25坪
- 4LDK
縦に増やした空間構成、中二階にホッと休めるくつろぎリビングのある家
-
- 25坪
- 3LDK
自然光が気持ち良い2階LDKで、外からの視線を気にせずゆったりと暮らす家
-
- 25坪
- 4LDK
アウトドアリビングへ視界広がる、開放的で奥行き感じる狭小住宅
マドリー開発の『住宅営業支援ツール』
madreeデータバンク
マドリーの人気間取り4,800プランを接客・提案に活用できる営業支援ツール
- 競合他社と差がつく、スピード提案
- トレンド間取りで、集客・受注数UP
- 建築家のアイデアを参考に、質の高い提案ができる
